Two-bedroom plot with big garden and development upside for renovators.
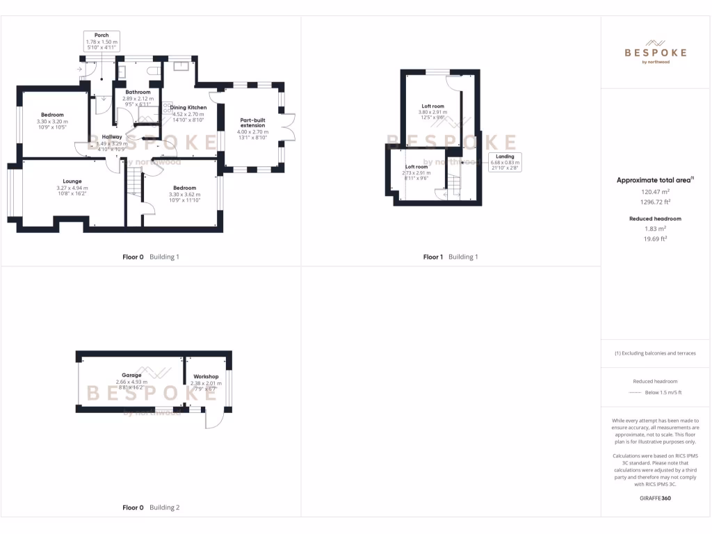
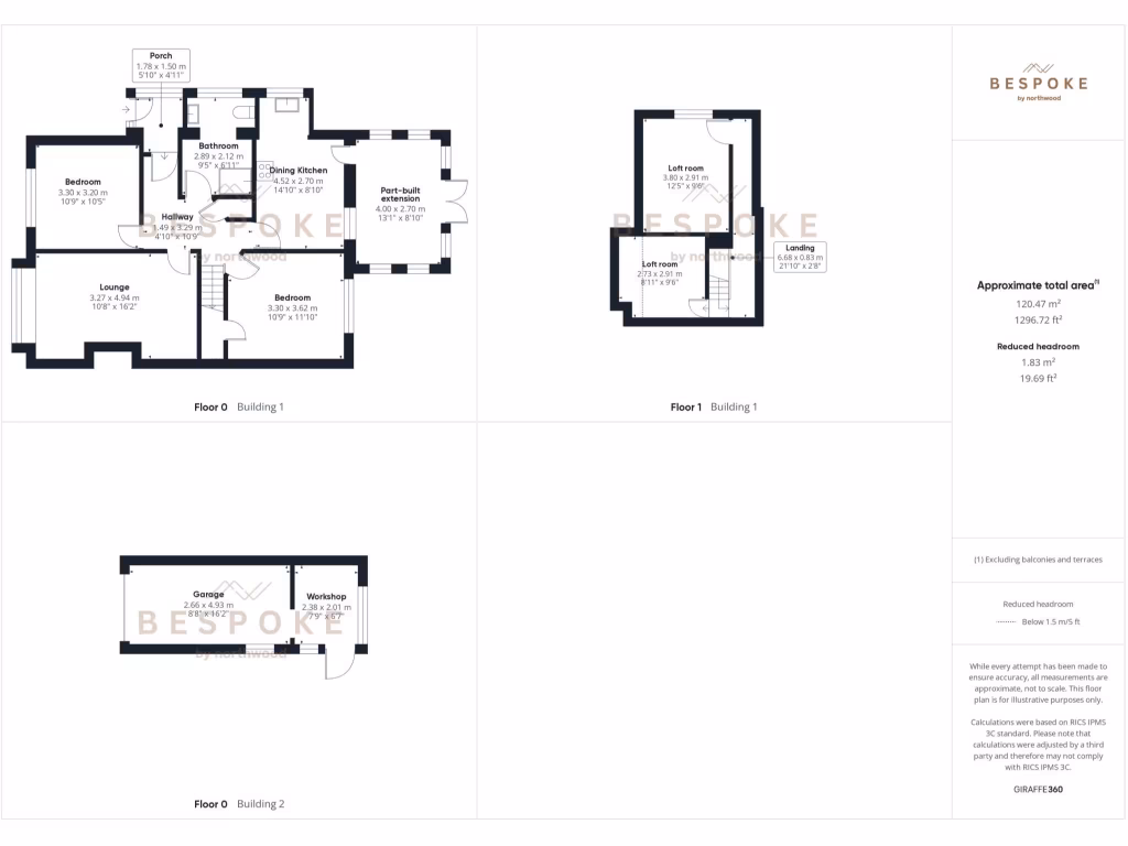
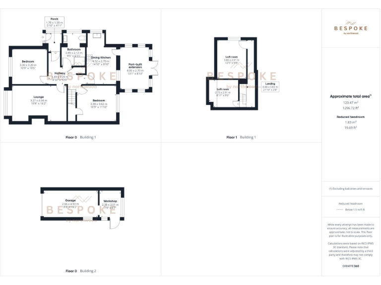
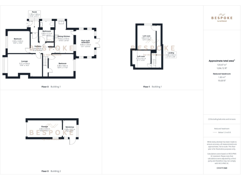
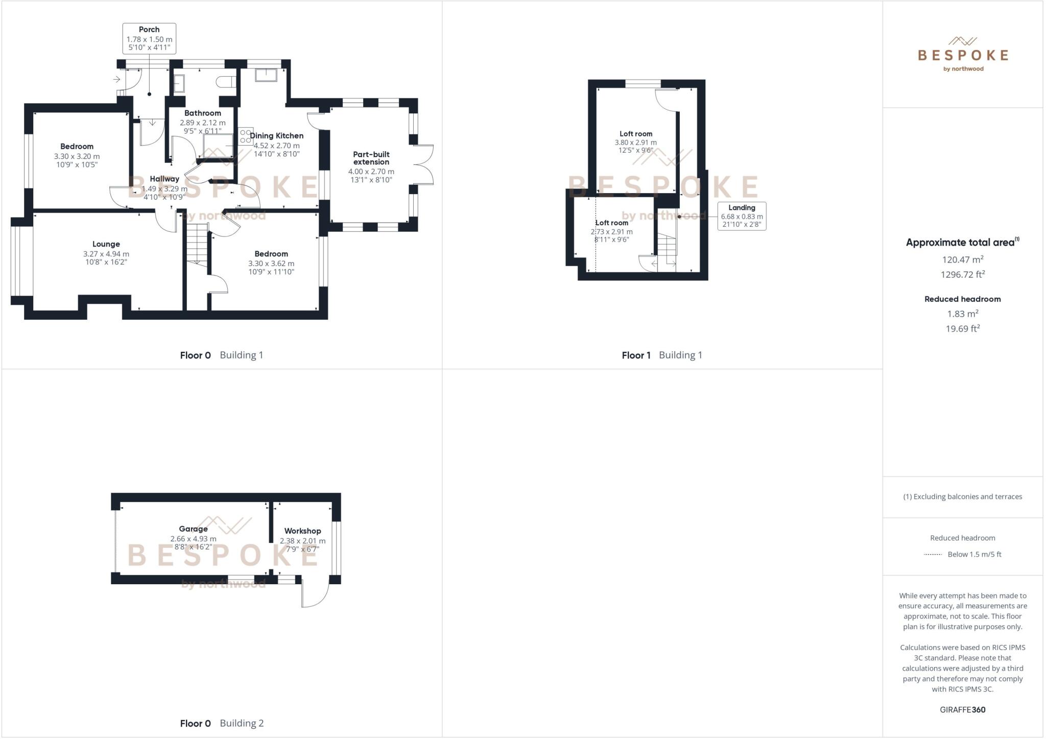
Extremely large overall size (approx. 1,296 sq ft) with flexible loft rooms
Part-built rear extension offers scope but requires completion
Generous garden, driveway parking, garage and separate workshop
Needs general renovation; fixtures and finishes dated or incomplete
Cavity walls assumed uninsulated — thermal upgrades likely required
EPC rating D; heating via mains gas boiler and radiators
Fast broadband and excellent mobile signal in a very affluent area
Sale subject to public notice — offer of £220,000 already received
This spacious two-bedroom semi-detached bungalow sits on a generous plot in a comfortable Macclesfield suburb. A part-built rear extension and two loft rooms create clear scope for adding living space or finishing as bedrooms, while a large garden and workshop offer practical outdoor and storage advantages. Driveway parking and an integral garage complete a practical package for everyday life.
The property requires general updating throughout; finishes and systems need attention and the cavity walls are assumed uninsulated, so buyers should plan for thermal improvements. The EPC is D and the house will suit someone prepared to undertake renovation work or a buyer seeking a value-add project in a very affluent area with fast broadband and excellent mobile signal.
Local amenities and schools are nearby, including several ‘Good’ and ‘Outstanding’ primary and secondary options, making the location convenient for families or those wanting local services on foot. The layout and loft rooms offer flexible configuration potential: a finished extension and attic conversion could significantly increase usable living space and resale value.
Note: the sale is subject to a public notice that an offer of £220,000 has been received; higher written offers must be submitted before exchange. Buyers should factor completion costs for the extension, insulation, and general refurbishment when assessing value.
2 bedroom semi-detached bungalow for sale in Thornton Avenue, Macclesfield, SK11 — £290,000 • 2 bed • 1 bath • 742 ft²
2 bedroom detached house for sale in Highfield Road, Macclesfield, SK11 — £215,000 • 2 bed • 1 bath • 1992 ft²
4 bedroom detached bungalow for sale in Birtles Road, Macclesfield, SK10 — £425,000 • 4 bed • 2 bath • 1411 ft²
3 bedroom semi-detached house for sale in Bond Street, Macclesfield, SK11 — £300,000 • 3 bed • 2 bath • 1148 ft²
3 bedroom semi-detached house for sale in Briarwood Avenue, Macclesfield, SK11 — £200,000 • 3 bed • 1 bath • 1000 ft²
4 bedroom detached bungalow for sale in Park Lane, Macclesfield, SK11 — £600,000 • 4 bed • 3 bath • 1994 ft²


















































































































































































