Turn-key two-bed bungalow with approved extension potential on a quiet cul-de-sac.
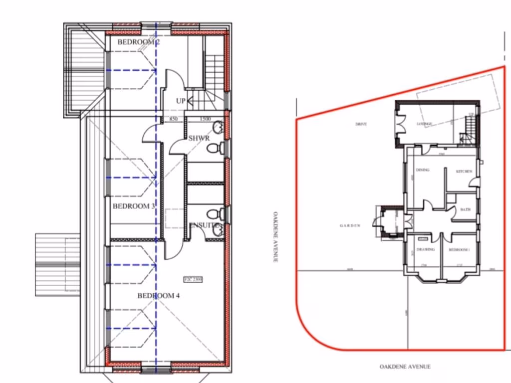
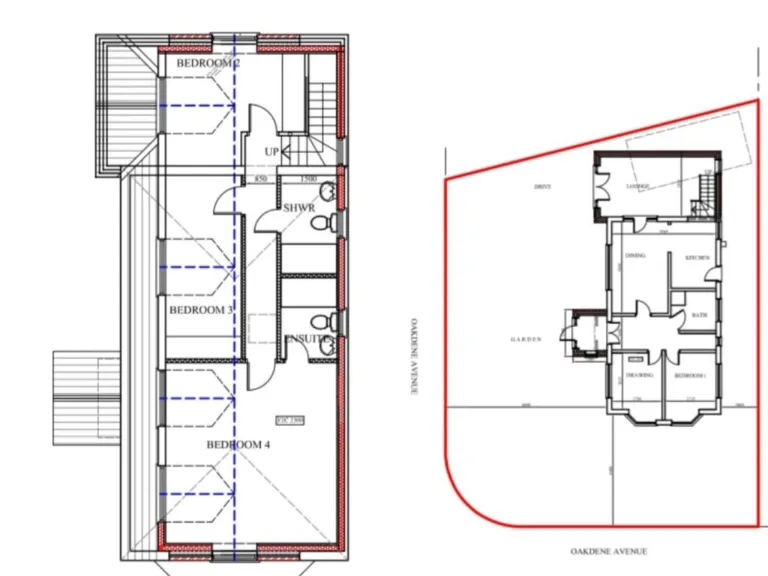
Planning permission granted to extend to up to five bedrooms
This detached two-bedroom bungalow on a quiet cul-de-sac in Heald Green is offered fully refurbished and ready to move into. The current layout provides comfortable, open-plan living with a modern kitchen, new bathroom and a useful utility room. A detached garage and a driveway for two cars add practical off-street parking, while the wrap-around front garden gives outdoor space without heavy maintenance.
Planning permission has been granted to extend, with scope to convert the property into a much larger house (planning for an extension to create up to five bedrooms). That makes this an attractive proposition for downsizers wanting space to grow later, or buyers seeking a renovation/extension project with permissions already in place. The home is average-sized at about 824 sq ft, so any extension would substantially increase living space.
The bungalow sits in a well-connected location with fast broadband, excellent mobile signal and convenient transport links to the airport, train station and the A34. Several good local schools are within the catchment, and nearby amenities include shops, a supermarket and leisure facilities. Council tax is band C.
Notable considerations: the property is in an area flagged as relatively deprived, which may affect long-term resale in some pockets. The current home has a single bathroom and two double bedrooms only, so buyers wanting immediate larger family accommodation will need to plan the approved extension. Double glazing is present but install date is unknown; buyers should verify mechanical and electrical installations and obtain professional checks where needed.
2 bedroom detached house for sale in Greenhythe Road, Heald Green, Stockport, SK8 — £324,950 • 2 bed • 2 bath • 781 ft²
2 bedroom detached bungalow for sale in Wensleydale Avenue, Cheadle, SK8 1QJ, SK8 — £435,000 • 2 bed • 1 bath • 747 ft²
2 bedroom detached bungalow for sale in Greenway Road, Heald Green, SK8 — £360,000 • 2 bed • 1 bath • 1071 ft²
3 bedroom semi-detached bungalow for sale in Oakdale Drive, Heald Green, Stockport, SK8 — £375,000 • 3 bed • 1 bath • 991 ft²
3 bedroom bungalow for sale in Queensway, Heald Green, SK8 — £399,950 • 3 bed • 1 bath • 667 ft²
2 bedroom detached bungalow for sale in Ripley Avenue, Cheadle Hulme, SK8 — £450,000 • 2 bed • 1 bath • 1080 ft²


















































































































