Bright, well-connected three-bedroom with generous living space and long lease.
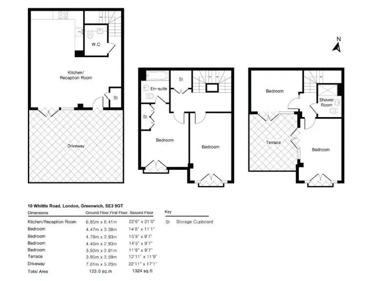
Spacious 1,356 sq ft three-bedroom layout with two bathrooms
Extremely long lease: 996 years remaining
Fast broadband and excellent mobile signal throughout
No flood risk for the property
Close to multiple primary and secondary schools rated Outstanding/Good
Extensive local amenities: shops, station, parks, healthcare and gyms
Located in an area with higher deprivation indicators — research advised
Average local crime rate; check local safety measures
Set across a generous 1,356 sq ft, this three-bedroom terraced property offers roomy, modern living in Kidbrooke Village with contemporary finishes and large windows that flood the space with natural light. The layout suits families seeking space for children, home working or flexible living, while two bathrooms reduce morning rush-hour stress.
Practical strengths include an exceptionally long lease (996 years), fast broadband, excellent mobile signal and no flood risk. Local amenities are comprehensive — schools, shops, train links, parks and fitness facilities are all within easy reach, supporting everyday convenience and family life.
Buyers should note the home is leasehold and located in an area showing higher deprivation indicators and average crime levels; prospective purchasers may wish to research neighbourhood trends and local services. Overall, the property combines modern apartment-style architecture with townhouse scale and strong long-term ownership security.
3 bedroom flat for sale in Kidbrooke Village,
5 Pegler Square, SE3 — £690,000 • 3 bed • 2 bath • 1004 ft²
2 bedroom flat for sale in Kidbrooke Village,
5 Pegler Square, SE3 — £530,000 • 2 bed • 1 bath • 670 ft²
4 bedroom house for sale in Kidbrooke Village,
5 Pegler Square, SE3 — £1,100,000 • 4 bed • 4 bath • 1515 ft²
3 bedroom apartment for sale in Kidbrooke Village, 5 Pegler Square, Birch House, Greenwich, London, SE3 — £700,000 • 3 bed • 2 bath • 1024 ft²
2 bedroom flat for sale in Waterlily Court,
Kidbrooke Village, SE3 — £625,000 • 2 bed • 2 bath • 794 ft²
3 bedroom apartment for sale in Kidbrooke Village, 5 Pegler Square, Birch House, Greenwich, London, SE3 — £695,000 • 3 bed • 2 bath • 1024 ft²


























































































































