Spacious two-bed home with character and garden—ideal for first-time buyers.
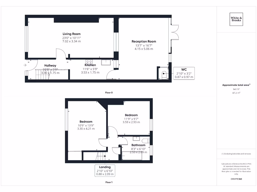
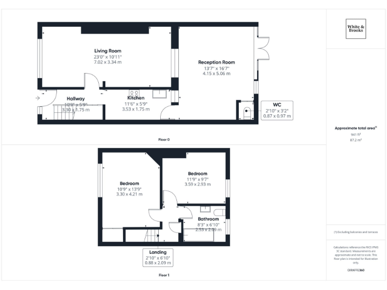
Freehold two-bedroom terraced house with private garden
Large reception rooms with original leadlight and stained-glass features
Double glazing and mains gas central heating (boiler and radiators)
EPC rating D; Council Tax Band B (relatively low running costs)
Sold at auction via secure online bidding; buyer ID check fee £69 payable
Located in an area of high deprivation; average local crime levels
Small plot; garden and shed provide limited outdoor storage
Property shows signs of needing modernization/maintenance work
This two-bedroom terraced house offers spacious reception rooms and period character in Bognor Regis, ideal for first-time buyers or small families seeking affordable space close to local amenities. The property benefits from large, light-filled rooms, original leadlight and stained-glass features, double glazing, and gas central heating. The layout includes two sizeable reception rooms, a fitted kitchen, ground-floor WC and a private garden — useful outdoor space despite a small plot size.
Practical positives include freehold tenure, a modest Council Tax Band B, and an EPC rating of D. Room proportions are generous (living room 7.02m x 3.34m; main reception 5.06m x 4.15m) providing scope to reconfigure or modernise to increase value. Several well-rated primary and secondary schools are within reach, and local transport, shops and leisure facilities are nearby.
Buyers should note this property will be sold at auction via secure online bidding, and an identity-verification fee of £69 (including VAT) is payable by the purchaser. The area is classified as very deprived and the immediate neighbourhood has average crime levels; these factors affect long-term resale and rental prospects. The house was built in the 1950–66 period and the images indicate some areas may need updating or maintenance despite many attractive period details.
Overall this is a large-feel, affordable terraced home offering solid scope for improvement and immediate occupancy. It will suit buyers prepared to purchase at auction and to undertake cosmetic or targeted updates to maximise comfort and future value.
2 bedroom terraced house for sale in Hawthorn Road, Bognor Regis, PO21 — £235,000 • 2 bed • 1 bath • 818 ft²
3 bedroom end of terrace house for sale in Longford Road, Bognor Regis, West Sussex, PO21 — £225,000 • 3 bed • 1 bath • 826 ft²
2 bedroom terraced house for sale in Ockley Road, Bognor Regis, West Sussex, PO21 — £200,000 • 2 bed • 1 bath • 687 ft²
3 bedroom terraced house for sale in Essex Road, Bognor Regis, West Sussex, PO21 — £260,000 • 3 bed • 1 bath • 1411 ft²
3 bedroom terraced house for sale in Mead Lane, Bognor Regis, PO22 — £289,000 • 3 bed • 1 bath • 724 ft²
2 bedroom end of terrace house for sale in Fletcher Way, Bognor Regis, West Sussex, PO21 — £212,500 • 2 bed • 1 bath • 1141 ft²






































































