Turnkey income with uplift potential near Torquay seafront and transport links.
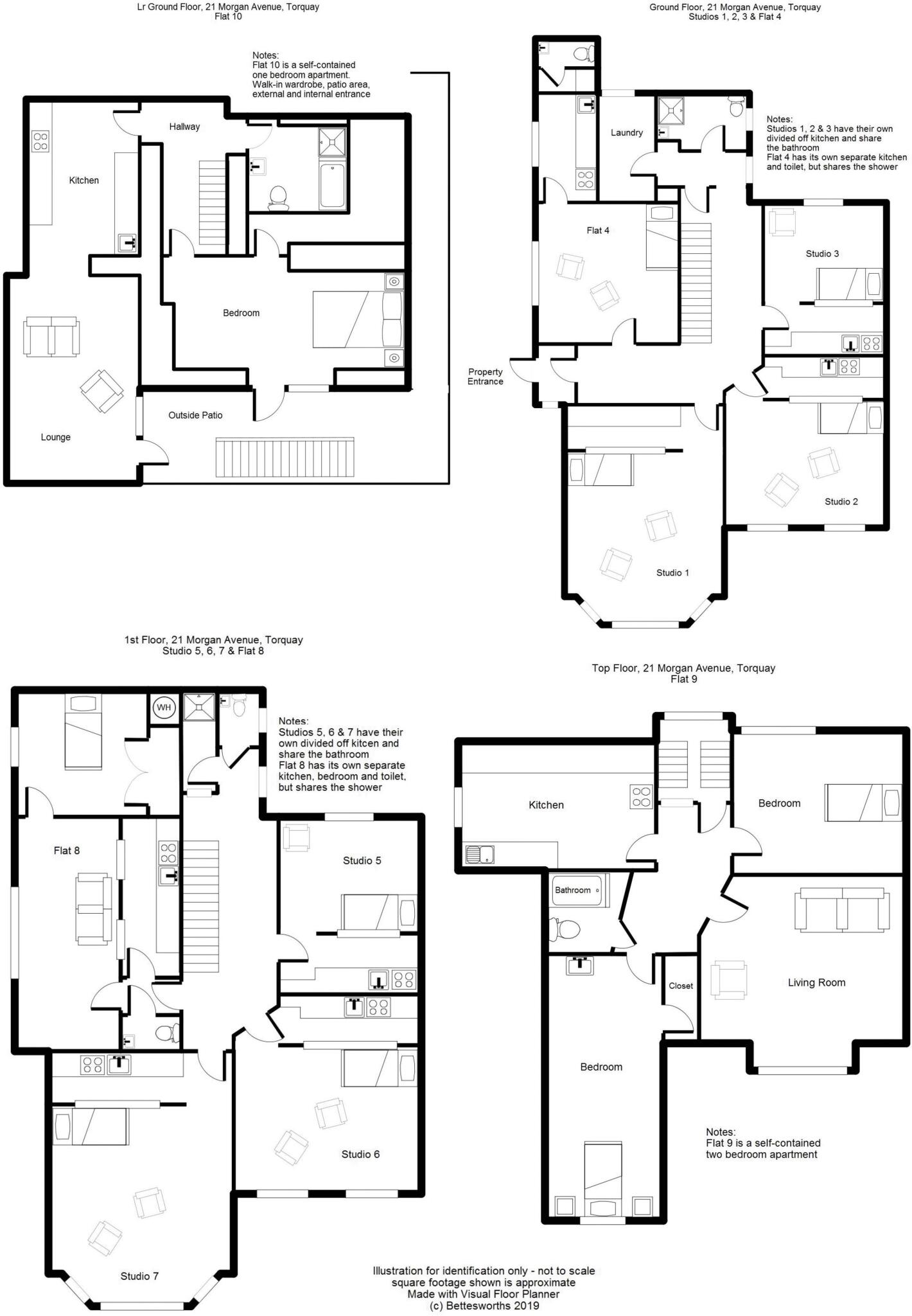
20-unit fully licensed HMO arranged as two semi-detached buildings
A substantial two-building HMO in Torquay offering immediate income and long-term uplift potential. Arranged over four floors and fully licensed for 30 occupants (currently occupied by 24), the asset is configured as 12 studios, 4 one-bed flats and 4 self-contained flats, producing a gross rental income of £121,020 pa. Each unit has an electric sub‑meter and the roof-mounted solar panels reduce running costs for communal supplies.
Practical upgrades already completed include gas central heating, renewed fuse boards and flat roofs, leaving the property in generally good operational condition for continued rental use. The mix of self-contained and shared facilities gives flexibility for management and reconfiguration to increase yield or improve tenant mix.
Material considerations: the building sits in an area of high crime and very high deprivation, which affects tenant risk and management overheads. On-street parking only and a small frontage limit amenity for tenants; parts of the exterior and some internal finishes are dated and will need ongoing maintenance or selective refurbishment to maximise capital growth and rental rates.
This freehold HMO suits a specialist investor or portfolio buyer looking for an already trading multi-let close to Torquay town centre and seafront. The combination of current income, landlord solar panels and scope for capital improvement presents clear value, provided buyers budget for active management and targeted works to raise standards and reduce void risk.
16 bedroom detached house for sale in Morgan Avenue, Torquay, TQ2 — £975,000 • 16 bed • 7 bath • 3169 ft²
9 bedroom terraced house for sale in Warren Road, Torquay, Devon, TQ2 5TH, TQ2 — £325,000 • 9 bed • 3 bath • 1865 ft²
11 bedroom house of multiple occupation for sale in Torquay, TQ1 — £360,000 • 11 bed • 1 bath • 3243 ft²
Mixed use property for sale in Torquay, TQ1 — £270,000 • 1 bed • 1 bath
House of multiple occupation for sale in Paignton, TQ3 — £310,000 • 1 bed • 1 bath • 2593 ft²
8 bedroom semi-detached house for sale in Jedwick House, Paignton, Devon, TQ4 5JZ, TQ4 — £350,000 • 8 bed • 6 bath • 1451 ft²










































































































