### Standout Features:
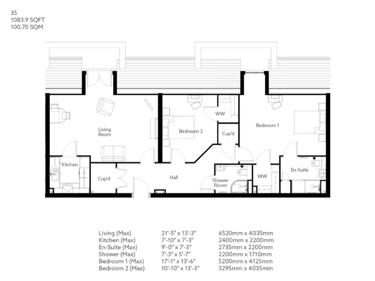
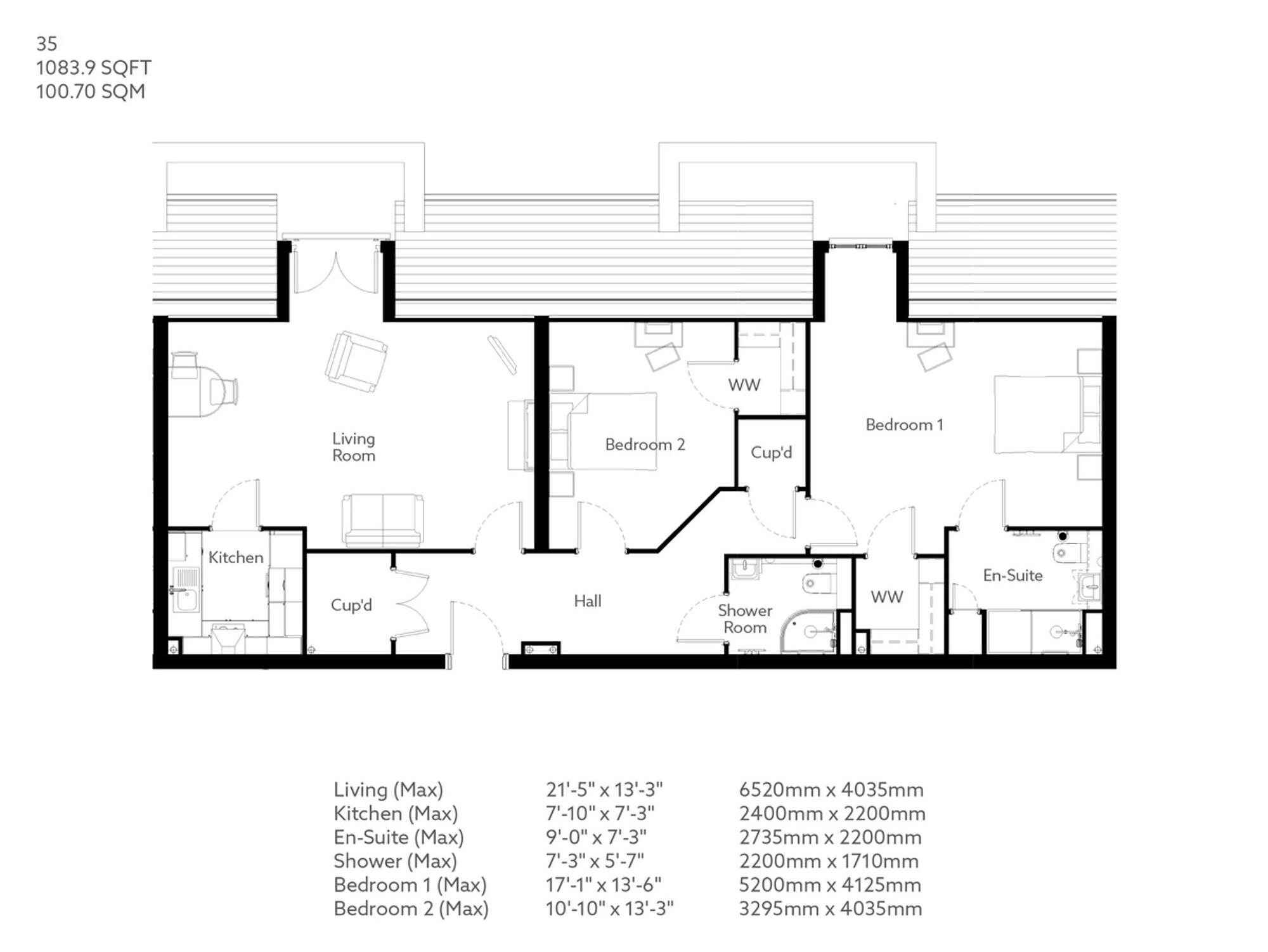
- Spacious 2-bedroom, 2-bathroom layout over 1,083 sq. ft.
- Luxury retirement living community designed exclusively for the over 60s.
- Shared ownership option (75% share with no rent on the remaining portion).
- Modern amenities: stylish kitchen with integrated appliances, luxurious residents' lounge, and landscaped gardens.
- Hotel-style guest suite and a pet-friendly environment.
- Super insulating features reduce energy costs and ensure comfort.
- Prime location just a 7-minute walk from Bramhall Village.
### Summary:
Experience modern luxury in this beautifully crafted 2-bedroom, 2-bathroom second-floor apartment located in the exclusive Queens View Retirement development in Bramhall. Spanning 1,083 sq. ft., this newly renovated home offers a perfect blend of elegance and practicality, ideal for those looking to optimize their living space without the hassle of maintaining a larger home. Enjoy the spacious master suite complete with an en-suite and walk-in wardrobe, alongside a chic second bedroom and stylish shower room.
Take advantage of communal amenities including a luxurious residents' lounge, landscaped gardens designed for relaxation, and a hotel-style guest suite—perfect for entertaining friends and family. The apartment features super insulation technology, ensuring a comfortable climate year-round while minimizing energy bills. Additionally, with shared ownership options available, you can secure your future in this serene, affluent community with ease.
Located only minutes from the bustling Bramhall Village, you'll have access to high-end restaurants, boutique shops, and excellent transportation links. Act quickly, as these desirable properties are in demand and won’t last long! Embrace the comfort, security, and convenience of Queens View and make this exquisite apartment your new home today.
2 bedroom apartment for sale in Apartment 40, Queens View, Ack Lane East, Bramhall, SK7 — £247,500 • 2 bed • 2 bath • 806 ft²
2 bedroom retirement property for sale in 64 Ack Lane East,
Bramhall,
Stockport,
SK7 2DA, SK7 — £363,750 • 2 bed • 1 bath • 839 ft²
2 bedroom retirement property for sale in 64 Ack Lane East,
Bramhall,
Stockport,
SK7 2DA, SK7 — £356,250 • 2 bed • 1 bath • 871 ft²
2 bedroom retirement property for sale in 64 Ack Lane East,
Bramhall,
Stockport,
SK7 2DA, SK7 — £405,000 • 2 bed • 1 bath • 1083 ft²
2 bedroom apartment for sale in Queens View, 64 Ack Lane East, Bramhall, SK7 — £515,000 • 2 bed • 2 bath • 801 ft²
2 bedroom apartment for sale in Queens View, 64 Ack Lane East Bramhall, Stockport, SK7 2DA, SK7 — £515,000 • 2 bed • 1 bath • 861 ft²


























































































