**Standout Features:**
- Luxury 1-bedroom flat on the 23rd floor with panoramic city views
- Built in 2017, modern design with floor-to-ceiling windows
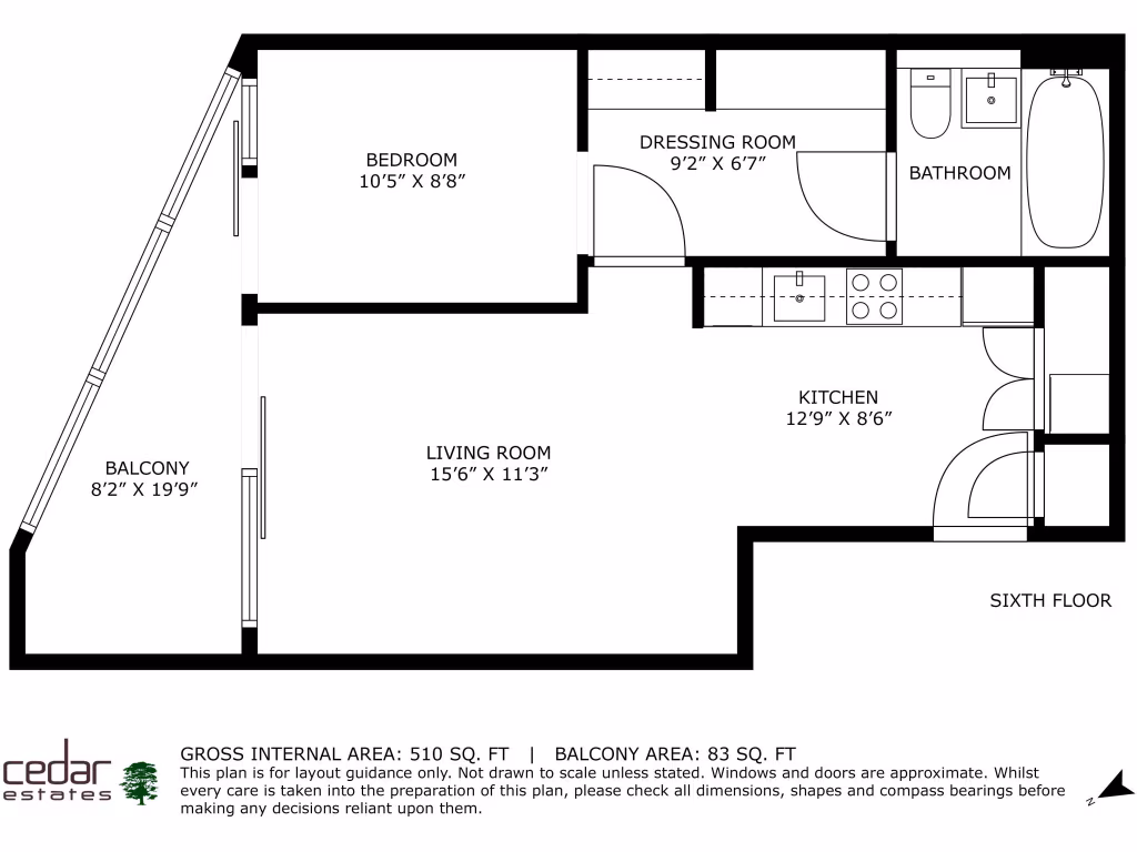
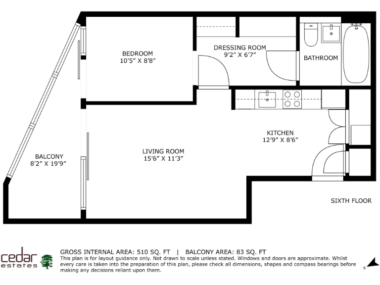
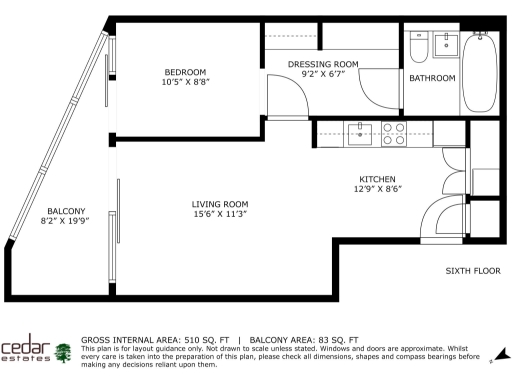
- Private balcony (83 sq ft) and a walk-in dressing room
- Concierge service, residents' lounge, gym, and cinema
- Excellent transport connectivity near Elephant & Castle and Lambeth North stations
- Leasehold with 994 years remaining
- Chain-free sale
Located in a highly sought-after purpose-built development in SE1, this exceptional 1-bedroom apartment offers contemporary city living at its finest. Spanning 510 sq ft, the bright open-plan layout boasts stunning floor-to-ceiling windows that fill the space with natural light, while the sleek kitchen is equipped with integrated appliances. Enjoy the luxury of a walk-in dressing room, a modern bathroom, and reeling in the breathtaking city views from your own private balcony—a perfect spot for morning coffee or evening relaxation.
Residents can indulge in a wealth of amenities, including a 24-hour concierge, a stylish residents' lounge with high-speed WiFi, a gym, and a cinema room. Ideally suited for professionals, first-time buyers, or savvy investors, this property offers both comfort and potential rental income in a vibrant urban area. Don’t miss out on this exclusive opportunity—schedule a viewing today and envision your new life in this exquisite flat amidst the heart of London. Please note the service charge is on the higher side, at approximately £4,028 per annum.
1 bedroom apartment for sale in Elephant And Castle, London, SE1 — £575,000 • 1 bed • 1 bath • 570 ft²
1 bedroom flat for sale in Steedman Street, SE17 — £390,000 • 1 bed • 1 bath • 550 ft²
1 bedroom flat for sale in Southwark Bridge Road, Southwark, SE1 — £500,000 • 1 bed • 1 bath • 653 ft²
2 bedroom flat for sale in Southwark Bridge Road, Elephant & Castle, SE1 — £625,000 • 2 bed • 2 bath • 745 ft²
1 bedroom apartment for sale in St. Gabriel Walk, London, SE1 — £615,000 • 1 bed • 1 bath • 541 ft²
2 bedroom flat for sale in Newington Causeway, Elephant & Castle, SE1 — £500,000 • 2 bed • 1 bath • 590 ft²


















































