Ready family home near Longbridge station with off-street parking.
Extended four-bedroom semi-detached layout
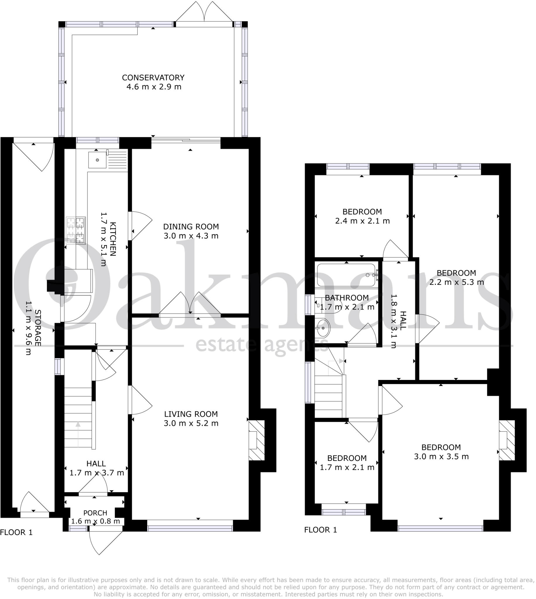
This extended four-bedroom semi offers practical family living across an average-sized footprint. A generous driveway provides off-street parking and leads to a welcoming living room with double doors into a dining area, then on to a bright conservatory with high ceiling and French doors to the low-maintenance rear garden.
The kitchen is modern and well fitted with integrated appliances and handy side access that doubles as utility or storage. Upstairs are two double bedrooms and two smaller rooms, serviced by a recently refitted family bathroom. The property is freehold and located a short walk from Longbridge train station, with good local amenities and several well-rated primary and secondary schools nearby.
Notable practical considerations: the plot is modest and the rear garden is small; there is a single bathroom for four bedrooms which may require planning at busy times. The house dates from the 1930s–1940s and has cavity walls with no known insulation, so buyers seeking improved energy performance may wish to budget for insulation or upgrading works.
Suitable for growing families and commuters, the home combines ready-to-live-in modern fittings with clear scope for incremental upgrading. Low local crime, excellent mobile signal and fast broadband support home working and connectivity, while proximity to public transport makes commuting straightforward.
4 bedroom semi-detached house for sale in Leacroft Grove, West Bromwich,West Midlands, B71 — £255,000 • 4 bed • 1 bath • 700 ft²
3 bedroom semi-detached house for sale in Thurlestone Road, Birmingham, West Midlands, B31 — £240,000 • 3 bed • 1 bath • 824 ft²
3 bedroom semi-detached house for sale in Coombes Lane, Birmingham, West Midlands, B31 — £290,000 • 3 bed • 1 bath • 855 ft²
3 bedroom semi-detached house for sale in Kemshead Avenue, Birmingham, West Midlands, B31 — £300,000 • 3 bed • 1 bath • 882 ft²
3 bedroom semi-detached house for sale in Burnside Way, Birmingham, West Midlands, B31 — £260,000 • 3 bed • 1 bath • 914 ft²
4 bedroom semi-detached house for sale in Ambassador Avenue, Birmingham, B31 — £399,000 • 4 bed • 3 bath • 1308 ft²










































































































































