Immediate occupation for light manufacturing, storage or trade counter use.
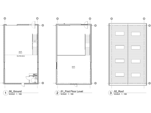
- Detached new-build warehouse of approx. 2,408 sq ft with mezzanine office/storage
- Approx. 6m internal eaves height; concrete floor and roller shutter loading door
- Three-phase electricity, LED lighting, telecoms ducting included
- Allocated parking plus loading area; two external car spaces indicated
- Freehold sale price £795,000; also available to let
- Located on established business park with good A27/motorway access
- Wider area classed as deprived; local crime levels reported as average
- No flood risk; council tax and some running cost details not supplied
A rare opportunity to acquire a brand-new, detached light industrial unit of 2,408 sq ft at Worthing Business Park. The steel portal-framed building offers high eaves, concrete floor, first-floor mezzanine and electric roller shutter — ready for immediate occupation as light manufacturing, storage/distribution or hybrid office/warehouse use. The unit is offered freehold at £795,000.
The specification is practical and modern: three-phase electricity, LED lighting, telecoms ducting, 15 kN/m2 ground floor loading and allocated parking plus yard space in front of the loading door. The estate has good road links to the A27 and wider motorway network, and nearby occupiers include national trade and distribution businesses, supporting B1(c)/B2/B8 uses.
Buyers should note material considerations plainly: the wider area is classified as deprived, local area housing is mainly terraces and flats, and recorded crime levels are average. There is no known flood risk and the unit is new, but some occupiers may require planning consent for specific office-based uses at first-floor level. Council tax and certain running cost details are not provided and should be confirmed.
This property suits an owner-occupier seeking immediate, fit-for-purpose light industrial accommodation or an investor looking for a new-build commercial freehold on an established industrial estate. Viewing is recommended to assess layout, servicing and how the mezzanine office/storage integrates with your operation.
Warehouse for sale in Unit 11 Worthing Business Park, Dominion Way, Worthing, West Sussex, BN14 — £292,500 • 1 bed • 1 bath • 894 ft²
Warehouse for sale in Unit 10 Worthing Business Park, Dominion Way, Worthing, West Sussex, BN14 — £345,000 • 1 bed • 1 bath • 1050 ft²
Warehouse for sale in Unit 6 Worthing Business Park, Dominion Way, Worthing, West Sussex, BN14 — £497,500 • 1 bed • 1 bath • 1524 ft²
Warehouse for sale in Unit K39 & K40, Glenmore Business Park, Chichester, PO19 7BJ, PO19 — £570,000 • 1 bed • 1 bath • 4048 ft²
Light industrial facility for sale in Unit F, Brookside Avenue, Littlehampton, BN16 3LF, BN16 — £1,350,000 • 1 bed • 1 bath • 16837 ft²
Industrial park for sale in Billingshurst Enterprise Park New Road, Billingshurst RH14 9HP, RH14 — POA • 1 bed • 1 bath






















































