Immediate rental income or a compact, affordable project in a well-connected WA7 pocket.
Sold freehold — tenants in situ or vacant possession option
Enclosed rear garden with detached shed; small plot
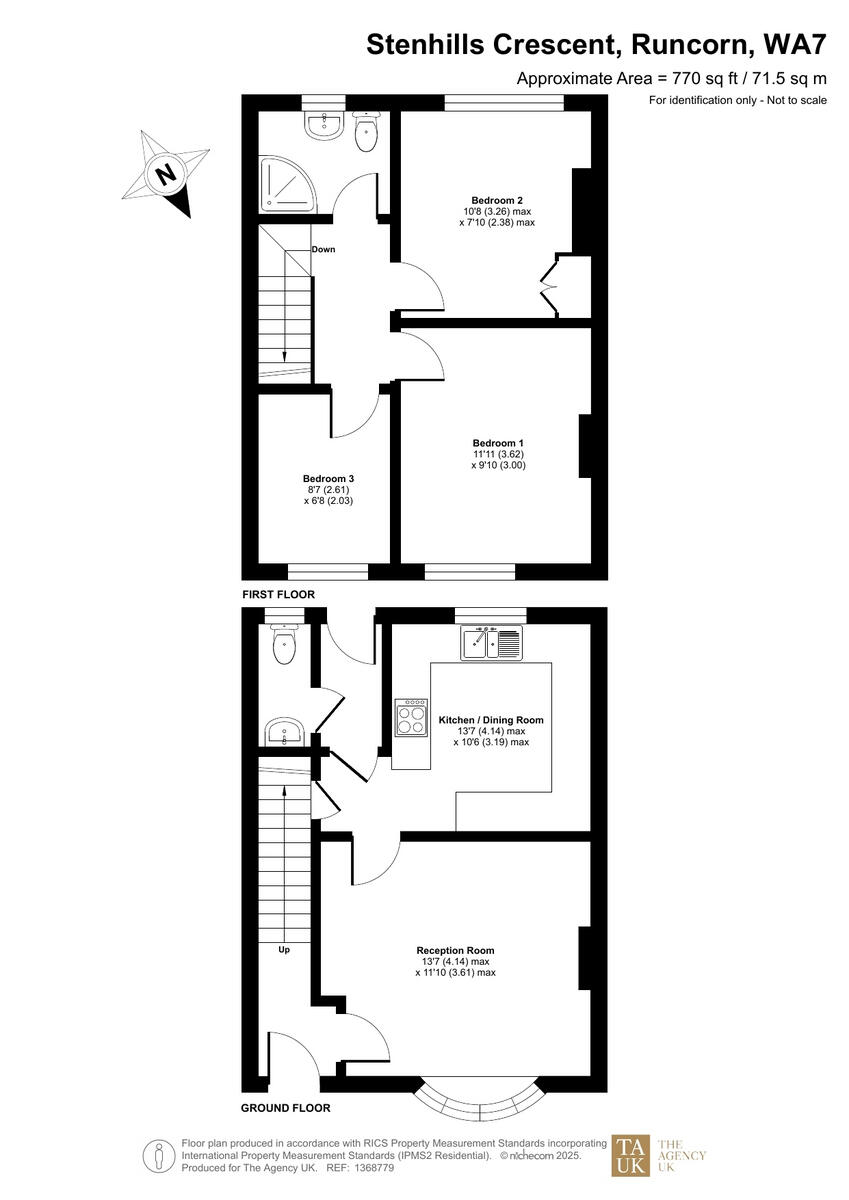
Three well-proportioned bedrooms; 770 sq ft overall (small)
Double glazing and mains gas central heating fitted
On-street parking nearby — check local restrictions
Area classified as deprived; crime above local average
Mixed local school performance; some ratings require improvement
Suitable for investment or modest refurbishment
This tidy three-bedroom freehold in WA7 offers a straightforward purchase for investors or practical homebuyers. It can be bought with tenants in situ for immediate income or with vacant possession for those wanting to move in and personalise. The layout is traditional: lounge to the front, fitted kitchen with dining area to the rear, and three bedrooms plus a family bathroom upstairs.
Outside, the enclosed rear garden and detached shed provide private outdoor space and storage on a small plot. The property dates from the mid-20th century and benefits from double glazing and gas central heating via boiler and radiators, keeping running costs predictable. On-street parking is available nearby, though buyers should check any local restrictions.
The location is convenient for daily needs, with shops, leisure facilities and bus links close by; several nearby schools serve different age groups. Important considerations: the area is classified as deprived with above-average crime levels, and some local schools have mixed Ofsted outcomes. The house is compact (approximately 770 sq ft) and suits buyers seeking value, rental income or a modest renovation project rather than a large-family move.
3 bedroom terraced house for sale in Stenhills Crescent, Runcorn, WA7 — £160,000 • 3 bed • 1 bath • 786 ft²
3 bedroom terraced house for sale in The Uplands, Runcorn, WA7 — £125,000 • 3 bed • 2 bath • 937 ft²
3 bedroom terraced house for sale in The Hove, Murdishaw, Runcorn, WA7 — £130,000 • 3 bed • 2 bath • 828 ft²
3 bedroom semi-detached house for sale in Alexandra Grove, Runcorn, WA7 — £190,000 • 3 bed • 1 bath • 723 ft²
3 bedroom semi-detached house for sale in Holmfield Avenue, Runcorn, WA7 — £165,000 • 3 bed • 1 bath
3 bedroom semi-detached house for sale in Oxford Road, Runcorn, WA7 — £250,000 • 3 bed • 1 bath • 831 ft²






















































