Single-level seaside home with garage, sunny terrace and easy station access.
Detached single-storey home on a large, mature plot
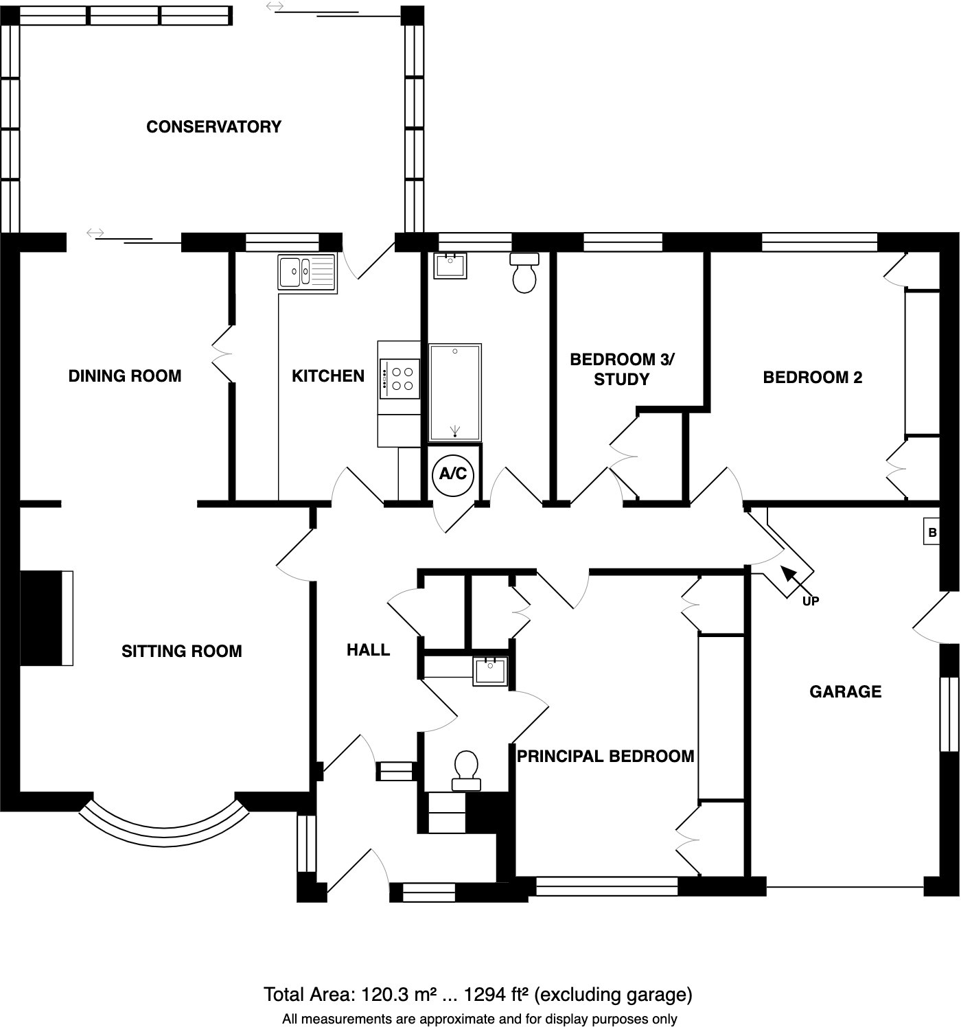
Set on a large plot in sought-after West Runton, this detached single-storey home offers comfortable, adaptable living for those seeking easy coastal access. The sitting room opens to a dining area and a spacious conservatory, creating bright entertaining spaces that flow onto a west-facing paved terrace and private garden. A fitted kitchen, modern shower room and principal bedroom with Jack-and-Jill cloakroom complete practical daily living.
Outside, the sweeping brick-weave driveway, attached garage and additional parking provide convenience for owners and guests. The garage houses the gas boiler and offers scope for conversion to additional accommodation subject to planning and building regulations. The front and rear gardens are mature and beautifully landscaped, with east-facing front beds and a sunny west-facing rear – low-maintenance yet richly planted.
Built in the mid-20th century and upgraded with uPVC double glazing and gas central heating, the bungalow is efficient (EPC C) and ready to occupy. There is limited loft storage via a part-boarded hatch; further extension or internal reconfiguration could add value but will require permissions. The conservatory has a polycarbonate roof which provides year-round light but is less thermally efficient than a glazed alternative.
This location suits downsizers or anyone wanting single-level coastal living with woodland on the doorstep and a ten-minute walk to the train station. Practical aspects such as council tax band D and freehold tenure are in place, and there is no recorded flood risk. Older construction means buyers should allow for routine maintenance and consider updates where desired.
3 bedroom detached bungalow for sale in West Runton, NR27 — £475,000 • 3 bed • 2 bath • 1149 ft²
3 bedroom detached house for sale in West Runton, NR27 — £450,000 • 3 bed • 3 bath • 1244 ft²
3 bedroom detached house for sale in West Runton, NR27 — £390,000 • 3 bed • 2 bath • 991 ft²
2 bedroom detached bungalow for sale in Sheringham, NR26 — £385,000 • 2 bed • 1 bath • 779 ft²
3 bedroom detached bungalow for sale in Sheringham, NR26 — £475,000 • 3 bed • 2 bath • 1475 ft²
1 bedroom detached bungalow for sale in Beeston Regis, Sheringham, NR26 — £350,000 • 1 bed • 1 bath • 1078 ft²






























































