Spacious family house with large garden, driveway and walking distance to schools.
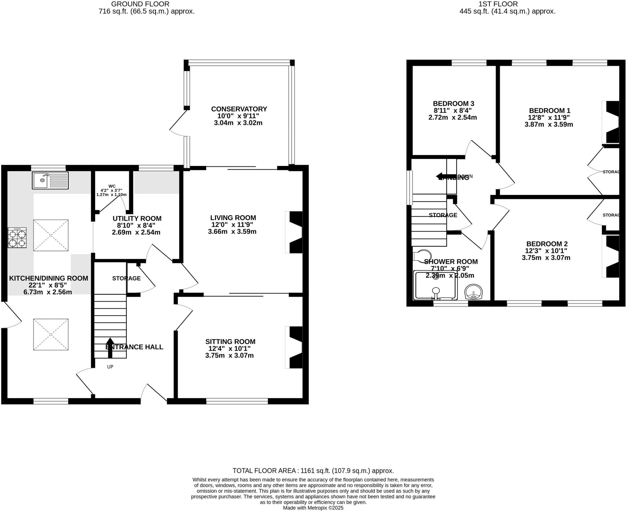
Extended 22'1" vaulted kitchen/breakfast room with skylight
This extended three-bedroom semi-detached house in Milton offers generous, family-friendly accommodation across a thoughtfully updated layout. A recent side extension creates a striking 22'1" kitchen/breakfast room with a vaulted ceiling and skylight, complemented by two reception rooms, a conservatory and a useful utility room — all arranged for everyday family life and entertaining.
Outside, the property delivers practical space: a large, level rear garden, substantial block‑paved driveway for multiple cars and off‑street parking. The home is gas‑heated with UPVC double glazing and an electric vehicle charging point already fitted. Local amenities, good primary and secondary schools, the train station and shops are within easy walking distance.
Be clear about maintenance and running costs: the roof shows signs of wear and may need attention, the property has cavity walls with no confirmed cavity insulation (assumed), and the energy rating is E. Accommodation includes a single shower room, which may be limiting for larger families. The wider area is classified as deprived and ageing urban communities, and residents should note average local crime levels.
Overall, this freehold house will suit families who want ready-to-live-in, extended space with scope to improve energy performance and update cosmetic/roofing details over time. It’s a solid balance of size, location and condition for those prioritising space and convenience rather than a turn-key energy-efficient home.
3 bedroom semi-detached house for sale in Clarkson Ave, BS22 — £360,000 • 3 bed • 1 bath • 1422 ft²
4 bedroom semi-detached house for sale in St. Austell Road, Milton - SUPERB FAMILY HOME , BS22 — £330,000 • 4 bed • 1 bath • 1001 ft²
3 bedroom semi-detached house for sale in Saville Road, Weston-super-Mare, Somerset, BS22 — £390,000 • 3 bed • 2 bath • 1268 ft²
4 bedroom semi-detached house for sale in Locking Moor Road, Milton - 4 GOOD SIZED BEDS , BS22 — £355,000 • 4 bed • 1 bath • 1200 ft²
3 bedroom semi-detached house for sale in Clarkson Ave, Milton, BS22 — £380,000 • 3 bed • 1 bath • 891 ft²
3 bedroom semi-detached house for sale in Farndale Road, BS22 — £285,000 • 3 bed • 1 bath • 796 ft²










































































