Move-in-ready apartment one mile from the hospital, ideal for first-time buyers.
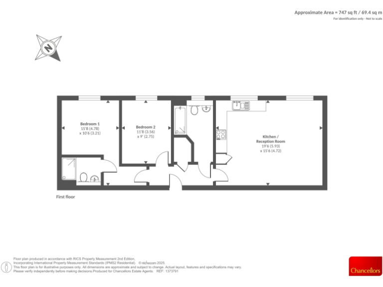
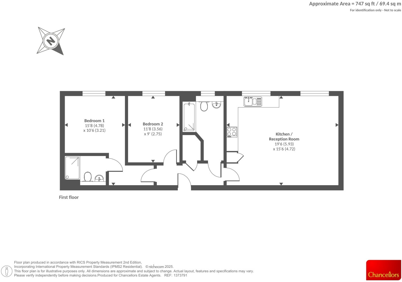
Chain-free first-floor two-bedroom apartment
This modern first-floor two-bedroom apartment offers practical living in a 2007–2011 development, about a mile from Basingstoke and North Hospital and 2.3 miles from Basingstoke station. The main bedroom has an en-suite, there are two bathrooms in total, and the open-plan living and dining area gives a flexible social hub for everyday life.
The property is chain free and comes with one allocated off-street parking space, double glazing and gas central heating via a boiler and radiators. At around 747 sq ft the flat suits first-time buyers seeking a move-in-ready home or investors looking for a straightforward rental in a low-crime area with several nearby amenities and good-rated local schools.
Practical points to note: the flat is leasehold with approximately 115 years remaining from the original 125-year term, broadband and mobile signal are average, and the local area is classified as ‘households in terraces and flats’ with a wider-area label of hampered aspiration — factors that may influence long-term resale dynamics. There is no flood risk reported and council tax is described as affordable.
2 bedroom apartment for sale in Winterthur Way, Basingstoke, RG21 — £170,000 • 2 bed • 2 bath • 714 ft²
2 bedroom apartment for sale in Winterthur Way, Basingstoke, Hampshire, RG21 — £170,000 • 2 bed • 2 bath
2 bedroom flat for sale in Wiltshire Crescent, Basingstoke, Hampshire, RG22 — £190,000 • 2 bed • 1 bath • 689 ft²
2 bedroom apartment for sale in Winterthur Way, Basingstoke, Hampshire, RG21 — £165,000 • 2 bed • 2 bath • 710 ft²
2 bedroom flat for sale in Sinclair Drive, Basingstoke, Hampshire, RG21 — £220,000 • 2 bed • 2 bath • 606 ft²
1 bedroom flat for sale in Pillar Box Gardens, Basingstoke, Hampshire, RG24 — £170,000 • 1 bed • 1 bath • 537 ft²


















































































