Chain-free two-bedroom home with garage, conservatory and driveway parking.
No onward chain — available for immediate sale
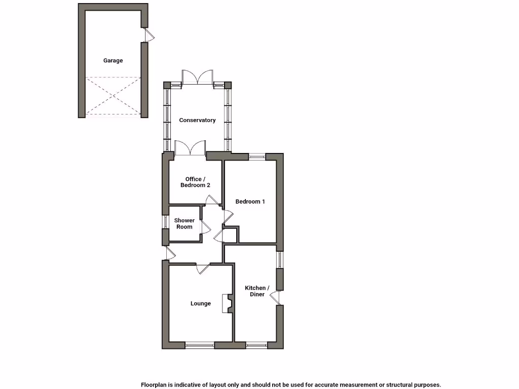
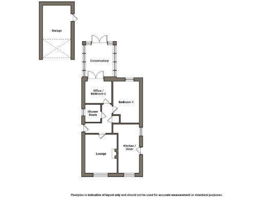
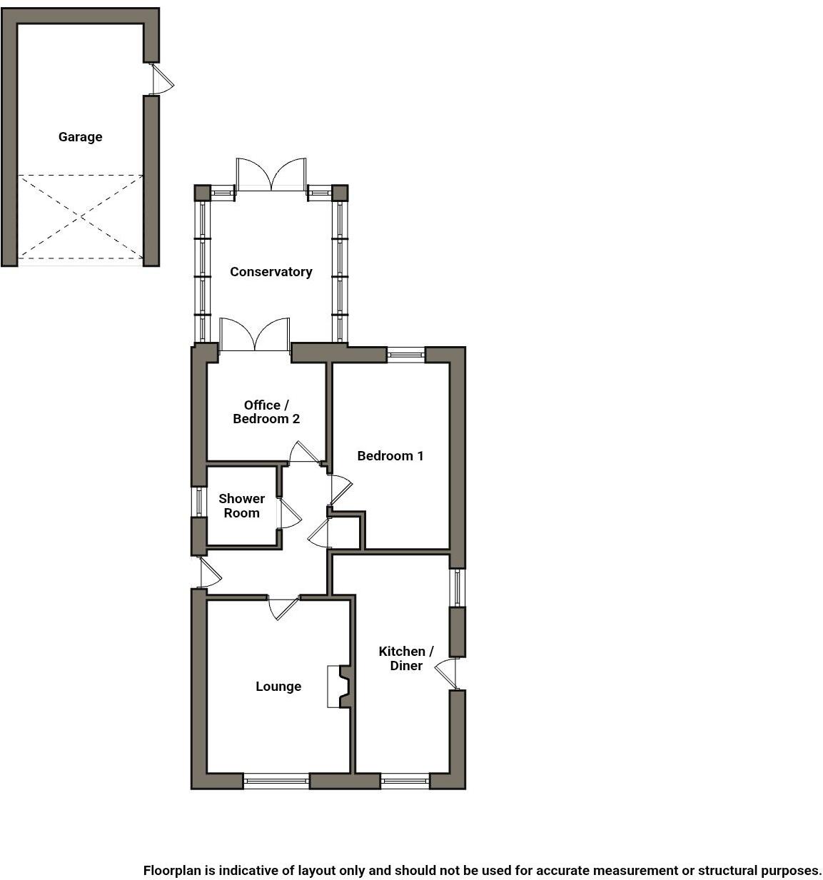
Set on a level plot in a quiet cul-de-sac, this two-bedroom detached bungalow offers straightforward, single-storey living and immediate possession with no onward chain. The layout is traditional and practical: a lounge, kitchen/diner, shower room, two bedrooms and a conservatory opening onto a low-maintenance gravelled garden. A driveway, carport and garage provide off-street parking and storage.
The property will suit downsizers or a first-time buyer seeking a modest, easily managed home with scope to personalise. Double glazing and an oil-fired boiler with radiators provide warmth; loft access with fitted ladders adds storage potential. The conservatory and kitchen/diner give flexible living space for dining or a home office.
Notable considerations are factual and important: the home is heated by oil (not a communal system) and the broadband speeds in the area are reported slow. The wider neighbourhood is classified as an older, remoter farming community with higher local deprivation indicators. Tenure is not specified and should be confirmed by any interested buyer.
Externally the plot is sensible in size and mainly gravel for low upkeep, but images indicate some external maintenance may be needed to tidy lawn and beds. Overall this is a practical, chain-free bungalow with garage and garden, offering a straightforward canvas for improvement or immediate comfortable occupancy.
2 bedroom bungalow for sale in Magdalen Close, Wainfleet, PE24 — £244,950 • 2 bed • 2 bath • 930 ft²
2 bedroom detached bungalow for sale in Rumbold Lane, Wainfleet, Skegness, PE24 — £260,000 • 2 bed • 2 bath • 1174 ft²
2 bedroom bungalow for sale in St. Michaels Lane, Wainfleet St Mary, PE24 — £175,000 • 2 bed • 1 bath • 826 ft²
4 bedroom bungalow for sale in Spilsby Road, Wainfleet, PE24 — £320,000 • 4 bed • 2 bath • 1806 ft²
2 bedroom detached bungalow for sale in Wainfleet Road, Irby-In-The-Marsh, Skegness, PE24 — £230,000 • 2 bed • 1 bath • 797 ft²
3 bedroom detached bungalow for sale in Vicarage Lane, Wainfleet St. Mary, PE24., PE24 — £200,000 • 3 bed • 1 bath • 1105 ft²


























































































