Grand Edwardian home with original features and vast, flexible living space.
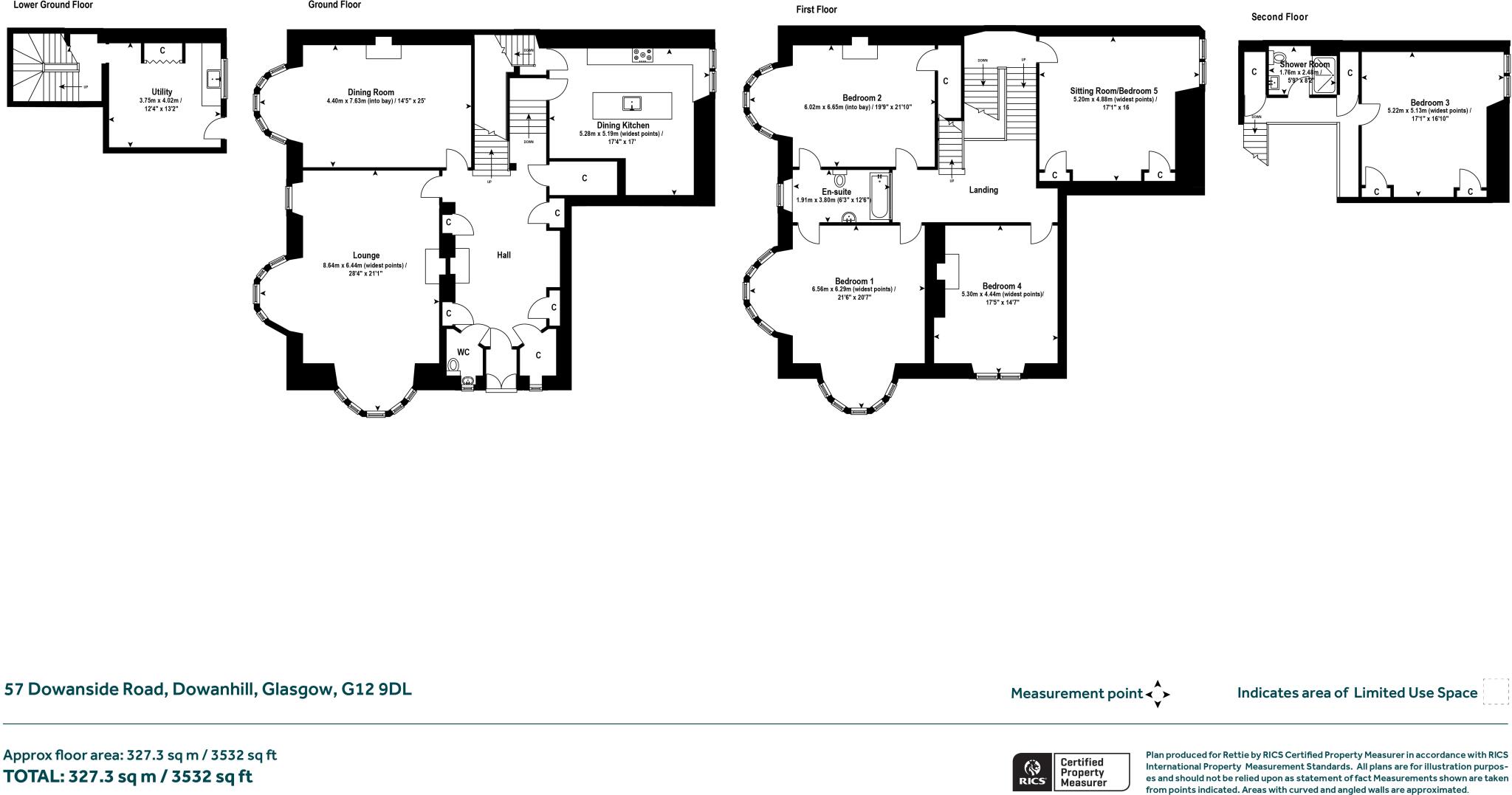
Approximately 3,532 sq ft across seven main rooms and additional service spaces
A rare, expansive Edwardian red sandstone terrace occupying a prominent corner on Dowanside Road. Extending to around 3,500 sq ft, the house keeps impressive original features — stained and leaded glass, tall ceilings, panelled walls, parquet floors and a restored stained-glass cupola — alongside generous reception rooms and a large dining kitchen. The layout includes seven principal rooms plus a dining kitchen, utility, ground-floor WC, first-floor bathroom, separate shower room and abundant built-in storage.
This home suits a family or professionals wanting substantial West End living within easy reach of Byres Road, Hyndland Road, Glasgow University and several private schools. Nearby green spaces include Dowanhill Park and the Botanic Gardens; local hospitals and transport routes are accessible. The corner position and bay-windowed principal rooms deliver light, presence and flexibility for formal and informal living.
Practical details: gas central heating, Freehold tenure, EPC rated D and Council Tax Band G (quite expensive). The property has been carefully maintained by the current owner since 1985, but the EPC grade and older fabric mean there is scope to improve energy efficiency and reduce running costs. Buyers should note the council tax level and consider potential modernisation to upgrade thermal performance if desired.
5 bedroom apartment for sale in Highburgh Road, Dowanhill, Glasgow, G12 — £515,000 • 5 bed • 2 bath • 2364 ft²
6 bedroom terraced house for sale in Princes Gardens, Glasgow, G12 — £1,400,000 • 6 bed • 2 bath • 4693 ft²
3 bedroom apartment for sale in 0/2 6 Queens Gardens, Dowanhill, G12 9DG, G12 — £530,000 • 3 bed • 2 bath • 1507 ft²
4 bedroom apartment for sale in Cleveden Drive, Kelvinside, G12 — £518,000 • 4 bed • 2 bath • 2481 ft²
5 bedroom town house for sale in Kingsborough Gardens, Hyndland, G12 — £1,275,000 • 5 bed • 3 bath • 4467 ft²
5 bedroom end of terrace house for sale in Westbourne Gardens, Glasgow, Glasgow City, G12 — £1,100,000 • 5 bed • 4 bath • 3294 ft²


































































































































































































