Quality new build with generous plot and modern kitchen for family life.
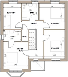
Four bedrooms with master en-suite and separate study
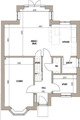
Set on a very large plot in the village of Deeping St Nicholas, this new-build four-bedroom detached home blends traditional brick construction with contemporary fixtures. The bright, open-plan kitchen/dining space features a quartz worktop with upstands, integrated appliances, and patio doors to the garden — a practical family hub. The lounge benefits from a bay window and separate study, giving space for everyday living and home working.
Specification highlights include oak internal doors, Hive heating, an intruder alarm, NHBC 10-year warranty, and selected integrated appliances and flooring as standard. Bedrooms are well proportioned with a master en-suite; white sanitaryware, thermostatic showers, chrome heated towel rails and downlighters finish the bathrooms. There is an integral garage and driveway parking, plus a fenced rear garden with turfing and outside tap.
Buyers should note broadband speeds in the area are reported slow and the property's tenure is not specified; check connectivity and legal details before committing. The developer reserves the right to make changes to design and finishes and all dimensions are approximate. Overall, this home suits families seeking a spacious, low-maintenance house in a quiet village with strong specification and long-term warranty cover.
4 bedroom detached house for sale in Littleworth Drove,
Deeping St Nicholas,
PE11 , PE11 — £409,950 • 4 bed • 1 bath • 1036 ft²
4 bedroom detached house for sale in Littleworth Drove,
Deeping St Nicholas,
PE11 , PE11 — £469,950 • 4 bed • 1 bath • 742 ft²
2 bedroom semi-detached house for sale in Littleworth Drove,
Deeping St Nicholas,
PE11 , PE11 — £189,950 • 2 bed • 1 bath • 443 ft²
3 bedroom semi-detached house for sale in Littleworth Drove,
Deeping St Nicholas,
PE11 , PE11 — £214,950 • 3 bed • 1 bath • 530 ft²
2 bedroom semi-detached house for sale in Littleworth Drove,
Deeping St Nicholas,
PE11 , PE11 — £194,950 • 2 bed • 1 bath • 443 ft²
2 bedroom semi-detached house for sale in Littleworth Drove,
Deeping St Nicholas,
PE11 , PE11 — £194,950 • 2 bed • 1 bath • 443 ft²


































































