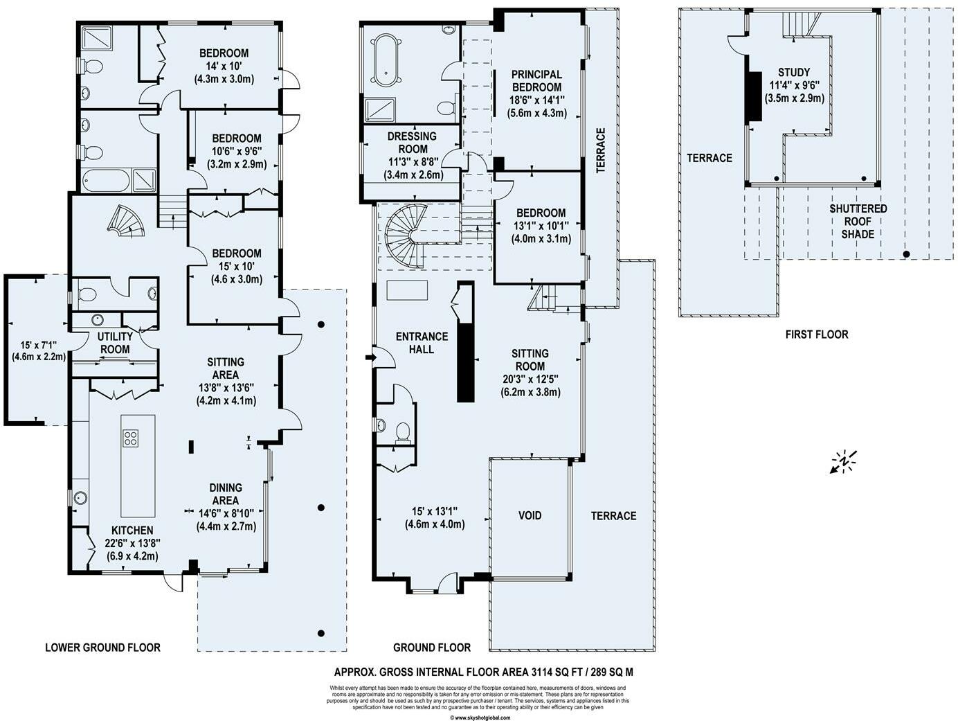
**Standout Features:**
- **Spacious Layout:** 5 bedrooms and 3 bathrooms across 3,562 sq ft.
- **Architectural Design:** Crafted by an award-winning architect with a stunning contemporary style inspired by iconic modernist principles.
- **Prime Location:** Nestled in the tranquil Surrey Hills, surrounded by picturesque villages and nature walks.
- **Energy Efficiency:** Features solar panels and advanced heating systems for reduced environmental impact.
- **Outdoor Space:** Set on 1.4 acres with sun terraces and beautifully landscaped gardens.
- **Advanced Amenities:** Heated spiral staircase, Poggenpohl kitchen, and extensive glass facades for breathtaking views.
**Potential Concerns:**
- **Maintenance Considerations:** As a modern home with complex features, some upkeep may be required, particularly for the solar and heating systems.
- **Accessibility:** While stunningly located, commuting options to larger towns may involve some travel.
**Property Summary:**
Discover the extraordinary Copse House, a contemporary 5-bedroom detached haven set on 1.4 acres in the serene Surrey Hills. Designed by an award-winning architect, this striking property features a dramatic glass facade, inviting abundant natural light and offering sweeping views of the surrounding countryside. Enjoy the luxury of open-plan living with a sophisticated Poggenpohl kitchen and multiple reception areas, ideal for family gatherings and entertaining. The unique spiral concrete staircase and high ceilings create a spacious, airy atmosphere, while the beautifully landscaped grounds and sun terraces provide the perfect backdrop for outdoor leisure.
Families will appreciate the proximity to local schools and charming villages offering essential amenities, while nature enthusiasts will revel in the miles of scenic walks just outside the door. Though maintenance of this innovative architectural gem may require some attention, its energy-efficient features and luxurious design promise a lifestyle defined by comfort and exclusivity. With its perfect blend of modern elegance and serene rural charm, Copse House is a rare offering that won't last long—schedule your viewing today!
5 bedroom detached house for sale in Hoe Lane, Abinger Hammer, Dorking, Surrey, RH5., RH5 — £2,750,000 • 5 bed • 3 bath • 3562 ft²
5 bedroom detached house for sale in High Road, Chipstead, CR5 — £2,000,000 • 5 bed • 3 bath • 3912 ft²
4 bedroom detached house for sale in London Road, Watersfield, Pulborough, West Sussex, RH20 — £2,200,000 • 4 bed • 3 bath • 3627 ft²
5 bedroom detached house for sale in Pirbright Borders, GU16 — £2,400,000 • 5 bed • 5 bath • 3517 ft²
4 bedroom detached house for sale in 5 Bens Wood Lane,
West Horsley,
KT24 6LZ, KT24 — £1,475,000 • 4 bed • 3 bath • 1896 ft²
4 bedroom detached house for sale in Westfield, Hoe Lane Abinger Hammer, Dorking, RH5 — £1,375,000 • 4 bed • 3 bath • 2603 ft²






















































































































