Victorian four-double-bedroom townhouse with basement, garden and no chain..
Four double bedrooms across multiple floors, spacious family layout
Large basement with two rooms and ensuite — versatile but inspect for light/ventilation
Victorian façade, bay windows and high ceilings with period character
Rear garden and small front garden; outdoor space but modest plot size
Well presented throughout and chain free; ready for immediate occupation
Freehold tenure, low local crime, affluent area and good schools nearby
Solid brick construction (1900–1929); likely lacks wall insulation
Double glazing present; install date unknown
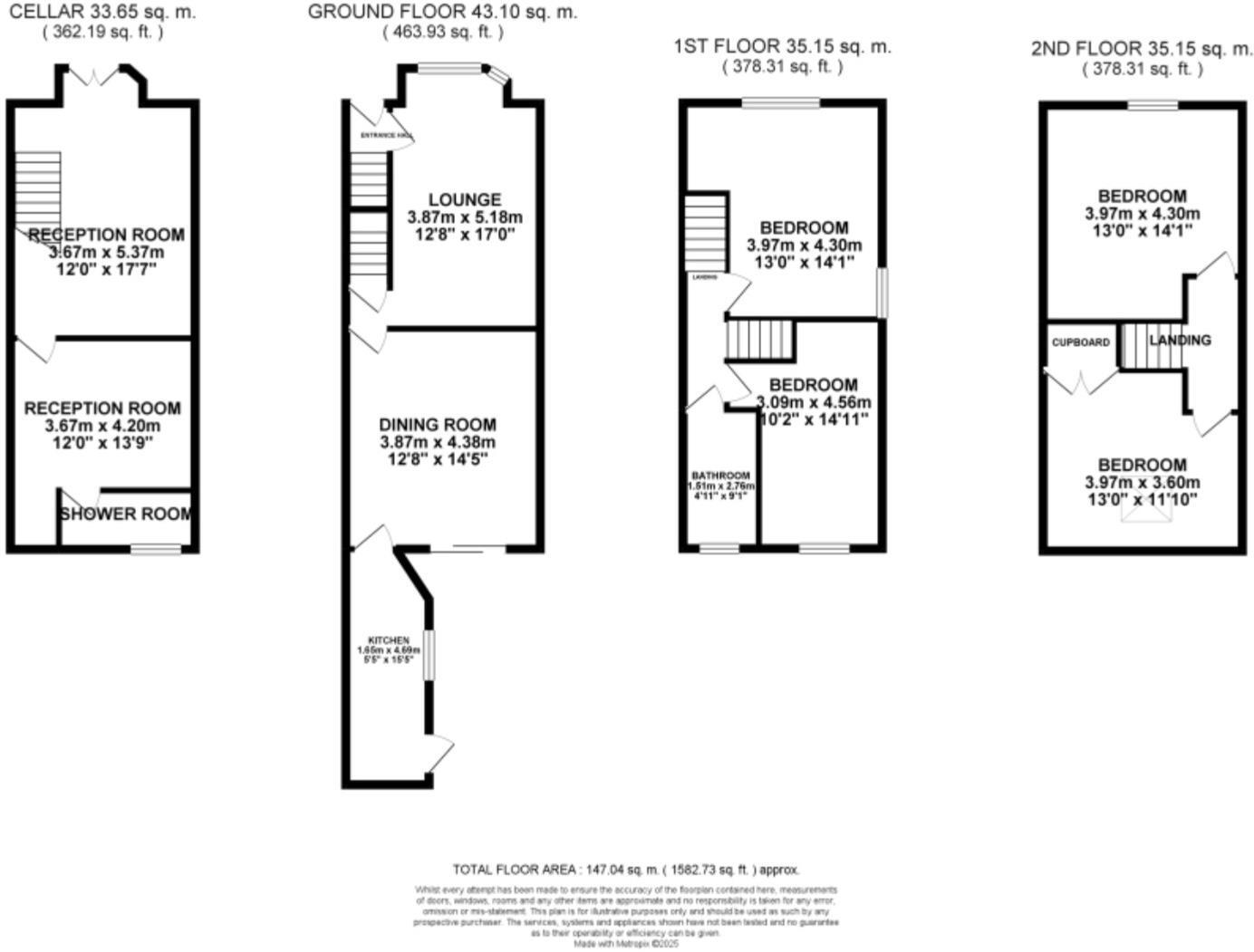
This handsome four-double-bedroom end townhouse on Mersey Road offers generous living over multiple levels, a sizeable basement with ensuite, and a private rear garden. The Victorian façade, bay windows and high ceilings give the home period character while well-presented interiors make it move-in ready for a family seeking space near Crosby’s coast and local amenities.
Ground-floor reception flows to a rear dining area and fitted galley kitchen with garden access — a practical layout for everyday family life and entertaining. Two double bedrooms and a modern family bathroom occupy the middle level, with a further two double bedrooms on the top floor providing flexibility for children, guests or a home office.
The basement provides two further rooms and an ensuite shower room, useful as a guest suite, home office or hobby space. Buyers should view the basement in person to confirm light, ventilation and any maintenance needs. The property is chain free, freehold and set in an affluent, low-crime area with excellent transport and strong local schools, making it suitable for families prioritising space and convenience.
Constructed c.1900–1929 with solid brick walls and double glazing of unknown age, the house offers classic solid construction but may benefit from insulation upgrades. The rear garden and small front plot add outdoor space, though the plot is modest. Overall this is a substantial family townhouse offering period charm, practical layout and near-coastal location.
4 bedroom terraced house for sale in Vale Road, Crosby, Liverpool, L23 — £400,000 • 4 bed • 2 bath • 1378 ft²
4 bedroom semi-detached house for sale in Manor Road, Crosby, Liverpool, L23 — £400,000 • 4 bed • 1 bath • 1560 ft²
4 bedroom terraced house for sale in Blucher Street, Waterloo, L22 — £350,000 • 4 bed • 3 bath • 1099 ft²
4 bedroom town house for sale in Vale Road, Crosby, Liverpool, L23 — £360,000 • 4 bed • 1 bath • 1335 ft²
4 bedroom semi-detached house for sale in Duddingston Avenue, Crosby, Liverpool, L23 — £375,000 • 4 bed • 1 bath • 1386 ft²
4 bedroom semi-detached house for sale in Berwick Drive, Liverpool, Merseyside, L23 — £410,000 • 4 bed • 2 bath • 1403 ft²














































































































