Convenient location near top schools and Woking station, with garden and separate annex..
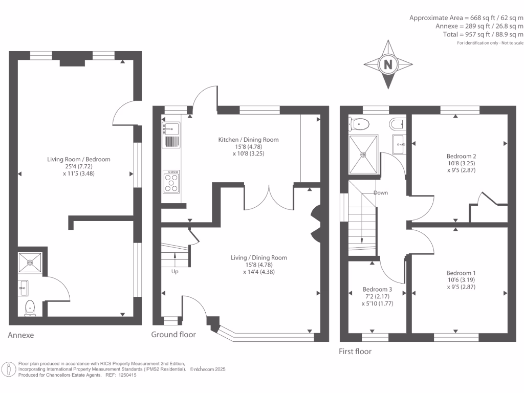
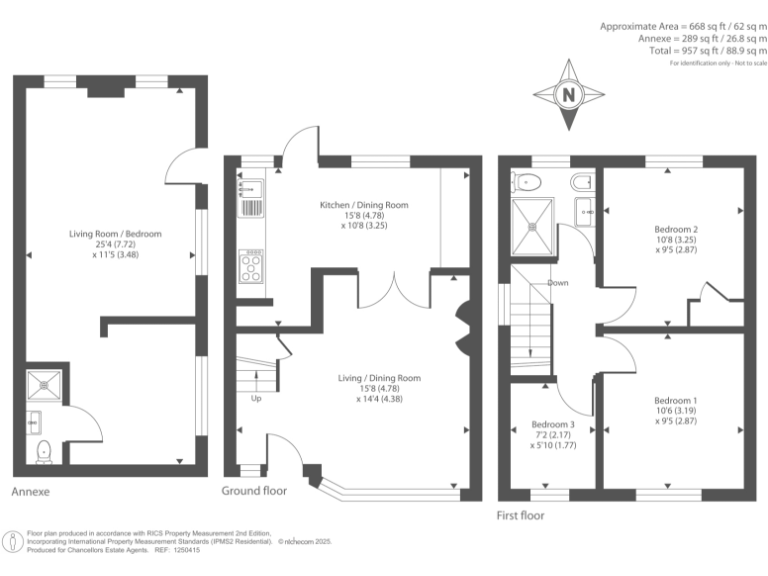
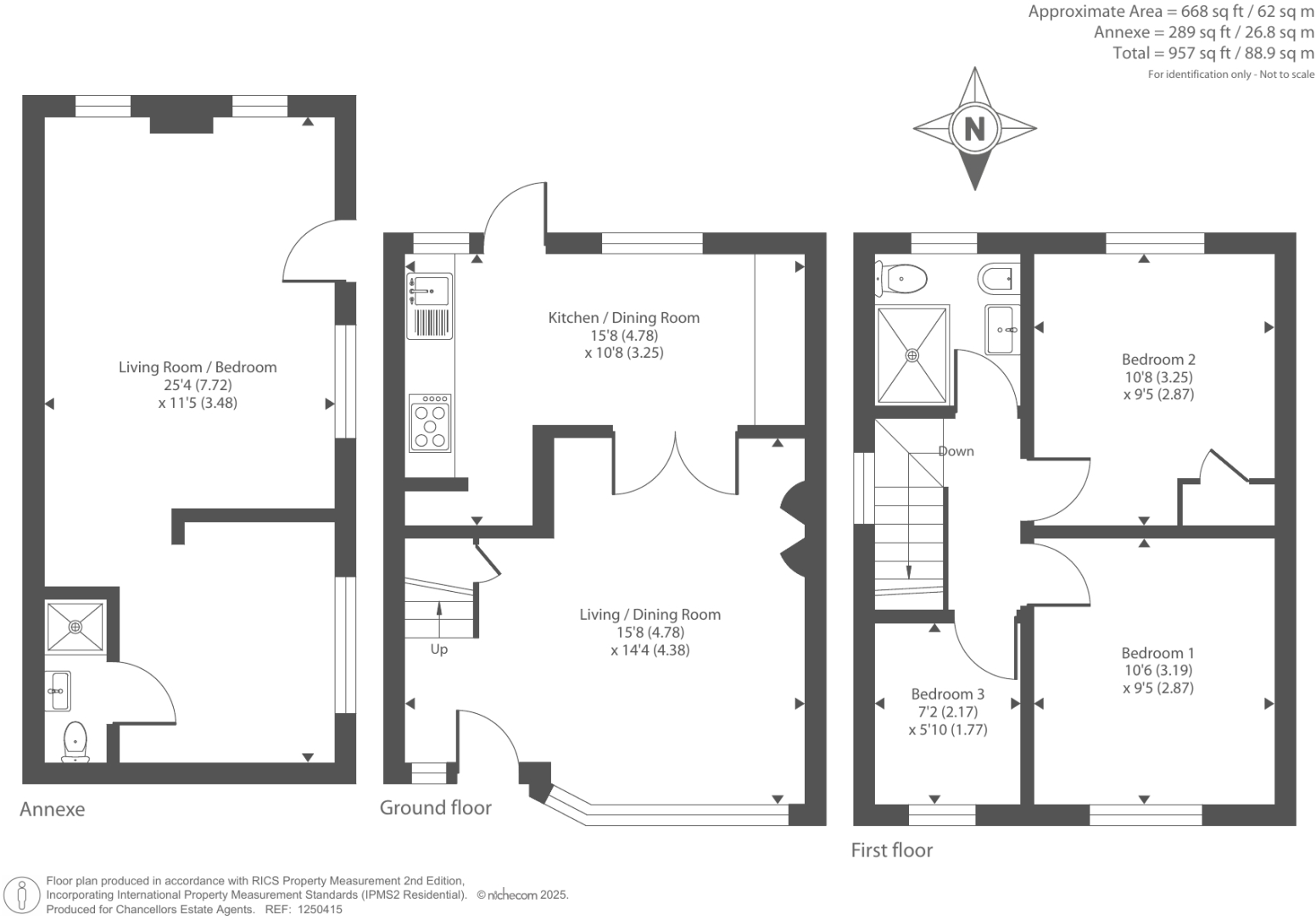
Three bedrooms plus detached granny annex for extra living or rental use|Potential to extend subject to planning permission (no application yet)|Decent rear garden with shed, fenced for privacy|Easy access to Woking town centre and station for London commuting|Excellent local schools, including an Outstanding secondary nearby|Chain free and freehold — straightforward purchase process|Solid brick walls likely uninsulated; may need insulation upgrades|Average 957 sq ft size; some modernisation likely required
This three-bedroom semi-detached home in Woking offers practical family living with good transport links and several well-regarded schools nearby. The property includes a detached granny annex and a decent rear garden with a shed, ideal for families needing extra space or rental potential. The house is chain-free and sold freehold, allowing a straightforward purchase for buyers who need to move quickly.
There is clear scope to improve and extend the house subject to planning permission; no applications are currently in place. The property is an average-sized home at around 957 sq ft, built between 1930–1949 with solid brick walls that are likely uninsulated — buyers should expect potential upgrade costs for insulation or modern energy-efficiency improvements. Double glazing was installed after 2002 and heating is via mains gas boiler and radiators.
Practical local factors work in the home's favour: excellent mobile signal, fast broadband, no flood risk, and an affluent, family-oriented neighbourhood with leisure and everyday amenities close by. Notable negatives are the likely need for some modernisation and the absence of confirmed planning permissions for any extensions — budget and planning checks are recommended before committing.
Overall this property will suit families seeking good schools and transport links, or buyers looking for a refurbishment project with an annex and extension potential.
3 bedroom semi-detached house for sale in York Road, Woking, Surrey, GU22 — £490,000 • 3 bed • 1 bath • 1044 ft²
3 bedroom semi-detached house for sale in Woking, Surrey, GU21 — £460,000 • 3 bed • 1 bath • 1103 ft²
3 bedroom end of terrace house for sale in Woking, Surrey, GU22 — £600,000 • 3 bed • 2 bath • 1419 ft²
3 bedroom end of terrace house for sale in Kent Road, Woking, Surrey, GU22 — £450,000 • 3 bed • 1 bath • 945 ft²
3 bedroom end of terrace house for sale in Oakfield, Woking, Surrey, GU21 — £450,000 • 3 bed • 2 bath • 939 ft²
4 bedroom semi-detached house for sale in Fairfax Road, Woking, Surrey, GU22 — £575,000 • 4 bed • 1 bath • 1261 ft²














































































