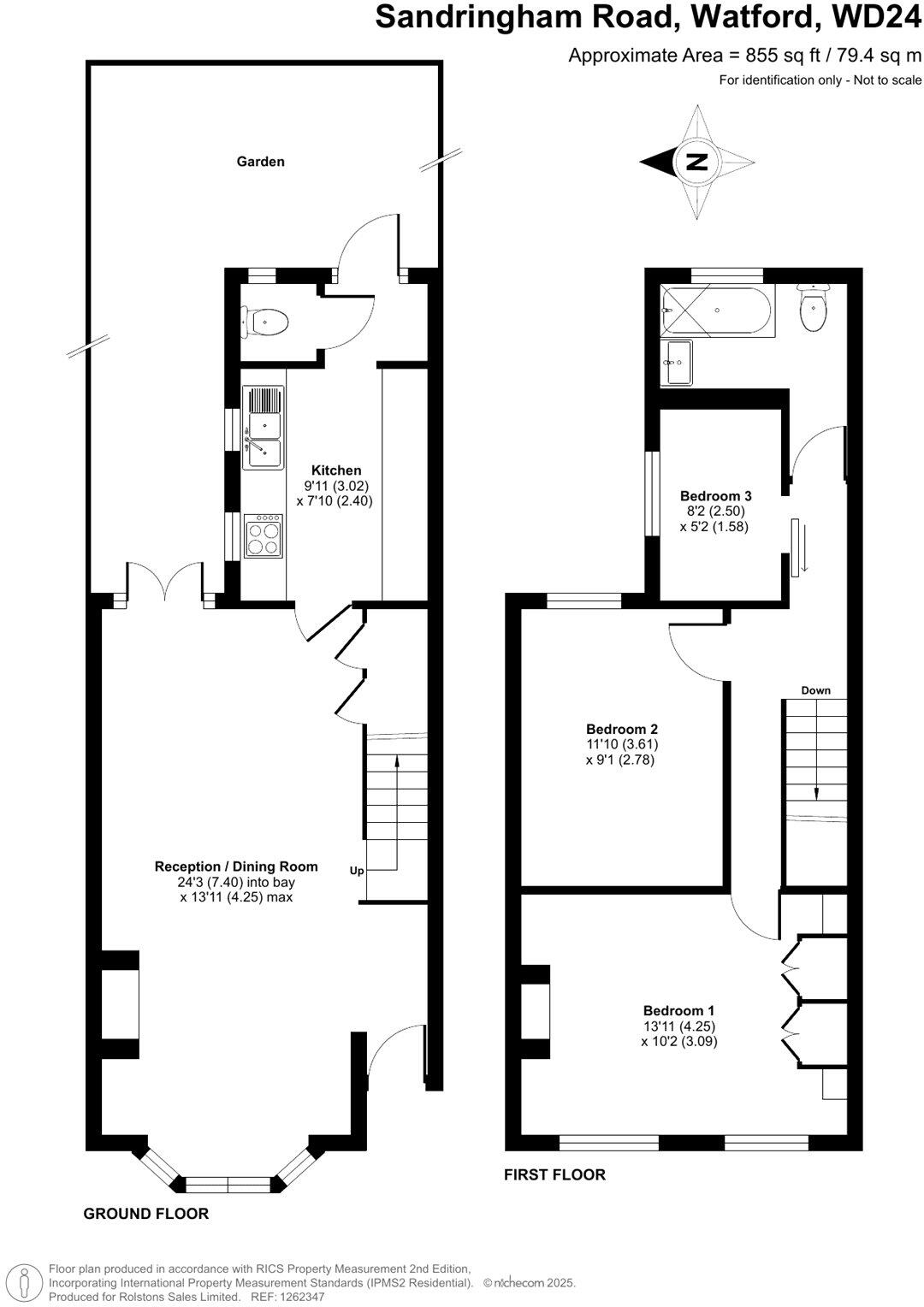
**Standout Features:**
- Three-bedroom mid-terraced home with Victorian bay window
- Spacious through lounge/dining room
- Modern fitted kitchen with access to private garden
- Guest cloakroom/WC on the ground floor
- Located near highly regarded schools, shops, and amenities
- Excellent transport links, including Watford Junction Station
- EPC rating: D; Council tax band: C
This delightful three-bedroom mid-terraced home offers a unique blend of period charm and modern convenience, making it an excellent choice for families. The inviting through lounge/dining room, accentuated by a classic bay window, provides a bright and airy space perfect for both relaxation and entertaining. The well-equipped kitchen opens to a cozy private rear garden, ideal for outdoor gatherings.
Upstairs, discover three spacious bedrooms and a contemporary family bathroom designed for comfort. Located in a family-friendly neighborhood, this property is just a stone's throw away from outstanding schools, including Watford Grammar Schools for Boys and Girls, making it ideal for families focused on education. The vibrant Watford town center and lush green spaces, such as Cassiobury Park, are easily accessible, along with excellent transport links, putting London within quick reach.
Potential downsides include an average-sized plot and above-average crime rates in the area. While the property showcases charm and functionality, prospective buyers may consider future renovations for personalization. With its appealing features and prime location, this property won't be available for long. Don’t miss the chance to make this wonderful house your family's next home!
3 bedroom terraced house for sale in Belgrave Avenue, Hertfordshire, WD18 — £475,000 • 3 bed • 1 bath • 868 ft²
3 bedroom terraced house for sale in Holywell Road, Watford, Hertfordshire, WD18 — £350,000 • 3 bed • 1 bath • 738 ft²
3 bedroom terraced house for sale in Louvain Way, Watford, WD25 — £475,000 • 3 bed • 1 bath • 898 ft²
3 bedroom house for sale in Acme Road, Watford, WD24 — £440,000 • 3 bed • 1 bath • 940 ft²
3 bedroom terraced house for sale in Vicarage Road, Watford, Hertfordshire, WD18 — £475,000 • 3 bed • 1 bath • 1037 ft²
3 bedroom terraced house for sale in Parkgate Road, Watford, Hertfordshire, WD24 — £450,000 • 3 bed • 1 bath • 880 ft²


































































































































