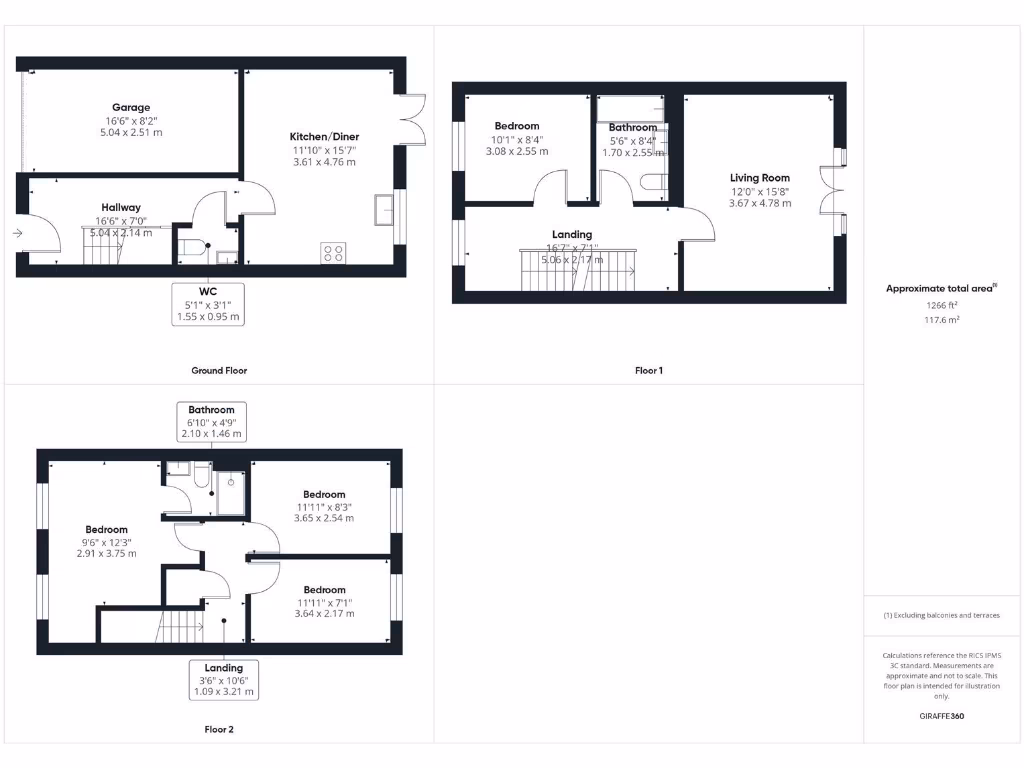
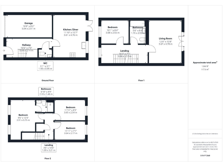
Family-friendly three-storey home close to station, schools and open green spaces.
- Four bedrooms arranged over three floors
- First-floor living room with Juliet balcony
- Master bedroom with en suite shower room
- Modern kitchen/diner with integrated appliances
- Integral garage plus driveway parking
- Enclosed rear garden, mainly laid to lawn
- Small plot; no long-distance views
- Council tax is above-average
A spacious four-bedroom semi-detached townhouse arranged over three floors on the popular Berryfields development. The home offers flexible family living with a modern kitchen/diner, a first-floor living room with Juliet balcony, and a master bedroom with en suite. Integrated garage and driveway provide convenient parking; the rear garden is enclosed and mainly lawned.
The location suits commuters and families: Aylesbury Parkway station, local shops, primary and secondary schools are close by, and the development sits beside open countryside. Interiors are practical and contemporary, with built-in appliances and French doors linking the kitchen to the garden.
Notable practical points: the plot is small and the property does not offer long-distance views. Council tax falls into an above-average band. Overall this is a ready-to-live family home with good local amenities and transport links, suited to buyers seeking three-storey accommodation in a modern development.
4 bedroom terraced house for sale in Noble Crescent, Berryfields, Aylesbury, HP18 — £460,000 • 4 bed • 2 bath • 1464 ft²
4 bedroom semi-detached house for sale in Noble Crescent, Berryfields, HP18 — £450,000 • 4 bed • 2 bath • 1489 ft²
4 bedroom town house for sale in Paradise Orchard, Berryfields, Aylesbury, HP18 — £425,000 • 4 bed • 2 bath • 1243 ft²
3 bedroom semi-detached house for sale in Brandy Street, Aylesbury, HP18 — £375,000 • 3 bed • 2 bath • 1202 ft²
4 bedroom town house for sale in Colney Road, Berryfields, Aylesbury, HP18 — £483,000 • 4 bed • 2 bath • 1561 ft²
4 bedroom end of terrace house for sale in Avalon Street, AYLESBURY, HP18 — £425,000 • 4 bed • 2 bath • 932 ft²






















































