**Standout Features:**
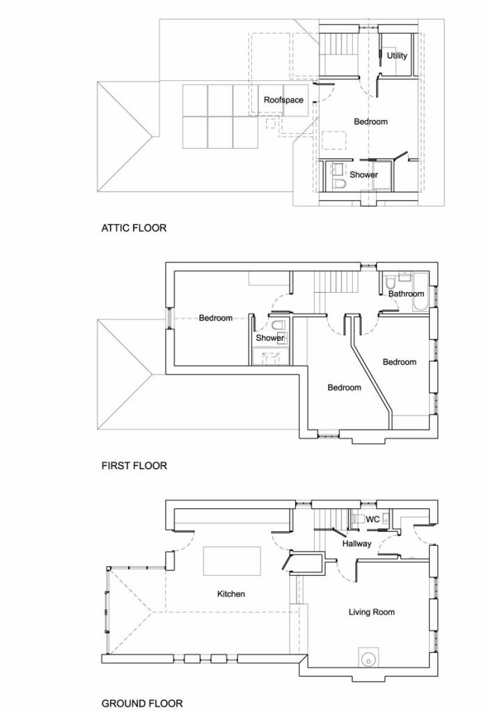
- **Building Plot:** Planning permission granted for a modern farmhouse-style, 4-bedroom detached home.
- **Parking:** Off-road parking with an open double garage.
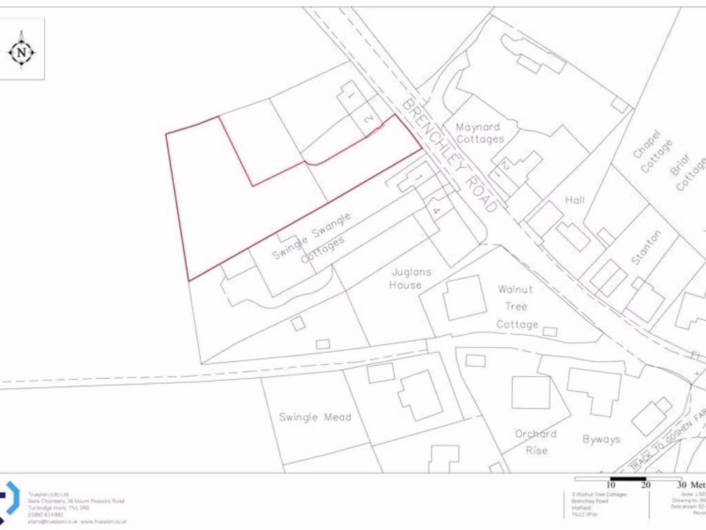
- **Location:** Situated on the outskirts of Matfield village in a low-crime, affluent rural area.
- **Outdoor Space:** Includes gardens and an adjoining meadow.
- **Connectivity:** Excellent mobile signal and fast broadband speeds.
This rarely available building plot on the outskirts of Matfield presents an exceptional opportunity to create your dream family home. With planning permission already granted for a spacious three-story, four-bedroom, three-bathroom residence, envision an open-plan kitchen/dining area and comfortable living room, tailored to your taste. The generous plot offers off-road parking, an open double garage, gardens, and a serene adjoining meadow, ideal for outdoor activities or quiet moments.
Take advantage of the local amenities and solid educational options, with several good-rated primary and secondary schools nearby. Embrace the beauty of countryside living while enjoying the security of a low-crime area. However, prospective buyers should consider that this is a building plot; thus, development and construction will require time and management. Don’t miss out on this unique chance – such prime plots with planning permission are a rare find!
4 bedroom detached house for sale in Windmill Hill, Brenchley, Tonbridge, Kent, TN12 — £700,000 • 4 bed • 1 bath • 3450 ft²
5 bedroom detached house for sale in Knowle Road, Brenchley, TN12 — £750,000 • 5 bed • 3 bath • 3500 ft²
Plot for sale in Ashes Lane, Hadlow, TN11 — £250,000 • 2 bed • 1 bath • 776 ft²
4 bedroom detached house for sale in Goudhurst Road, Marden, Tonbridge, Kent, TN12 — £425,000 • 4 bed • 3 bath • 2830 ft²
Plot for sale in Bells Yew Green Road, Bells Yew Green, Tunbridge Wells, TN3 — £1,500,000 • 5 bed • 1 bath • 4424 ft²
3 bedroom detached house for sale in DEVELOPMENT OPPORTUNITY - 24/02869/FULL - Watermans Lane, Tonbridge, TN12 6ND, TN12 — £1,100,000 • 3 bed • 2 bath • 1141 ft²










