Coastal location with balcony and garage ideal for relaxed low-maintenance living.
Two double bedrooms with generous natural light
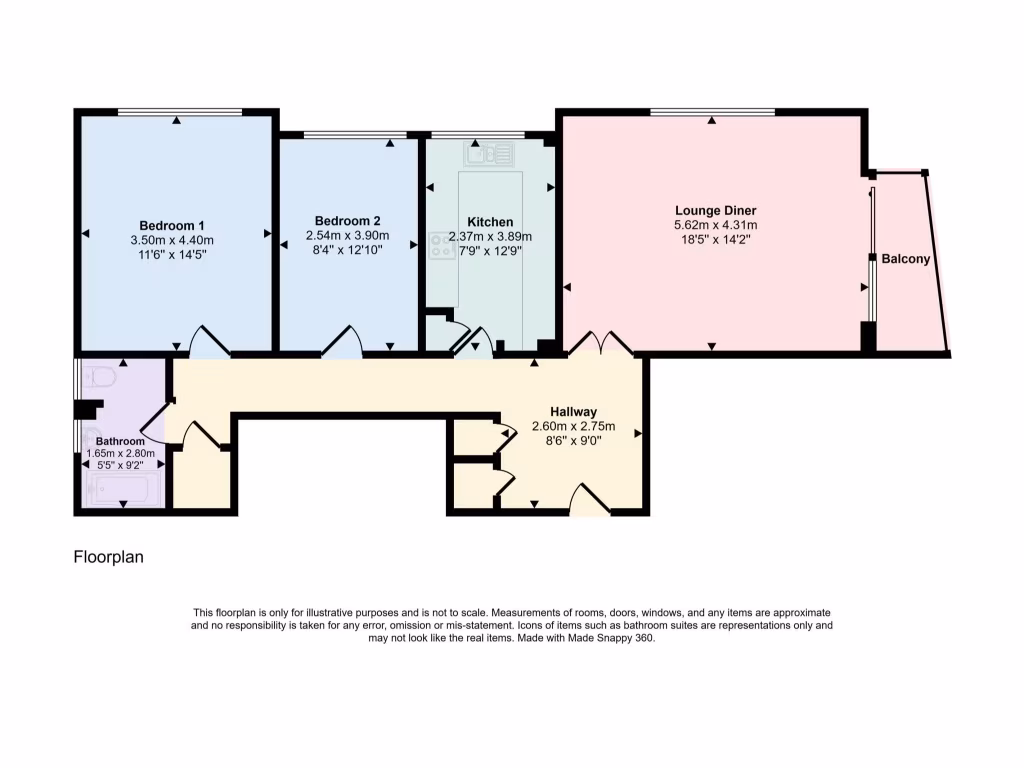
Set in the well-regarded Branksome Park area, this light two-double-bedroom apartment sits a short walk from award-winning sand and local shops. A generous living room with large windows opens onto a private balcony, offering a pleasant spot for morning coffee or sunset views. The layout is straightforward and comfortable across approximately 760 sq ft.
Practical features include a private garage plus communal parking (first-come, first-served), double glazing and a fitted kitchen with ample storage. The property is share of freehold with a long lease and an annual service charge of about £2,800. Council tax sits at Band D and flood risk is low for the location.
Note the property uses electric room heaters rather than a central gas system, and glazing predates 2002. The building dates from the late 1970s/early 1980s and reflects that period’s construction and maintenance needs; prospective buyers should factor ongoing service charge costs and any upgrading or redecoration into their budget.
This apartment will suit buyers seeking a low-stairs coastal base or downsizers wanting proximity to beach and village amenities, with potential to personalise the interior. It also offers a secure garage for storage or a car, an important convenience in this area.
2 bedroom apartment for sale in The Avenue, Poole, Dorset, BH13 — £350,000 • 2 bed • 2 bath • 1012 ft²
2 bedroom apartment for sale in 46 Western Road, BRANKSOME PARK, BH13 — £250,000 • 2 bed • 1 bath • 958 ft²
2 bedroom apartment for sale in 46 Western Road, BRANKSOME PARK, BH13 — £285,000 • 2 bed • 1 bath
2 bedroom apartment for sale in The Avenue, Poole, Dorset, BH13 — £343,000 • 2 bed • 1 bath • 920 ft²
2 bedroom apartment for sale in Gleneagles, 19 The Avenue, Branksome Park, Poole, BH13 — £297,000 • 2 bed • 1 bath • 834 ft²
2 bedroom apartment for sale in Branksea Grange 23 The Avenue, Branksome Park, BH13 — £460,000 • 2 bed • 2 bath • 1097 ft²


























































