Spacious four-bedroom house with rear land and excellent local schools.
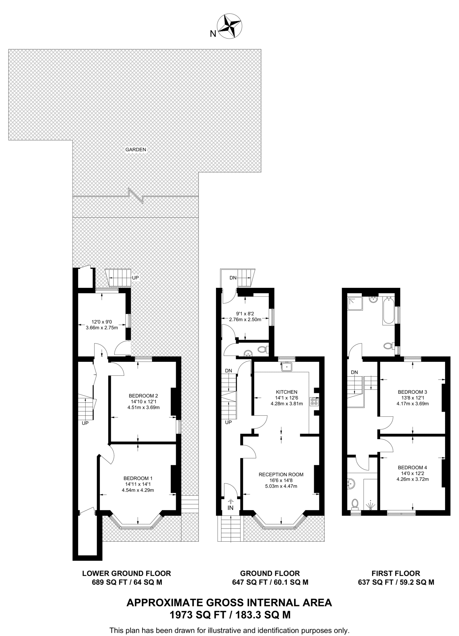
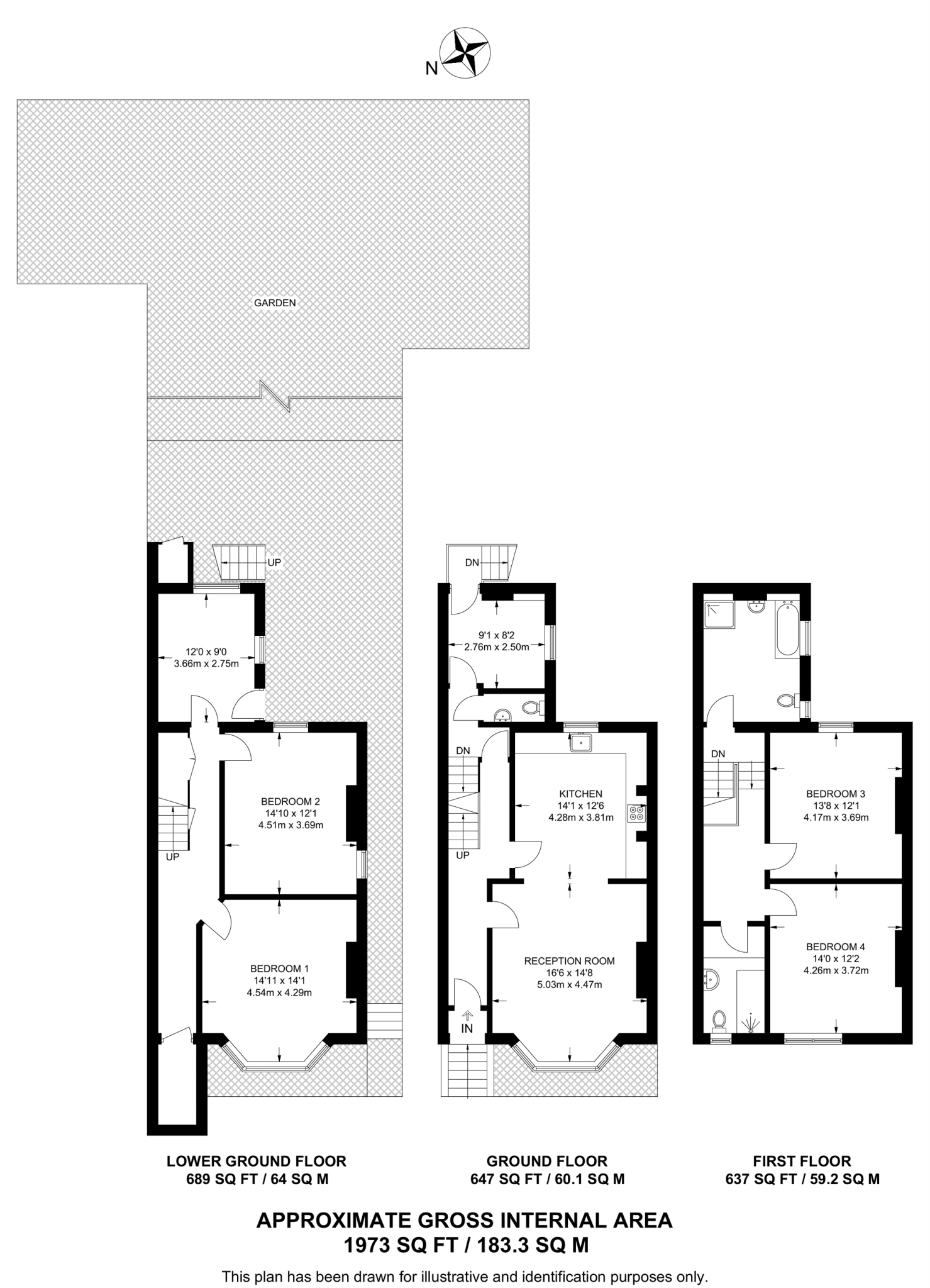
- Nearly 2,000 sq ft across three floors
A substantial four-bedroom Victorian semi-detached house arranged over three floors, offering nearly 2,000 sq ft of living space and a large private plot with additional land to the rear. The principal reception room benefits from high ceilings, a decorative ceiling rose and a bay window, creating bright, characterful entertaining space. The home is freehold and sits in a sought-after East Dulwich location close to shops, cafés, green spaces and fast transport links.
Planning permission was previously granted for a two-storey rear extension and loft conversion (reference 14/AP/2914), giving clear scope to increase living space and value subject to reinstating consent. The current fabric is traditional solid brick (early 20th century construction) and the property appears to lack modern cavity insulation — this presents both a renovation opportunity and a likely expenditure for thermal upgrades. External images reference heritage damp; a survey is recommended to quantify any remedial work.
This house will suit families seeking space and long-term potential or investors targeting refurbishment projects in a strong rental/ resale submarket. Practical positives include mains gas central heating, excellent mobile and broadband, nearby highly regarded schools and convenient rail and bus links. The layout and plot size provide flexibility for extension or garden landscaping subject to permissions.
Notable drawbacks: the property will likely require updating to modern standards (insulation, possible damp works, cosmetic refresh), and any extension plans will need administrative reinstatement if permission has lapsed. Buyers should budget for refurbishment costs and a professional inspection before purchase.
4 bedroom end of terrace house for sale in Upland Road, London, East Dulwich, SE22 — £1,300,000 • 4 bed • 1 bath • 1479 ft²
4 bedroom semi-detached house for sale in Red Post Hill, London, SE24 — £1,695,000 • 4 bed • 2 bath • 2180 ft²
4 bedroom terraced house for sale in Goodrich Road, East Dulwich, London, SE22 — £1,450,000 • 4 bed • 2 bath • 1579 ft²
3 bedroom terraced house for sale in Upland Road, East Dulwich, London, SE22 — £975,000 • 3 bed • 1 bath • 1294 ft²
3 bedroom terraced house for sale in Lordship Lane, London, SE22 — £1,000,000 • 3 bed • 1 bath • 1250 ft²
4 bedroom semi-detached house for sale in Rodwell Road, East Dulwich Road, London, SE22 — £1,400,000 • 4 bed • 2 bath • 1625 ft²


































































































