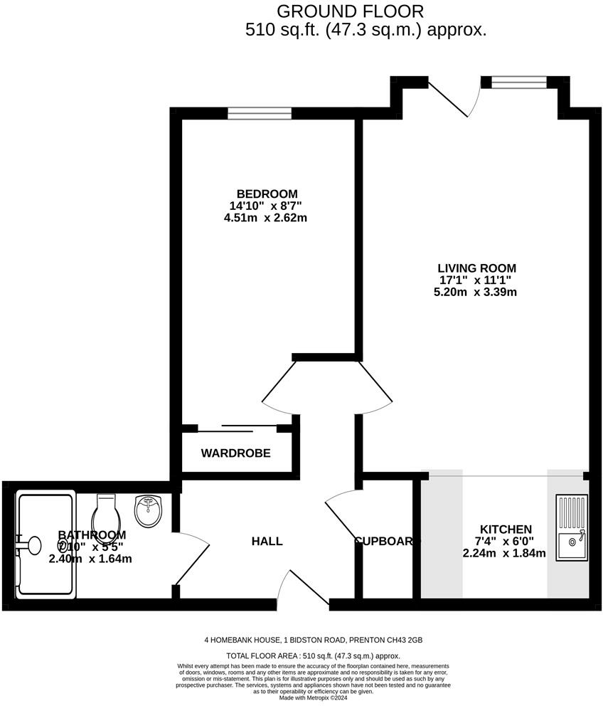
**Standout Features:**
- One-bedroom, warden-assisted apartment for over 60s
- Direct access to outdoor gardens
- Emergency pull cord for safety
- Laundry and communal sitting room facilities
- Lift access to the lower ground floor
- Chain-free with a price of £35,000
- Located close to Oxton Village
- Off-street parking available
**Concerns:**
- Leasehold property with only 59 years left on the lease, potentially limiting mortgage options
- High service charge of £2,928.99 per annum and ground rent of £550
Nestled in the serene community of Homebank House, this one-bedroom sheltered apartment offers a perfect balance of comfort and security for independent living. With a spacious living room that opens onto well-kept outdoor gardens, it invites residents to enjoy a breath of fresh air right at their doorstep. The facility provides essential support with a warden on duty weekdays, alongside convenient amenities including a laundry room and communal lounge.
However, prospective buyers should note the leasehold status, which may present challenges for financing due to only 59 years remaining on the lease. The annual service charge and ground rent, while covering crucial maintenance and communal services, are on the higher side, so budgeting is essential. This apartment, selling at an attractive price of £35,000, is an ideal match for first-time buyers or those seeking a cozy yet supportive community environment, particularly suited for the over 60s demographic. Don’t miss this chance to secure a delightful apartment in an affluent area, with the vibrant charm of Oxton Village just a stone’s throw away!
1 bedroom apartment for sale in Homebank House, Bidston Road, Oxton, CH43 — £87,000 • 1 bed • 1 bath • 649 ft²
1 bedroom retirement property for sale in Bidston Road, Oxton, Wirral, CH43 — £30,000 • 1 bed • 1 bath • 499 ft²
1 bedroom flat for sale in Bidston Road, Prenton, Wirral, CH43 — £45,000 • 1 bed • 1 bath • 527 ft²
2 bedroom apartment for sale in Bidston Road, Oxton, CH43 — £110,000 • 2 bed • 1 bath • 613 ft²
1 bedroom flat for sale in Bidston Road, Prenton, Wirral, CH43 — £40,000 • 1 bed • 1 bath • 409 ft²
1 bedroom flat for sale in Bidston Road, Prenton, Wirral, CH43 — £45,000 • 1 bed • 1 bath • 466 ft²






















































