**Standout Features:**
- Newly renovated end-of-terrace home
- Two spacious double bedrooms, including an en-suite
- Bright, dual-aspect kitchen/breakfast room
- Well-appointed landscaped rear garden
- Off-street parking for up to three vehicles
- Energy-efficient air-source heat pump heating
- Quiet village location with excellent amenities and low crime rate
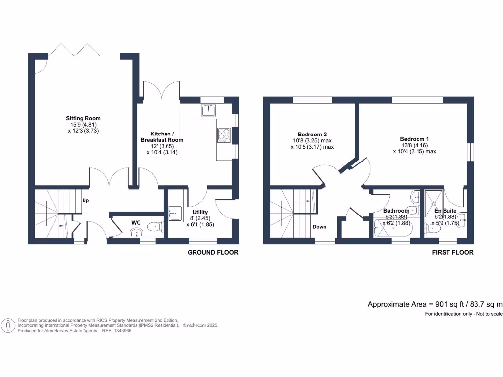
Situated in the tranquil village of Cowfold, this newly renovated end-terrace home offers a blend of luxury, modern convenience, and comfort. The spacious layout features an inviting hallway leading to a bright sitting room with a cozy wood burner and folding doors that open onto a beautifully landscaped garden—a perfect backdrop for alfresco dining and entertainment. The contemporary kitchen boasts shaker-style cabinets, stone worktops, and top-of-the-line appliances, making it a chef's dream. Upstairs, two generously sized double bedrooms provide ample space, with the master suite enjoying a private en-suite shower room.
Embrace the peaceful countryside lifestyle, with local amenities including a primary school, healthcare services, shops, and the delightful country pub just a short stroll away. This property also offers significant potential for those looking for first-time buyer affordability or investment opportunities in a highly sought-after location. With high-speed broadband and excellent mobile connectivity, this home is equally suitable for families and professionals alike. Don’t miss out on this versatile property—schedule your viewing today!
2 bedroom terraced house for sale in Horsham Road, Cowfold, RH13 — £360,000 • 2 bed • 1 bath • 1087 ft²
3 bedroom end of terrace house for sale in Acorn Avenue, Cowfold, West Sussex, RH13 — £350,000 • 3 bed • 1 bath • 776 ft²
2 bedroom end of terrace house for sale in Bolney Road, Cowfold, RH13 — £375,000 • 2 bed • 1 bath • 866 ft²
3 bedroom end of terrace house for sale in Oakapple Close, Cowfold, RH13 — £385,000 • 3 bed • 2 bath • 969 ft²
3 bedroom link detached house for sale in Acorn Avenue, Cowfold, RH13 — £475,000 • 3 bed • 2 bath • 1081 ft²
4 bedroom semi-detached house for sale in Horsham Road, Cowfold, Horsham, West Sussex, RH13 — £533,500 • 4 bed • 2 bath • 1003 ft²














































































