Victorian semi with modern extension, garden and parking close to Windsor town centre and parks.
Victorian semi-detached with period features and contemporary extension
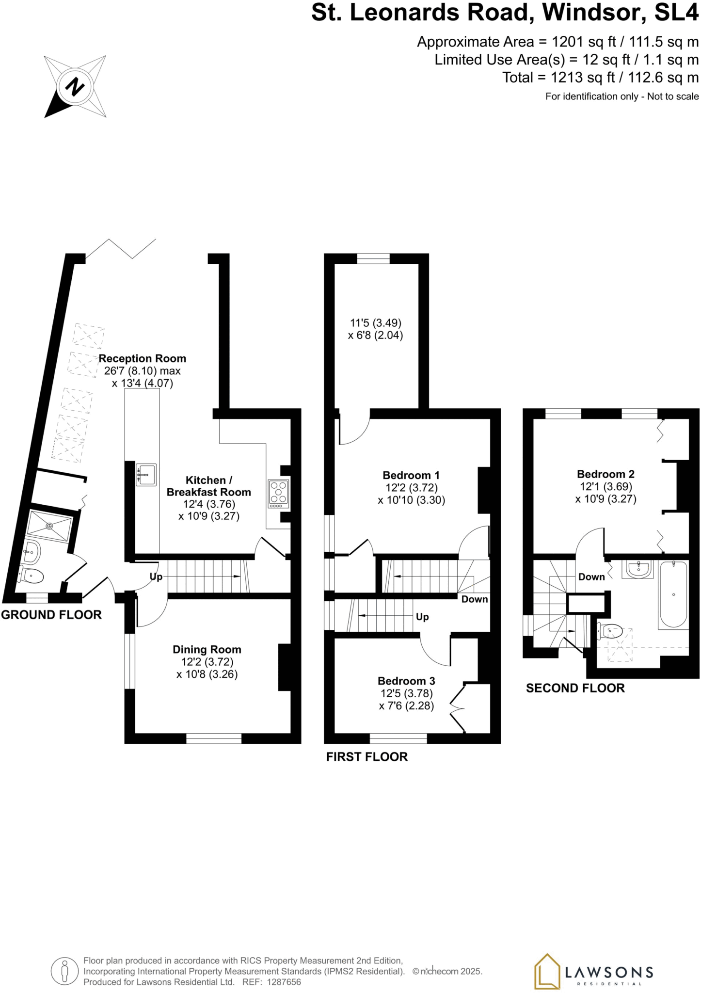
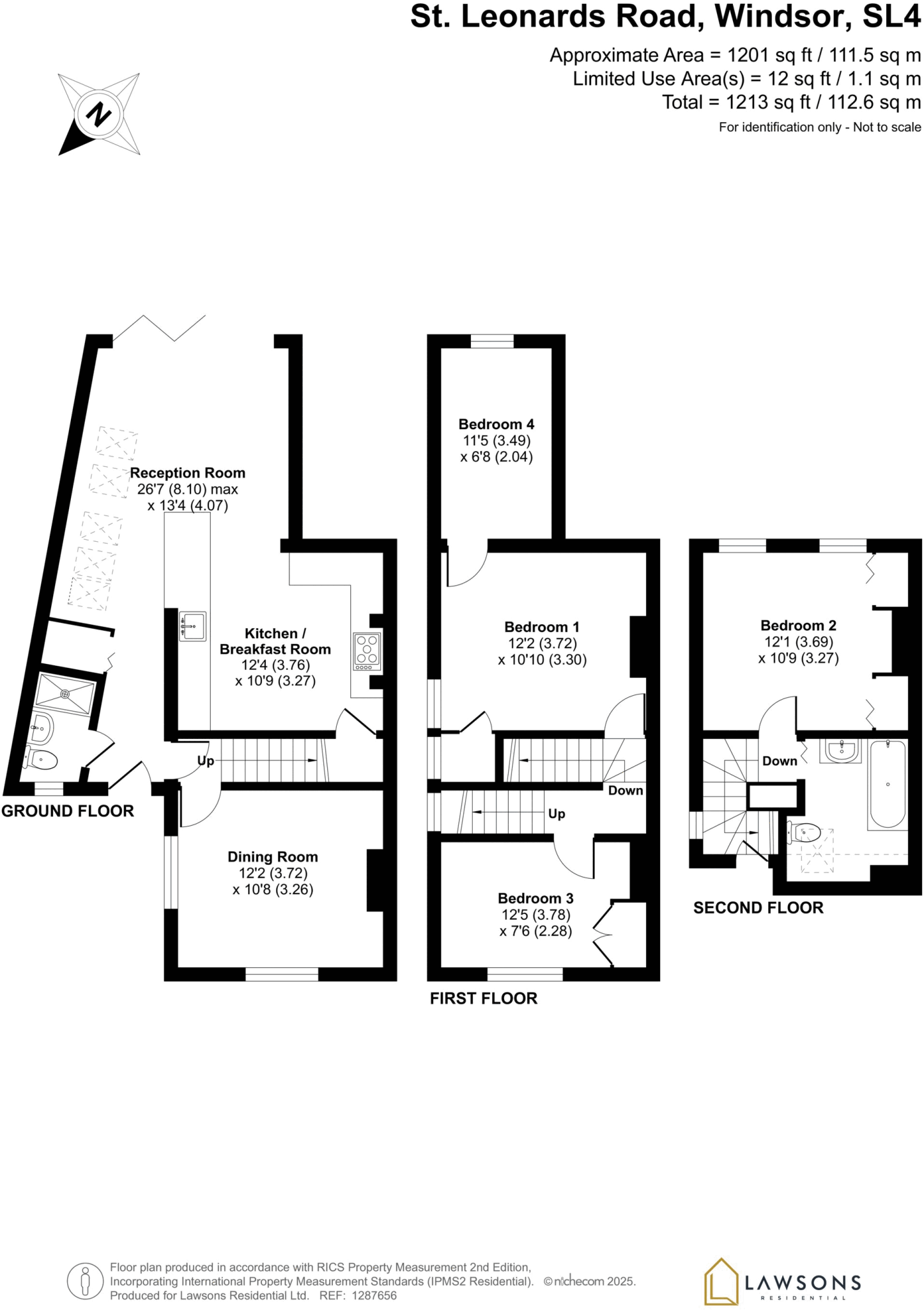
This attractive Victorian semi-detached home sits on the outskirts of Windsor town centre, within easy walking distance of shops, restaurants, train stations and green spaces such as Windsor Great Park and Stag Meadow. The house blends period character—exposed brickwork and chimneys—with a contemporary rear extension that creates a bright, double-height open-plan kitchen/living area with bi-fold doors to the garden.
Arranged over multiple levels, the property offers flexible family living: a separate snug/living room on the ground floor, a large open-plan kitchen/dining/living area that opens to the garden, and three to four bedrooms served by two bathrooms. The current layout includes one bedroom accessed via the main bedroom, which may suit families needing flexible space but could be awkward for some household arrangements. Total floor area is approximately 1,212 sq ft and the tenure is freehold.
Practical positives include off-street parking for one car, double glazing installed after 2002, fast broadband and excellent mobile signal. The area is very affluent with low crime and good nearby schools, including several well-regarded independent and state options. Note the EPC rating is D and the house’s solid brick walls are assumed to have no cavity insulation — buyers should consider potential energy-improvement work. The plot is small, and the property is best suited to buyers seeking a period home with modern living space close to Windsor amenities.
3 bedroom semi-detached house for sale in Springfield Road, Windsor, Berkshire, SL4 — £675,000 • 3 bed • 1 bath • 1101 ft²
4 bedroom semi-detached house for sale in Dedworth Road, Windsor, SL4 — £735,000 • 4 bed • 2 bath • 1495 ft²
4 bedroom terraced house for sale in Springfield Road, Windsor, SL4 — £775,000 • 4 bed • 2 bath • 1293 ft²
3 bedroom end of terrace house for sale in Grove Road, Windsor, Berkshire, SL4 — £1,795,000 • 3 bed • 2 bath • 1888 ft²
4 bedroom terraced house for sale in Oxford Road, Windsor, Berkshire, SL4 — £850,000 • 4 bed • 2 bath • 1330 ft²
4 bedroom semi-detached house for sale in Nightingale Walk, Windsor, Berkshire, SL4 — £1,250,000 • 4 bed • 3 bath • 2398 ft²














































































