Five-bed detached house with industrial unit on circa 0.5-acre plot near Cowbridge.
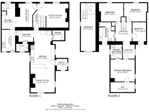
Five bedrooms including master with dressing room and en suite
Circa 0.5 acre private gardens and mature hedging
On-site commercial/industrial units plus open storage yard
Large open-plan kitchen/dining/family extension — light and character
Gated driveway with ample off-street parking and forecourt
Oil-fired central heating; EPC rating D — energy upgrades likely needed
Cavity walls assumed uninsulated; property dated 1967–75
Council tax described as very expensive
Set well back from the lane on circa 0.5 acres, this substantial five-bedroom detached house combines period character with a generous modern extension to create a flexible family home. The current layout centres on a large open-plan kitchen/dining/family room — described as the heart of the home — alongside separate sitting and living rooms, utility, pantry and useful ground-floor storage. Mature hedging and trees enclose formal lawns and a private terrace, with generous gated forecourt parking.
A distinctive benefit is the on-site commercial/industrial unit and yard accessed from the same gated driveway. Two sizeable workshop/industrial units and an open-fronted storage bay provide versatile ancillary space for home business, storage, hobby use or potential rental income. The grounds and outbuildings present clear scope for adaptation depending on buyer needs.
Practicals to note: heating is oil-fired via boiler and radiators (with underfloor controls present), glazing is double but install date is unknown, and the property dates from 1967–75 with cavity walls that are assumed uninsulated. The Energy Performance Certificate is a D. Council tax is described as very expensive. These factors mean some energy-efficiency and running-cost updates may be desirable for long-term savings.
This house will suit buyers seeking countryside living within easy reach of Cowbridge’s amenities and commuter routes (A48/M4). It particularly appeals to families wanting generous internal space and gardens, and to buyers who value the rare combination of a private home with adjoining commercial/workspace. Buyers seeking a fully turnkey, highly efficient modern home should allow budget for insulation and energy improvements.
8 bedroom detached house for sale in Llandow, Cowbridge, CF71 — £1,395,000 • 8 bed • 5 bath • 3156 ft²
4 bedroom house for sale in Glyn Ddawen, City, Cowbridge, CF71 7RW, CF71 — £550,000 • 4 bed • 2 bath • 2115 ft²
6 bedroom detached house for sale in The Orchard, Penllyn, Nr. Cowbridge, The Vale of Glamorgan CF71 7RQ, CF71 — £975,000 • 6 bed • 3 bath • 3757 ft²
4 bedroom detached house for sale in Phillips Cottage, Llandough, Cowbridge, The Vale of Glamorgan CF71 7LR, CF71 — £599,950 • 4 bed • 1 bath • 1717 ft²
4 bedroom semi-detached house for sale in Penybryn, Llantwit Major Road, Crossways, Nr Cowbridge, Vale of Glamorgan, CF71 7LJ, CF71 — £995,000 • 4 bed • 3 bath • 3579 ft²
5 bedroom detached house for sale in Dyffryn, Nr St Nicholas, Vale of Glamorgan, CF5 6SU, CF5 — £1,050,000 • 5 bed • 3 bath • 2070 ft²






















































































































