Expansive city-centre home ideal for first-time buyers seeking lots of living space.
Extremely large 1,313 sq ft two-bedroom flat
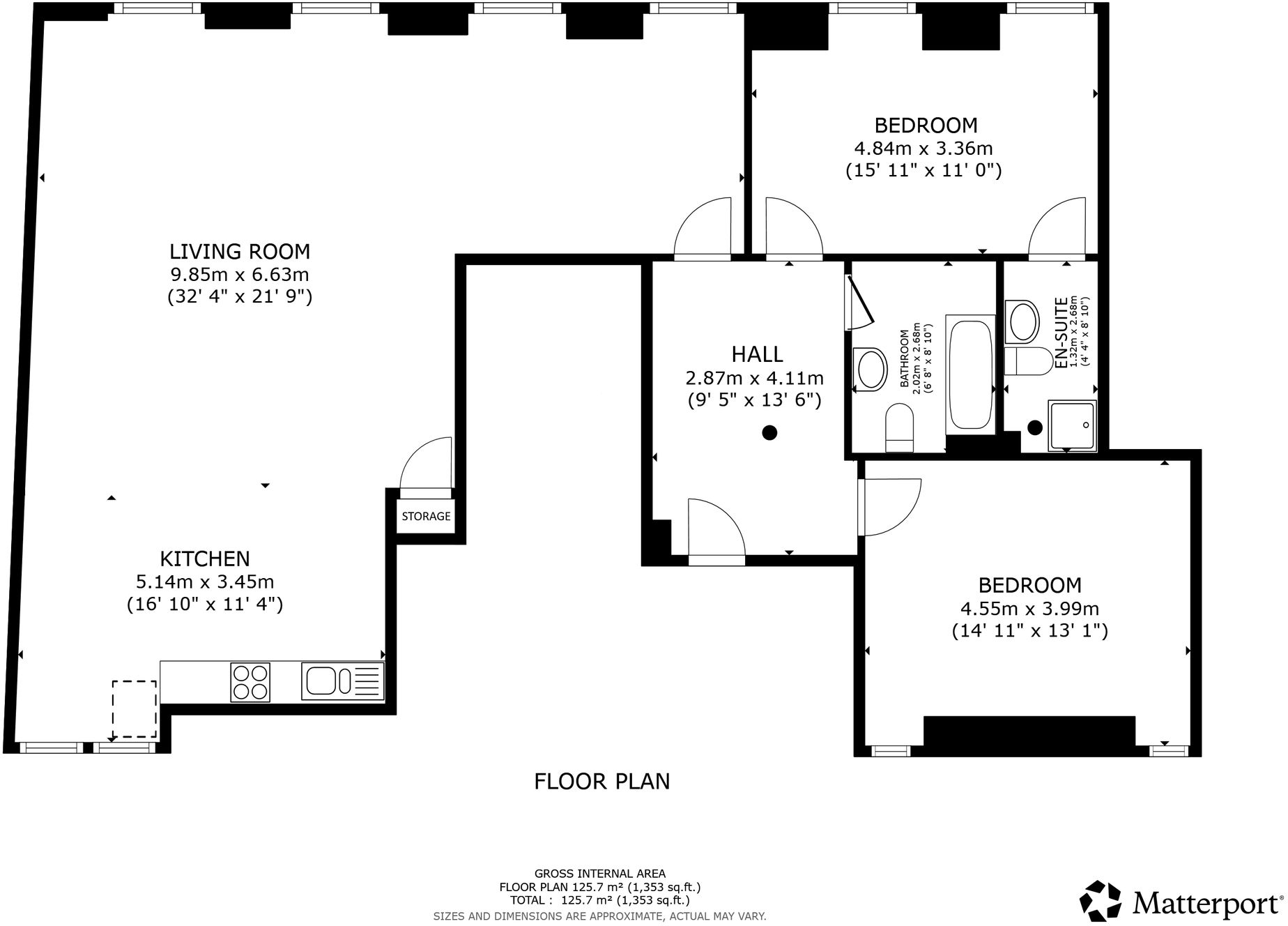
A rare, extremely large two-bedroom flat in Merchant City, set within a handsome Victorian blonde sandstone warehouse building. The first-floor apartment offers expansive open-plan living, high windows with city views and a well-equipped kitchen with breakfast bar. The principal bedroom includes an en-suite and there is a main bathroom; overall space totals approximately 1,313 sq ft.
This home suits buyers seeking a big, bright city-centre base close to Queen Street and Glasgow Central stations, and to both Strathclyde and Caledonian universities. Communal areas are well kept and access is via secure entry intercom. Mobile signal and broadband speeds are excellent, supporting home working or streaming.
Buyers should note a few material points: the property sits in a very deprived area and the immediate neighbourhood is lively with numerous bars, clubs and late-night amenities — potential noise that may not suit everyone. Council tax is described as expensive and the tenure is currently unknown, which will need confirmation before purchase. EPC rating is C.
Overall, this is a strong option for a first-time buyer who wants generous, characterful living in a central location with good transport links and modern conveniences, provided they are comfortable with the urban setting and clarify tenure and ongoing costs before committing.
2 bedroom flat for sale in Hutcheson Street, Glasgow, Glasgow City, G1 — £270,000 • 2 bed • 2 bath • 1044 ft²
2 bedroom flat for sale in 3/2 104 Brunswick Street, Glasgow, G1 — £360,000 • 2 bed • 2 bath • 1550 ft²
2 bedroom flat for sale in Hutcheson Street, Glasgow, Lanarkshire, G1 — £260,000 • 2 bed • 2 bath • 704 ft²
2 bedroom flat for sale in South Frederick Street, Glasgow, Glasgow City, G1 — £220,000 • 2 bed • 2 bath • 910 ft²
2 bedroom apartment for sale in Miller Street, Merchant City, Glasgow City, G1 — £250,000 • 2 bed • 2 bath • 840 ft²
2 bedroom flat for sale in John Street, Glasgow, Glasgow City, G1 — £310,000 • 2 bed • 2 bath • 969 ft²






































































