Large plot with paddock, polytunnel and panoramic Ayrshire hill views.
3 double bedrooms, including ground-floor bedroom for flexible living
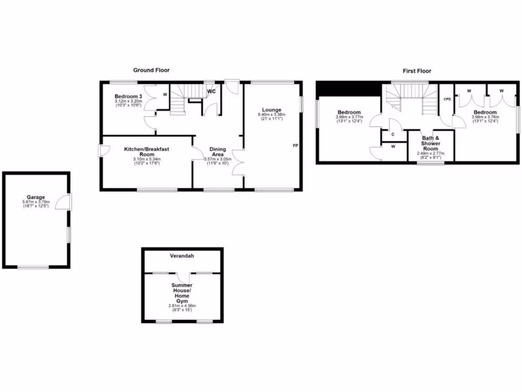
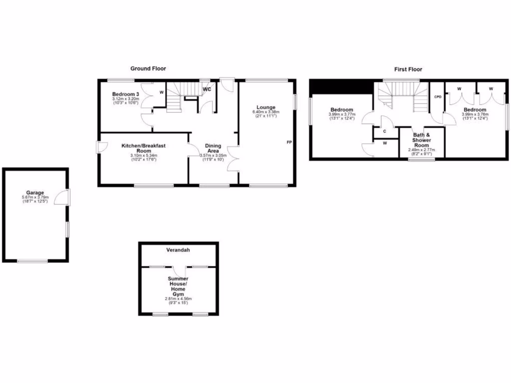
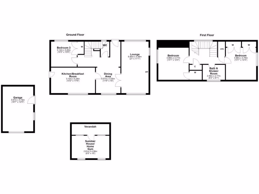
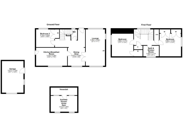
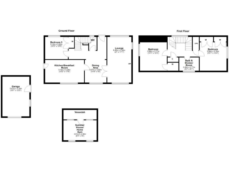
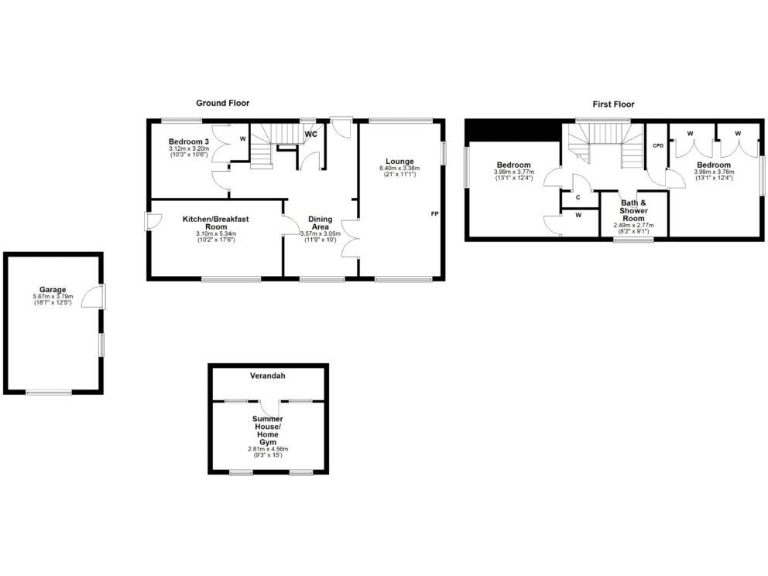
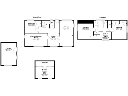
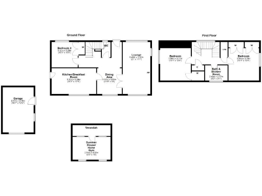
Set in open Ayrshire countryside, Speirston Farmhouse is a roomy three-bedroom detached home with sweeping views and practical outdoor space for smallholding or equestrian use. The house combines comfortable, well-presented living areas with useful outbuildings: a garage, long private driveway and a substantial polytunnel with automatic irrigation and raised beds.
Ground-floor living is flexible — a double bedroom on the lower level suits guests or multigenerational needs, while an open-plan dining area and separate lounge with a wood-burning stove take full advantage of the rear garden and hill views. Upstairs has two generous double bedrooms with built-in storage and a four-piece family bathroom including a walk-in shower.
The plot is a major asset: roughly half an acre of landscaped grounds plus around a third-acre paddock provide privacy, room for animals or hobby farming and a delightful summerhouse currently used as a studio. Practical updates were completed in 2022 (full rewiring, new oak doors, carpets). The property sits on mains water but uses a private septic tank and oil central heating.
A few practical considerations to note: broadband speeds are very slow and mobile signal is only average, which may affect home-working; the energy rating is E and heating runs from oil; the property is in a remoter, economically deprived area, so services and shops are a short drive away. For buyers seeking seclusion, outdoor space and strong rural character, this property offers a rare and versatile countryside retreat.
4 bedroom detached house for sale in Auchmillanhill Farmhouse, Mauchline, East Ayrshire, KA5 — £395,000 • 4 bed • 2 bath • 2237 ft²
4 bedroom house for sale in Meikle Maxwood Farm, Galston, East Ayrshire, KA4 — £375,000 • 4 bed • 2 bath • 2420 ft²
Farm for sale in Brackenhill Farm, Cumnock, East Ayrshire, KA18 — £695,000 • 3 bed • 1 bath • 2478 ft²
Farm for sale in Little Creoch Farm, New Cumnock, Cumnock, East Ayrshire, KA18 — £1,750,000 • 4 bed • 2 bath • 5899 ft²
5 bedroom detached house for sale in 12 Evergreen Estate, Coalhall, KA6 6PQ, KA6 — £365,000 • 5 bed • 4 bath • 2885 ft²
5 bedroom detached house for sale in Boneston Cottage, Ayr, KA6 6EU, KA6 — £440,000 • 5 bed • 3 bath • 2099 ft²






























































































































































































































































































































































































































