**Standout Features:**
- Split-level modern apartment in a contemporary development
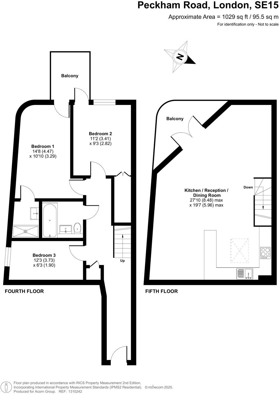
- Measures approximately 1,029 sqft with three spacious bedrooms
- Two private balconies offering impressive skyline views
- Master bedroom with en-suite shower room
- Open-plan kitchen and living space with high ceilings and large skylights
- Leasehold with 119 years left on the lease
- Service charge: £3,000 PA; Ground rent: £200 PA
- Access to communal garden and courtyard
- Excellent transport links and nearby amenities
Experience urban living at its finest in this impressive three-bedroom split-level apartment, nestled in a stylish contemporary building designed by renowned architect Peter Barber. With a focus on spaciousness and natural light, this property features a magnificent open-plan kitchen and living area complemented by soaring ceilings and large skylights, leading seamlessly to two private balconies with breathtaking views—ideal for entertaining or peaceful relaxation.
This leasehold apartment comprises well-proportioned bedrooms, including a master suite equipped with an en-suite bathroom, and an additional modern bathroom serving the other rooms. Enjoy the added comfort of a communal garden and a courtyard oasis, providing a tranquil escape in the heart of the city.
Located in a vibrant area with excellent transport links, this property caters perfectly to families and savvy investors alike. Be part of an established renting community with access to quality schools rated 'Good,' along with a variety of nearby amenities—from parks to dining options. With a guide price of £650,000 to £675,000, don’t miss this unique opportunity to own a versatile home in a sought-after location with immense future potential!











































































