Light-filled modern living a short walk to Edgware tube.
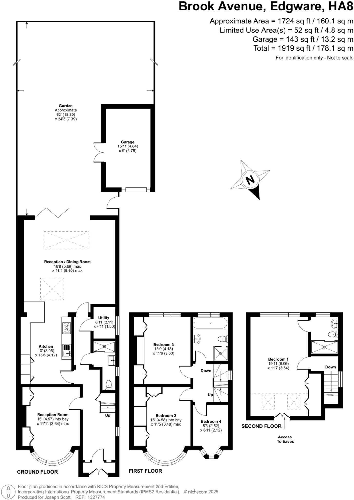
Approximately 1,900 sq ft over three floors, five bedrooms, three bathrooms
This recently renovated five-bedroom semi-detached house on Brook Avenue offers about 1,900 sq ft across three floors, designed for flexible family living. A 6m rear extension and large loft conversion create generous open-plan living with skylights and bifold doors that connect to a private decked garden.
High-quality fittings include a modern Italian kitchen with Neff integrated appliances, bespoke Sharps wardrobes, and Hillary’s electric blinds and shutters. Practical features include a utility room, guest WC, off-street parking for up to three cars and a garage with potential for annexe conversion (subject to consents).
Location is a strong asset: 0.3 miles to Edgware Underground (Northern Line) with good local schools and everyday amenities nearby. The property is freehold with mains gas central heating and double glazing, though the install date for glazing is unknown.
Buyers should note material considerations: the house was originally built 1930–1949 and the external walls are assumed to be solid brick with no built-in insulation. Council tax is above average (Band E), and local crime levels are high — important for families to factor into security and insurance costs. The garage/annexe opportunity and any further insulation or glazing upgrades will require additional investment.
3 bedroom semi-detached house for sale in Brook Avenue, Edgware, HA8 — £650,000 • 3 bed • 1 bath • 1016 ft²
5 bedroom semi-detached house for sale in Camrose Avenue, Edgware, HA8 — £750,000 • 5 bed • 2 bath • 1873 ft²
5 bedroom semi-detached house for sale in Brinkburn Gardens, Edgware, HA8 — £780,000 • 5 bed • 2 bath • 1473 ft²
3 bedroom semi-detached house for sale in Warwick Avenue, Edgware, London, HA8 — £650,000 • 3 bed • 1 bath • 1348 ft²
5 bedroom semi-detached house for sale in Newgale Gardens, Edgware, HA8 — £650,000 • 5 bed • 2 bath • 1691 ft²
5 bedroom house for sale in Upcroft Avenue, Edgware, HA8 — £875,000 • 5 bed • 2 bath • 1788 ft²






























































