**Standout Features:**
- Grade II listed mid-18th century townhouse
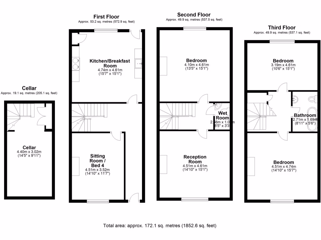
- Spacious layout over four floors, including a cellar
- Impressive kitchen/diner with a traditional AGA
- Private parking for 2-3 vehicles
- Located within Chester's historic city walls
- Original Georgian architectural features
- Charming rear garden ideal for outdoor entertaining
**Potential Concerns:**
- Requires significant renovation (roof and windows)
- Some internal modernisation needed
- Listed status may limit renovation options
Discover the timeless charm of this Grade II listed townhouse nestled on one of Chester's most picturesque cobbled streets. Spanning four generously sized floors, this home holds immense potential for those looking to infuse personal style while retaining its original character. The impressive kitchen/diner boasts a classic AGA and opens to a welcoming living space, perfect for family gatherings. With three spacious bedrooms, including two on the top floor with city wall views, there's ample room for comfort.
Though the property necessitates some restoration work, reflected in its attractive pricing, savvy buyers will appreciate the investment opportunity this presents. Imagine transforming the cellar into a cozy home office or additional living area! The superb location within Chester's Roman walls provides easy access to vibrant eateries, cultural spaces, and picturesque walks along the River Dee, making it an appealing choice for families and young professionals alike. Don't miss the chance to own this unique gem—properties like this are rare and in high demand!
3 bedroom terraced house for sale in Within The City Walls, CH1 — £650,000 • 3 bed • 2 bath • 1453 ft²
3 bedroom detached house for sale in King Street, Chester, Cheshire, CH1 — £795,000 • 3 bed • 2 bath • 1750 ft²
6 bedroom character property for sale in Castle Street, Chester, CH1 — £795,000 • 6 bed • 3 bath • 2843 ft²
5 bedroom town house for sale in Grosvenor Place, Chester, CH1 — £475,000 • 5 bed • 4 bath • 1453 ft²
1 bedroom apartment for sale in King Street, Chester, CH1 — £160,000 • 1 bed • 1 bath • 437 ft²
2 bedroom terraced house for sale in Bunce Street, Chester, CH1 — £250,000 • 2 bed • 1 bath • 591 ft²


















































