Contemporary village living with generous outdoor entertaining space.
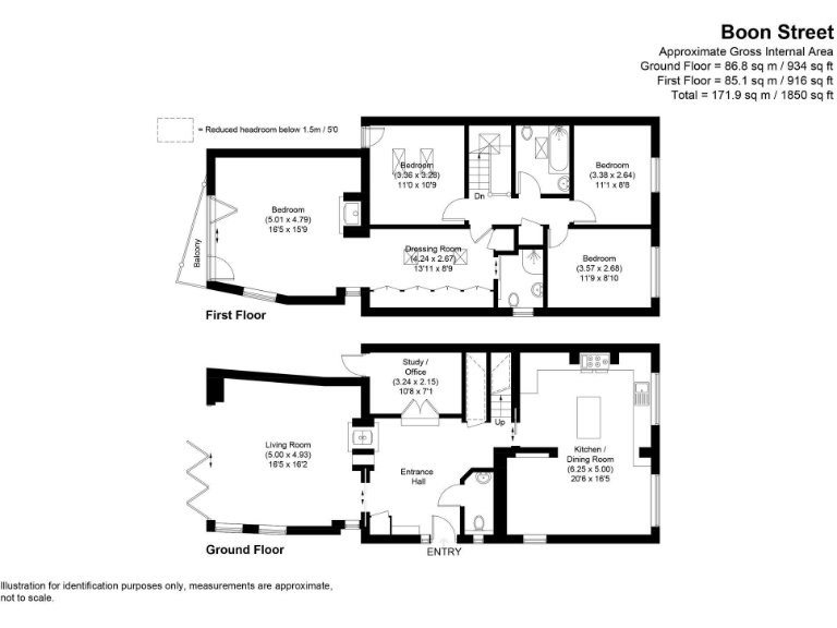
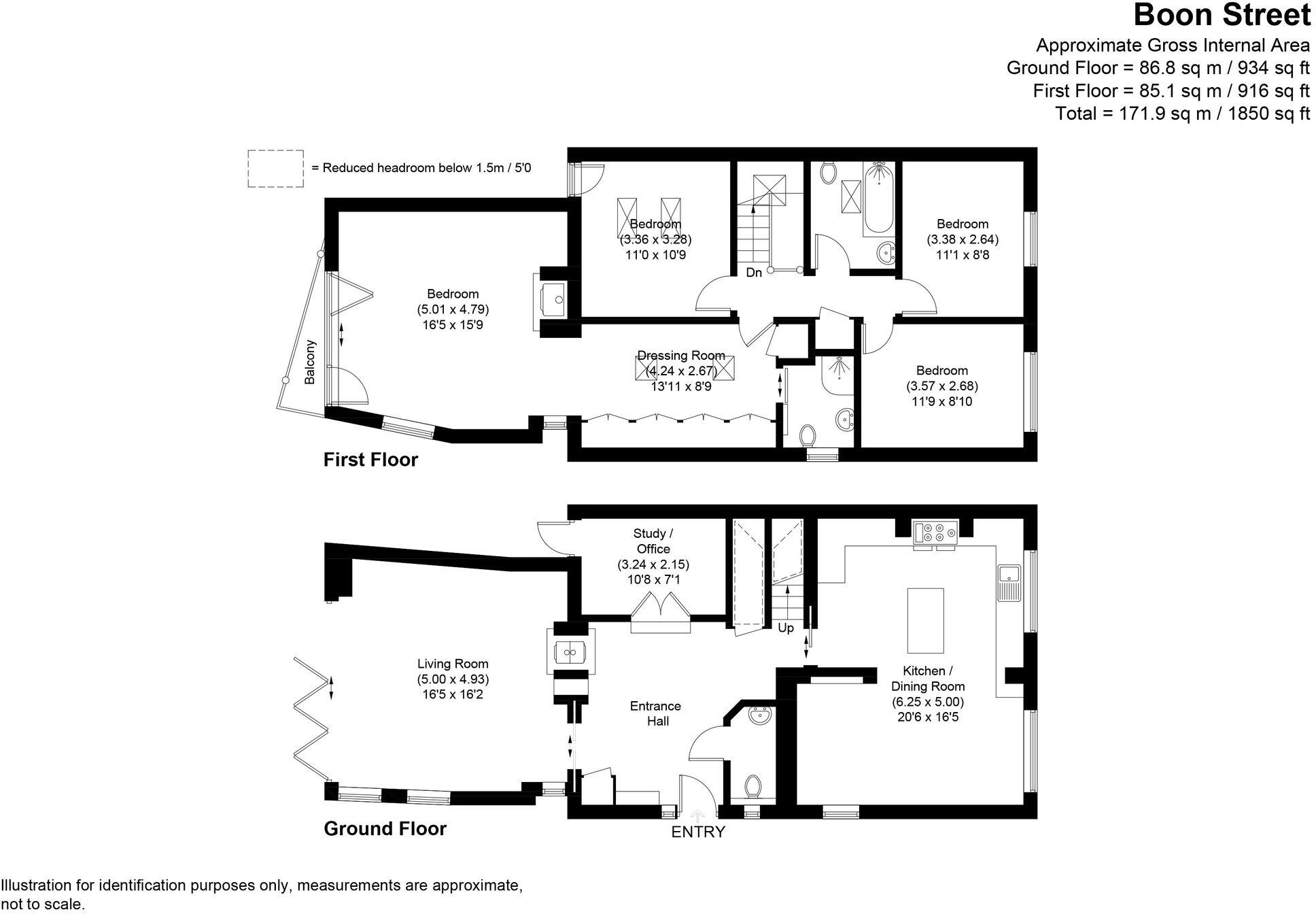
4 double bedrooms with principal en suite and balcony
Architect-designed rear extension creating open-plan living
Double-sided wood-burning stove links hall and living room
Home office with internet cabling and independent garden access
Parking for up to four vehicles; generous private rear garden
Solid brick walls assumed without cavity insulation (may need work)
Older double glazing (installed before 2002) and EPC C
Gas central heating; council tax band D (moderate)
This architect-extended four double-bedroom detached house blends contemporary layout with character details, ideal for families wanting generous living and entertaining space in Eckington. The open-plan kitchen, dining and snug is the social heart, featuring a central island and integrated appliances, while bi-fold doors connect the living room to a paved patio and lawned garden.
Principal bedroom suite offers a sizable dressing area, fitted wardrobes, en suite and a private balcony; a contemporary home office with garden access and internet cabling supports homework or flexible working. Practicalities include a downstairs cloakroom, gas central heating, double glazing throughout and parking for up to four vehicles at the front.
Notable points to consider: the property sits on solid brick walls with assumed no cavity insulation and double glazing installed before 2002, so buyers should budget for potential thermal upgrades to improve comfort and running costs. EPC grade C is reasonable but not best-in-class for a modern home.
Set in a desirable Worcestershire village, the location benefits from a primary school, village shop, two pubs and easy access to Pershore and Worcestershire Parkway station. The rear garden is private and well screened, with a large patio for entertaining and scope for further landscaping or modest improvement.
5 bedroom end of terrace house for sale in Boon Street, Eckington, WR10 — £750,000 • 5 bed • 2 bath • 2227 ft²
5 bedroom end of terrace house for sale in The Close, Eckington, Pershore, WR10 — £490,000 • 5 bed • 4 bath • 1652 ft²
3 bedroom terraced house for sale in The Close, Eckington, WR10 — £280,000 • 3 bed • 1 bath • 943 ft²
2 bedroom semi-detached house for sale in The Close, Eckington, WR10 — £315,000 • 2 bed • 1 bath • 915 ft²
4 bedroom detached house for sale in A four bedroom detached home with one bedroom detached annex, WR10 — £750,000 • 4 bed • 4 bath • 3176 ft²
3 bedroom semi-detached house for sale in Hacketts Lane, Eckington, WR10 — £325,000 • 3 bed • 2 bath • 929 ft²






























































































































































