**Standout Features:**
- Ground floor apartment in a purpose-built assisted living development for over 65s
- Direct access to communal gardens
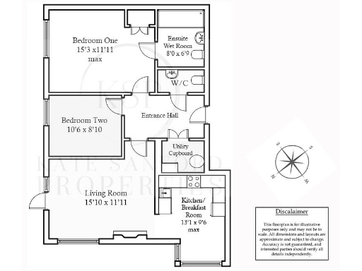
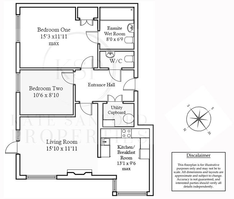
- Two bedrooms with an ensuite wet room
- Spacious kitchen/breakfast room with modern amenities
- Reserved off-street parking
- Well-maintained communal gardens
- Chain-free sale
**Concerns:**
- Leasehold property with 111 years remaining
- Service charge of £2280 annually
This inviting ground floor apartment offers the perfect blend of comfort and community in a purpose-built assisted living environment. With two spacious bedrooms and a convenient ensuite wet room, it provides an ideal living space for those seeking independence alongside tranquility. The expansive living room boasts large windows that bathe the space in natural light and leads directly to a private seating area surrounded by beautifully maintained communal gardens, fostering a serene outdoor experience.
Culinary enthusiasts will appreciate the well-equipped kitchen, featuring modern fixtures and plenty of room for dining. Added convenience comes from the utility cupboard with a washer/dryer and a separate WC for guests. This property not only accommodates relaxed living but also promotes a safe and friendly community atmosphere.
Nestled in an affluent area with good local amenities and reputable schools, this home is perfect for retirees seeking both comfort and a supportive lifestyle. Act fast—properties in such desirable, purpose-built developments don't last long! Whether looking for a peaceful place to retire or a solid investment, this apartment encapsulates both opportunity and comfort.
2 bedroom apartment for sale in Hurstwood Court, Linum Lane, Five Ash Down, East Sussex, TN22 — £249,000 • 2 bed • 1 bath • 1017 ft²
2 bedroom retirement property for sale in Linum Lane, Five Ash Down, TN22 — £249,000 • 2 bed • 1 bath • 1017 ft²
1 bedroom retirement property for sale in Montargis Way, Crowborough, TN6 — £105,000 • 1 bed • 1 bath • 443 ft²
1 bedroom flat for sale in Montargis Way, Crowborough, TN6 — £115,000 • 1 bed • 1 bath
2 bedroom retirement property for sale in Birchgrove Road, Horsted Keynes, RH17 — £360,000 • 2 bed • 1 bath • 788 ft²
1 bedroom apartment for sale in Selby Road, Uckfield, East Sussex, TN22 — £163,950 • 1 bed • 1 bath • 352 ft²


























































