Affordable Lancaster home with parking and EV charging for first-time buyers.
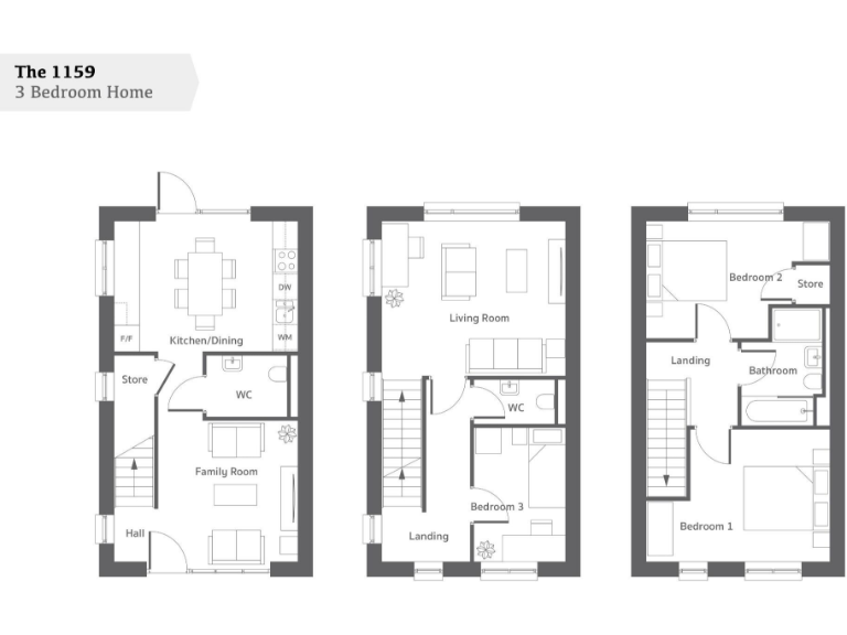
Three-bedroom, three-storey new-build layout with modern kitchen and bathroom
This three-bedroom, three-storey new-build house offers an affordable entry into Lancaster through Shared Ownership. The Eleven59 layout places an open-plan kitchen/diner and ground-floor WC on the lower level, with three bedrooms and a modern family bathroom above — a straightforward, low-maintenance home for first-time buyers.
Practical benefits include allocated off-street parking, an electric car charging point and a private turfed rear garden. The development is close to reputable primary and secondary schools, local shops, green spaces and reliable transport links into the North West — useful for commuting and family life.
Buyers should note this is a Shared Ownership sale (example: 25% share from £81,250 with rent payable), with a recurring service charge of £726.72 and additional management/insurance fees. There is a single family bathroom only, and some marketing images are CGI and may differ from final specification. A limited-time £500 contribution towards legal fees is available when conditions are met. Confirm tenure details, lease length and full charges before reservation.
3 bedroom terraced house for sale in Scotforth Road,
Lancaster,
LA1 4NU, LA1 — £243,750 • 3 bed • 1 bath • 1159 ft²
3 bedroom terraced house for sale in Scotforth Road,
Lancaster,
LA1 4NU, LA1 — £162,500 • 3 bed • 1 bath • 1159 ft²
3 bedroom terraced house for sale in Scotforth Road,
Lancaster,
LA1 4NU, LA1 — £219,375 • 3 bed • 1 bath • 940 ft²
2 bedroom terraced house for sale in Scotforth Road,
Lancaster,
LA1 4NU, LA1 — £117,500 • 2 bed • 1 bath • 775 ft²
3 bedroom terraced house for sale in Scotforth Road,
Lancaster,
LA1 4NU, LA1 — £71,875 • 3 bed • 1 bath • 940 ft²
2 bedroom terraced house for sale in Scotforth Road,
Lancaster,
LA1 4NU, LA1 — £58,750 • 2 bed • 1 bath • 775 ft²














































