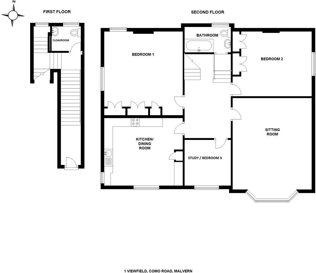
### Standout Features:
- Three spacious bedrooms with stunning views of Malvern Hills or Severn Valley
- Historic Victorian building with original features and high ceilings
- Generous sitting dining room and kitchen breakfast room
- Gas central heating and sash double glazed windows
- Convenient location with easy access to hills and commons
- Shared ownership with a tenure of 999 years (992 left)
### Summary:
Discover the charm of this beautifully presented three-bedroom apartment, nestled in a historic Victorian conversion in premier Great Malvern. With nearly 1,500 sq. ft. of space, it offers a gracious sitting dining room bathed in natural light, and a modern kitchen breakfast room, perfect for family meals or entertaining. Each room offers breathtaking views, enhancing the serenity of your living experience.
Though it requires some modernization, the apartment is already fitted with gas central heating and sash double glazed windows, ensuring comfort throughout the seasons. Ideal for first-time buyers or those seeking a lock-up-and-leave lifestyle, this property presents an opportunity to embrace both historical charm and the beauty of outdoor living.
Enjoy the added benefits of being in a highly qualified and affluent community, with excellent amenities just moments away. This property is competitively priced at £285,000 and offers an ideal canvas for your personal touch. Don't miss out on this exceptional property in a coveted area—schedule a viewing today!
2 bedroom apartment for sale in Worcester Road, Malvern, WR14 — £325,000 • 2 bed • 1 bath • 773 ft²
3 bedroom flat for sale in Flat 8, Lawnside, Albert Road South, Malvern, WR14 — £525,000 • 3 bed • 2 bath • 1357 ft²
3 bedroom flat for sale in Jubilee Court, 10 Victoria Road, Great Malvern, Worcestershire, WR14 2TD, WR14 — £520,000 • 3 bed • 2 bath • 1584 ft²
3 bedroom apartment for sale in 37 - 39 Wells Road, Malvern, WR14 — £325,000 • 3 bed • 2 bath • 1034 ft²
2 bedroom flat for sale in 5 Victoria Road, Malvern, Worcestershire, WR14 2TE, WR14 — £285,000 • 2 bed • 1 bath • 1632 ft²
2 bedroom apartment for sale in Lawnside, Albert Road South, Malvern, Worcestershire, WR14 3AH, WR14 — £375,000 • 2 bed • 2 bath • 914 ft²


























































