Quiet close beside Town Park — ample parking and renovation potential.
Chain-free four-bedroom detached house
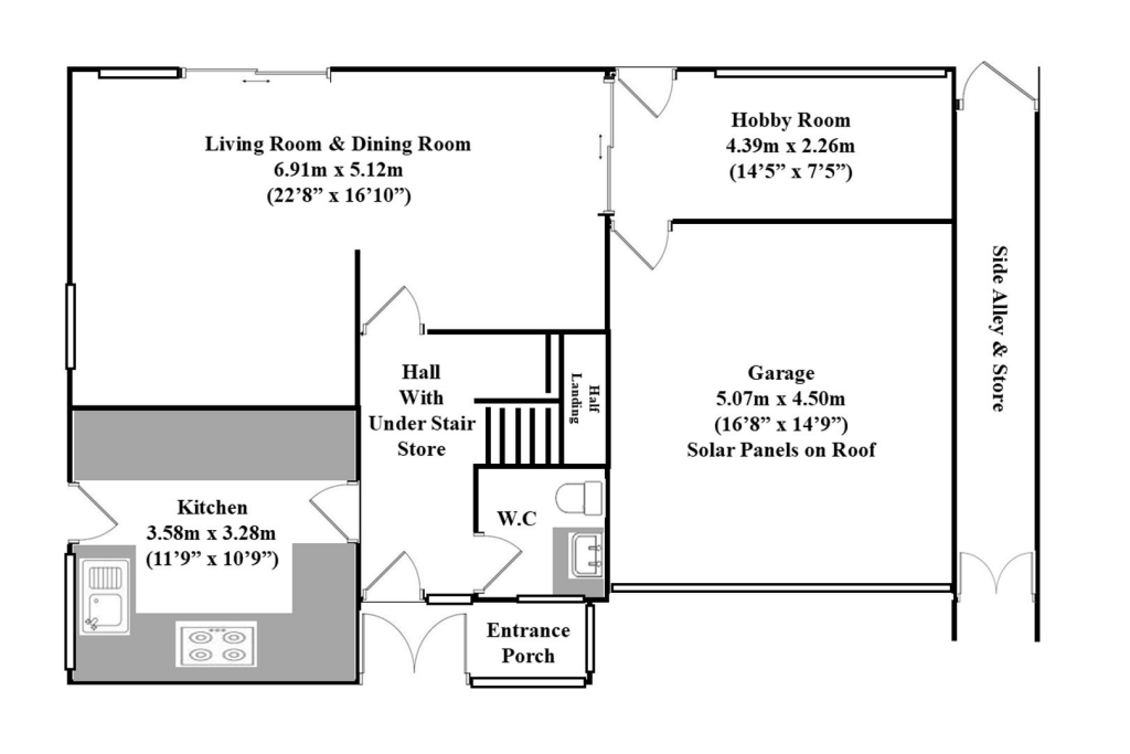
A spacious four-bedroom detached home on Greenhouse Farm Road, offered chain-free and ready for a family to personalise. Set on a decent plot in a small private close of four homes, the property benefits from a large driveway, attached double garage with remote roller door, and solar panels that reduce running costs. The ground floor layout includes an enclosed porch, practical cloakroom, fitted kitchen and a generous living/dining room with multiple patio doors to the garden. Upstairs provides four well-proportioned bedrooms and a family bathroom; there is scope to reconfigure the layout (for example to create en suites from the fourth bedroom) and to modernise the bathroom. The house requires updating throughout — the living room and some interiors are dated and would benefit from modern finishes and potential electrical or cosmetic work. The location is a strong family draw: immediate access to Town Park woodlands and trails, several good local primary schools, fast broadband and excellent mobile signal. Note the wider area is classified as very deprived, and buyers should factor any local social and economic considerations into their plans. Sold freehold with no onward chain, this property suits buyers seeking space, off-street parking and renovation potential to add value and tailor the home to modern family needs.
3 bedroom detached house for sale in Tarnbeck, Runcorn, WA7 — £280,000 • 3 bed • 2 bath • 1011 ft²
5 bedroom detached house for sale in Stockham Close, RUNCORN, Cheshire, WA7 — £400,000 • 5 bed • 3 bath • 2004 ft²
4 bedroom detached house for sale in Actons Wood Lane, Runcorn, WA7 — £350,000 • 4 bed • 2 bath • 1263 ft²
4 bedroom detached house for sale in Park Road, Runcorn, WA7 — £475,000 • 4 bed • 3 bath • 2195 ft²
3 bedroom semi-detached house for sale in Main Street, Runcorn, WA7 — £350,000 • 3 bed • 2 bath • 1548 ft²
4 bedroom detached house for sale in Dorchester Park , Runcorn, WA7 1QB, WA7 — £360,000 • 4 bed • 2 bath • 1259 ft²










































































