Two double en-suite bedrooms in a converted mill, concierge service and balcony — internal viewing advised.
Mill conversion with tall ceilings and exposed brick character
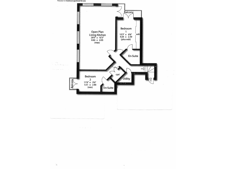
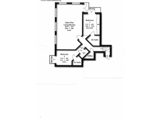
Set within a desirable mill conversion, this two-bedroom first-floor apartment combines industrial character with contemporary finishes. Tall windows, exposed brickwork and dual-aspect living create a bright, airy feel, while French doors open to a balcony from the living area and both bedrooms.
The open-plan living kitchen features a high-spec island and integrated appliances; the principal bedroom benefits from an ensuite with whirlpool bath and fitted wardrobes, while the second double also has an ensuite shower. Onsite amenities include a reception concierge and a gym, with excellent transport links via the nearby M62.
Practical details: the property is leasehold (979 years remaining) with an average service charge of £1,296 and a £50 ground rent. Heating is by electric room heaters rather than a central gas system, which may affect running costs. No pets are permitted.
Be transparent about local context: the area is classified as very deprived with higher crime levels than average, which may concern some buyers or affect resale. An internal viewing is strongly recommended to appreciate the size, ceiling heights and quality of the conversion.
2 bedroom apartment for sale in Valley Mill, Park Road, Elland, HX5 — £174,995 • 2 bed • 2 bath • 1540 ft²
2 bedroom apartment for sale in Valley Mill, Park Road, Elland, HX5 — £100,000 • 2 bed • 1 bath • 743 ft²
2 bedroom apartment for sale in Park Road, Elland, HX5 — £100,000 • 2 bed • 2 bath • 679 ft²
2 bedroom apartment for sale in Valley Mill, Elland, HX5 9GY, HX5 — £100,000 • 2 bed • 1 bath • 743 ft²
2 bedroom apartment for sale in Valley Mill, Park Road, Elland, West Yorkshire, HX5 — £185,000 • 2 bed • 2 bath • 689 ft²
2 bedroom apartment for sale in Park Road, Elland, HX5 — £165,000 • 2 bed • 2 bath • 654 ft²














































































