Large two-bed Wimbledon flat with west-facing garden and long lease.
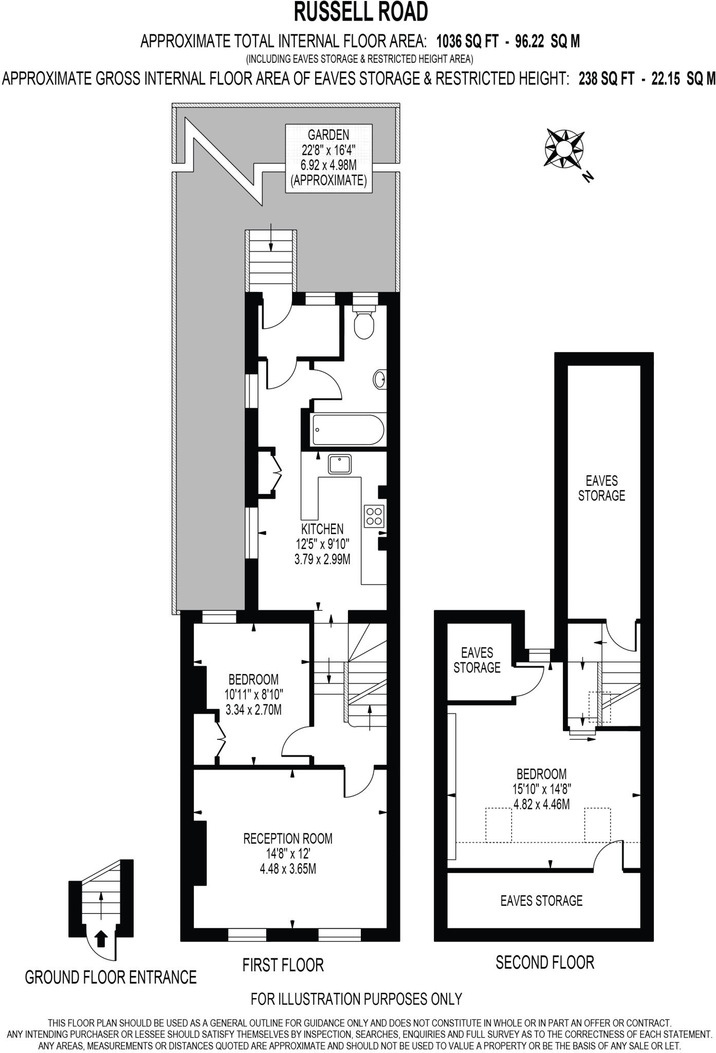
Top-floor, split-level Victorian maisonette, approx. 1,036 sq ft
A spacious two-bedroom top-floor maisonette in the heart of Wimbledon Town, offered chain-free with a long 999‑year lease. At about 1,036 sq ft this split-level flat feels larger than typical two-bed apartments, with a generous reception, good-sized kitchen/breakfast room and direct access to a west-facing shared garden — useful for evening sun and informal entertaining.
The apartment has been well maintained and benefits from period character, double glazing and contemporary kitchen fittings. Local amenities are excellent: shops, cafés and mainline and tube stations are within easy walking distance, and a number of highly regarded primary and secondary schools sit nearby, making the location attractive for first-time buyers wanting strong local amenities and transport links.
Practical points to note: the property is leasehold (999 years remaining) with a peppercorn ground rent, EPC rating D and a single bathroom serving two bedrooms. The building's original solid-brick construction suggests potential energy-efficiency improvements could be made (insulation upgrades, heating tweaks) to reduce running costs. Council tax is moderate.
Overall this is a roomy, well-located maisonette that will appeal to first-time buyers or investors seeking a ready-to-move-in home with scope for modest energy improvements and value enhancement over time.
2 bedroom apartment for sale in Pixham Court, Lake Road, Wimbledon, SW19 — £595,000 • 2 bed • 1 bath • 610 ft²
2 bedroom maisonette for sale in Wilfred Owen Close, London, SW19 — £380,000 • 2 bed • 2 bath • 896 ft²
3 bedroom apartment for sale in Hartfield Road, London, SW19 — £545,000 • 3 bed • 2 bath • 855 ft²
3 bedroom apartment for sale in Pelham Road, Wimbledon, London, SW19 — £625,000 • 3 bed • 1 bath • 928 ft²
2 bedroom apartment for sale in Thornton Hill, London, SW19 — £565,000 • 2 bed • 1 bath • 536 ft²
2 bedroom maisonette for sale in Quicks Road, Wimbledon, SW19 — £500,000 • 2 bed • 1 bath • 690 ft²






























































