Spacious, energy-efficient family living on a large plot near Great Dunmow.
New-build four-bedroom detached house with double garage and study
High specification HÄCKER kitchen; open-plan living and utility room
A-rated energy efficiency with solar panels and air source heat pump
Underfloor heating throughout; low running costs expected
Very large plot with substantial garden and countryside aspects
Hamlet location — peaceful but potentially isolated; average mobile signal
Fast broadband and low local crime; good road and rail connections
Some images are CGI or show other plots; final finishes may vary
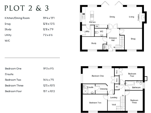
Plot 3 at The Maypoles is a newly built, four-bedroom detached home designed for modern family living in Essex countryside. The house combines generous living space with high-end specification — HÄCKER kitchens, fitted study, utility room and a double garage — making it ready for practical day-to-day life and entertaining. Energy-efficient systems including solar panels and an air source heat pump support low running costs alongside an A-rated energy label and underfloor heating.
The layout centres on open-plan living and a well-proportioned master suite with en-suite and dressing area, plus three further bedrooms. The property sits on a very large plot offering substantial garden space and countryside views, set within a small exclusive collection of homes. Connectivity is strong for a rural setting: fast broadband, low local crime, and good road and rail links to Great Dunmow, Bishop’s Stortford and London.
Important practical notes: this is a new-build plot and some marketing images are CGI or show a different plot — final finishes and landscaping may vary. The home occupies a hamlet-style location which affords tranquillity but can feel isolated; mobile signal is average. Council tax banding is not yet confirmed. The developer indicates the property can be completed in time for Christmas.
4 bedroom detached house for sale in Chelmsford Road, Barnston, Dunmow, CM6 — £1,100,000 • 4 bed • 3 bath • 2029 ft²
4 bedroom detached house for sale in Larcombe Mews, Main Road, Margaretting, Ingatestone, CM4 — £900,000 • 4 bed • 3 bath • 1818 ft²
5 bedroom detached house for sale in Off Duck Street,
Little Easton,
Dunmow,
CM6 2JE, CM6 — £865,000 • 5 bed • 3 bath • 2101 ft²
4 bedroom detached house for sale in Lindsell, Dunmow, CM6 — £900,000 • 4 bed • 3 bath • 2400 ft²
3 bedroom detached house for sale in The Maples,
Long Green,
Braintree,
Essex,
CM77 8DL
, CM77 — £420,000 • 3 bed • 1 bath • 1461 ft²
3 bedroom detached house for sale in The Maples,
Long Green,
Braintree,
Essex,
CM77 8DL
, CM77 — £435,000 • 3 bed • 1 bath • 727 ft²






































