**Standout Features:**
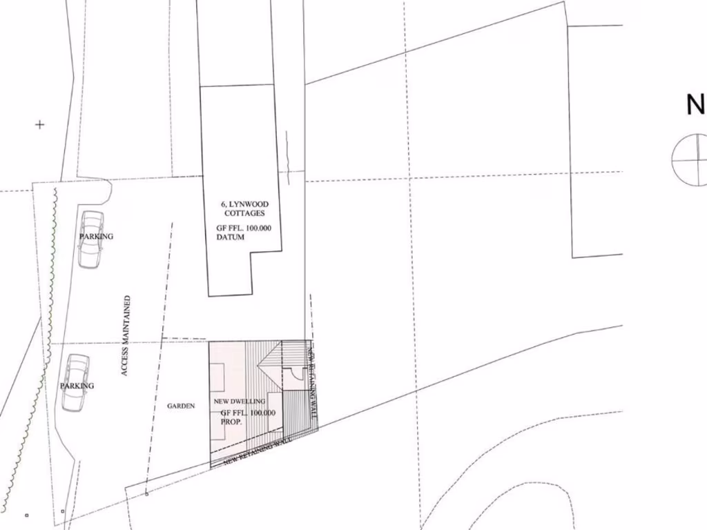
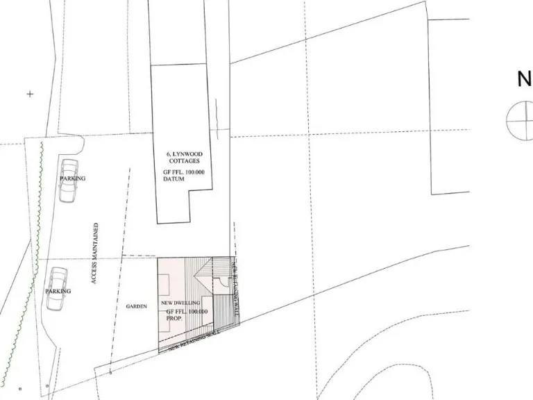
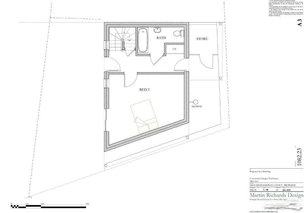
- Un-serviced plot with planning permission for a two-bedroom detached home
- Quiet, picturesque location in the sought-after fishing village of Porthleven
- Decent plot size allowing for ample outdoor space and garden potential
- Immediate access to local amenities, including shops, cafés, and schools
- Off-street parking available
- Freehold tenure, offering ownership flexibility
**Notable Concerns:**
- Cornwall Infrastructure Levy of £9,562.67 due upon development commencement
- Private lane with shared maintenance responsibilities
- Slow broadband speeds may impact connectivity needs
**Property Summary:**
Discover a unique opportunity to build your dream home in the charming fishing village of Porthleven. This un-serviced plot comes with secured planning permission for a spacious two-bedroom detached dwelling, allowing you to create a tailored living space designed to your tastes. The generous outdoor area promises endless potential for a beautiful garden or recreational space. While this tranquil location fosters a relaxed lifestyle among nature, essential amenities, including shops and schools, are conveniently nearby, enhancing the property's appeal for families or potential buyers seeking an investment.
Though you should be mindful of the additional Cornwall Infrastructure Levy and shared maintenance duties for the private lane, this opportunity is rare in such a desirable area. Don’t miss the chance to claim your slice of Cornish coastal living—explore the possibilities and envision your future here today!
Plot for sale in Porthleven , TR13 — £69,000 • 1 bed • 1 bath
Plot for sale in Building Plot with Planning Permission - Wellington Road - Porthleven, TR13 — £175,000 • 1 bed • 1 bath
Land for sale in Exciting opportunity, Near Trannack, TR13 — £250,000 • 1 bed • 1 bath
4 bedroom detached house for sale in Pendeen Road, Porthleven, TR13 — £875,000 • 4 bed • 2 bath
Plot for sale in Carn View, Crowntown, TR13 — £130,000 • 1 bed • 1 bath • 1095 ft²
Residential development for sale in Pengersick Lane, Praa Sands, TR20 — £190,000 • 1 bed • 1 bath






















