Show-home standard renovation near schools and transport links.
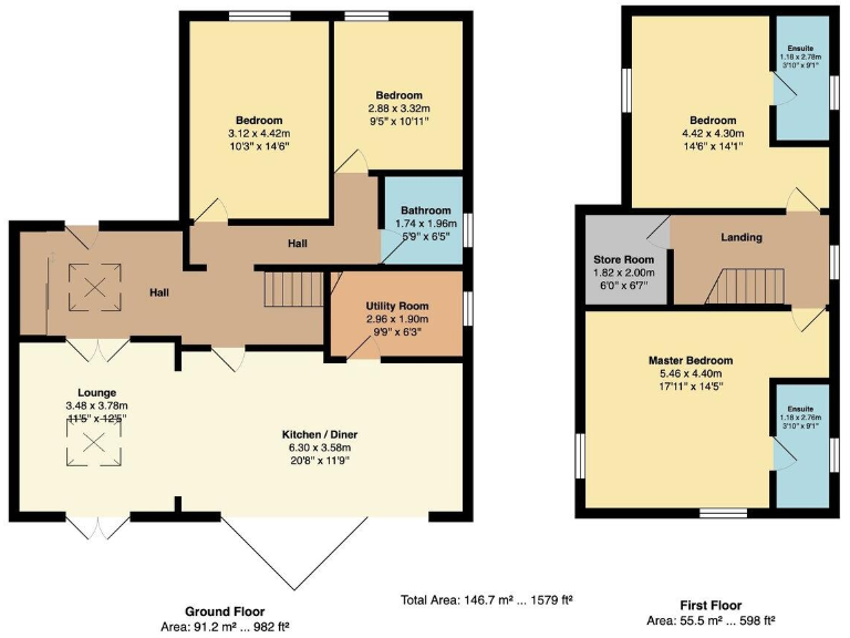
Four double bedrooms, two ground-floor bedrooms for flexibility
This newly refurbished four-bedroom detached home on Briggs Fold Road combines show-home finish with practical family living. The ground floor offers an impressive open-plan sitting room and dining kitchen with integrated appliances and bi-fold doors to a large decked patio, plus a separate lounge with French doors to the garden. Two double bedrooms on the ground floor add flexibility for multi-generational living, home office use or guest accommodation.
Upstairs are two further double bedrooms, each with its own modern en-suite shower room, and a useful storage/office room. The property has been finished throughout to a high standard: oak and glass staircase, modern bathrooms, new flooring and double glazing. Outside, a newly laid tarmac driveway provides ample off-street parking and low-maintenance front and rear gardens with large decking for outdoor entertaining.
Practical details to note: the property is Leasehold and sold with no onward chain. Council Tax band C applies. Constructed in the late 1960s/early 1970s but comprehensively renovated, it offers contemporary systems (mains gas boiler and radiators) and high broadband speeds. Its location is convenient for local primary and secondary schools, Bromley Cross station and nearby green space at The Jumbles Country Park.
4 bedroom detached house for sale in Strathmore Close, Ramsbottom, BL0 — £675,000 • 4 bed • 2 bath • 1625 ft²
4 bedroom detached house for sale in Hazel Mount, Egerton, Bolton, Greater Manchester, BL7 9US, BL7 — £575,000 • 4 bed • 3 bath • 1882 ft²
4 bedroom semi-detached house for sale in Lower Mead, Egerton, Bolton, BL7 — £410,000 • 4 bed • 2 bath • 1634 ft²
4 bedroom detached house for sale in Willow Hey, Bromley Cross, BL7 — £495,000 • 4 bed • 3 bath • 2100 ft²
4 bedroom detached house for sale in Forest Way, Bromley Cross, Bolton, BL7 9, BL7 — £515,000 • 4 bed • 1 bath • 1385 ft²
4 bedroom detached house for sale in Ashdown Drive, Bolton, Greater Manchester, BL2 3AX, BL2 — £350,000 • 4 bed • 2 bath • 1241 ft²






























































































































































































































































































































































