**Standout Features:**
- Spacious semi-detached home with 4 double bedrooms
- Potential for a separate 3-bedroom house and loft extension (subject to planning permits)
- Large plot with ample garden and off-street parking for multiple vehicles
- Convenient location near St Dunstans Gardens and vibrant Churchfield Road
- Excellent transport links to Central London
- Close to several well-rated schools
**Summary:**
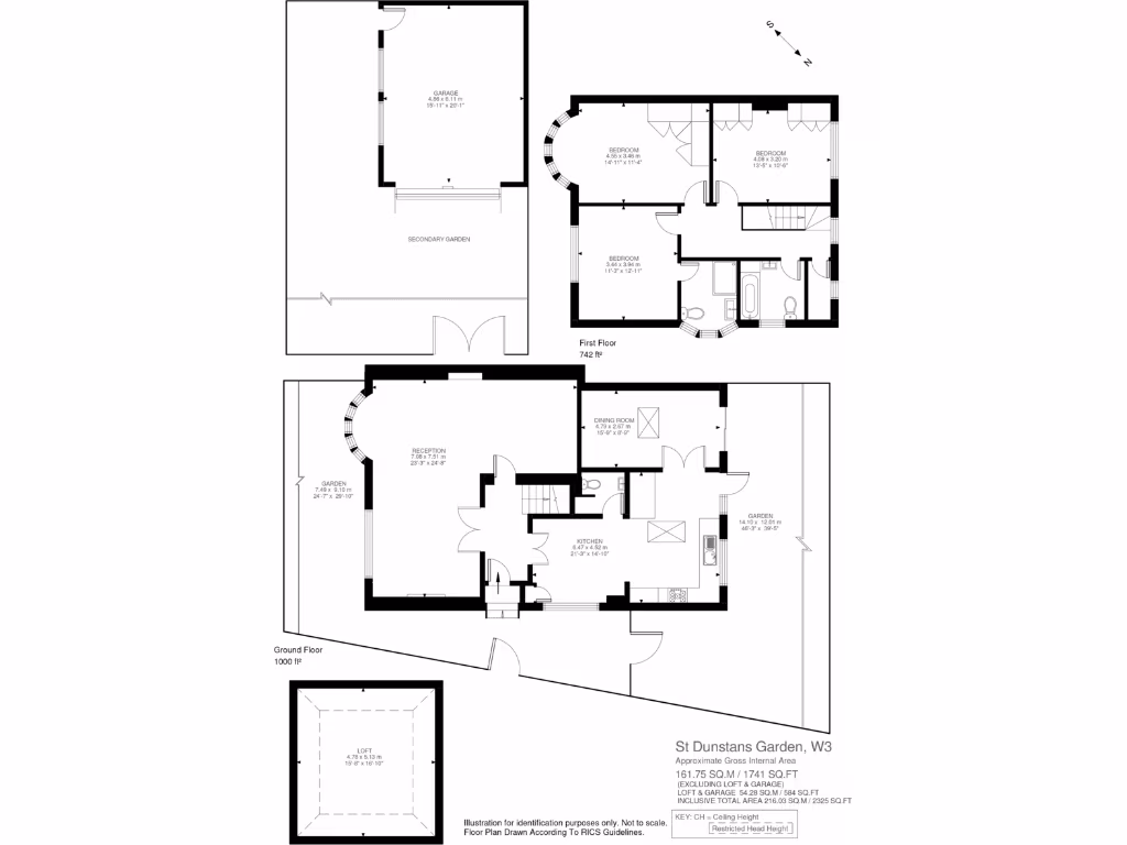
Nestled on a tranquil, tree-lined street in the desirable Goldsmiths Estate, this expansive four-bedroom semi-detached home offers a perfect blend of family-friendly space and future development potential. Spread across two generous floors, the property features a grand double reception room, a separate fitted kitchen with a breakfast area, and a versatile fourth bedroom that can function as a study. Retreat upstairs to find three well-sized bedrooms with built-in wardrobes, along with two bathrooms including an en-suite in the principal suite.
The standout asset is the large rear garden, which not only provides a private outdoor oasis but also holds the potential for additional development as pre-application discussions are underway for a separate three-bedroom house. Conveniently located near vibrant local amenities, excellent schools, and benefitting from outstanding transport connectivity, this home is a rare find in a thriving community. While the property requires some updates—specifically regarding insulation and general aesthetics—it offers incredible opportunities for both comfortable living and future investment. Don’t miss out on this exceptional opportunity!
4 bedroom semi-detached house for sale in St. Dunstans Gardens, London, W3 — £1,250,000 • 4 bed • 2 bath • 1700 ft²
4 bedroom semi-detached house for sale in St. Dunstans Gardens, Acton, W3 — £1,250,000 • 4 bed • 2 bath • 1710 ft²
3 bedroom house for sale in St. Dunstans Avenue, Acton, W3 — £800,000 • 3 bed • 1 bath • 1552 ft²
4 bedroom semi-detached house for sale in St. Dunstans Gardens, London, W3 — £1,250,000 • 4 bed • 2 bath • 1697 ft²
4 bedroom detached house for sale in St. Dunstans Gardens, Acton, W3 — £1,250,000 • 4 bed • 2 bath • 1707 ft²
4 bedroom terraced house for sale in Friars Place Lane, London, W3 — £850,000 • 4 bed • 3 bath • 1557 ft²


























































































