Versatile three-floor home near shops, station and university—family living or income potential.
Chain free and ready to move into
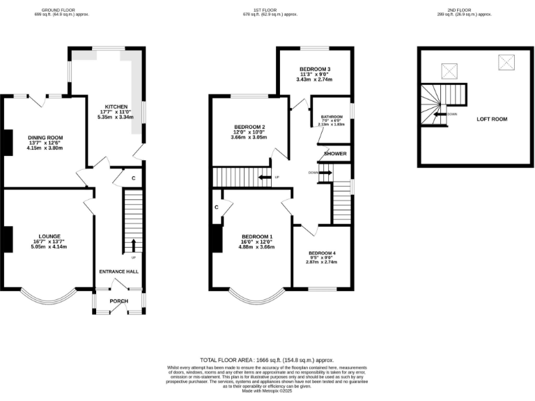
A spacious, traditional semi in central Headingley, offered chain free and ready to move into. The extended ground floor and large loft room provide flexible family accommodation across three floors, with a bay-fronted lounge, generous kitchen and private garden with driveway parking. Its location is a major draw — minutes from local shops, schools, the university and good rail links.
For investors the property has an existing HMO history and licence for up to six tenants, with estimated rental potential of around £26,000 pa. The room layout and seven-room count make conversion or continued multi-let use straightforward, while the decent plot leaves scope for minor external improvements.
Buyers should note a limited main bathroom provision despite two separate shower rooms and a guest WC; check the layout for family comfort versus HMO use. Construction dates and wall build indicate cavity walls assumed without added insulation, and the double glazing install date is unknown — consider energy-improvement scope and associated costs.
Overall this is a versatile Headingley home that will suit families seeking space near excellent amenities or investors wanting an income-producing asset in a high-demand student and commuter area. Early viewing advised to assess exact room layout and improvement priorities.
5 bedroom semi-detached house for sale in St. Annes Road, Leeds, LS6 — £450,000 • 5 bed • 2 bath • 1605 ft²
4 bedroom town house for sale in Langdale Avenue, Leeds, LS6 — £289,950 • 4 bed • 2 bath • 1085 ft²
3 bedroom semi-detached house for sale in Roxholme Place, Leeds, LS7 — £325,000 • 3 bed • 1 bath • 1119 ft²
3 bedroom semi-detached house for sale in Batcliffe Mount, Headingley, Leeds, LS6 — £475,000 • 3 bed • 1 bath • 1473 ft²
4 bedroom terraced house for sale in Langdale Avenue, Leeds, West Yorkshire, LS6 — £275,000 • 4 bed • 1 bath • 1182 ft²
3 bedroom semi-detached house for sale in Newport View, Leeds, West Yorkshire, LS6 — £275,000 • 3 bed • 1 bath • 818 ft²






























































