Detached four-bed with garage, garden and scope to modernise in quiet BS16 location.
No onward chain; immediate completion possible
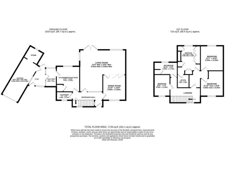
This detached four-bedroom house in Park Crescent offers roomy family living in a peaceful, highly regarded suburb of Bristol. The ground floor delivers an open-plan reception with distinct dining and living zones, French doors to the rear garden and a practical kitchen with adjacent utility. Upstairs are four bedrooms (principal with en-suite) and a fully tiled family bathroom — handy for growing families.
Outside the property benefits from a low-maintenance front garden, pressed-concrete driveway with parking for multiple cars, an electric-door garage with workshop space and a level rear lawn with patio. Constructed in the late 1960s/early 1970s with dressed Bath Stone and updated double glazing, the house sits close to well-rated primary and secondary schools and offers excellent broadband and mobile coverage.
Important practical points: the property is sold freehold and chain-free, but has an EPC rating of D and is in a higher council-tax band. Some internal areas show dated wear and will benefit from cosmetic updating to modernise finishes. Overall, the home is well laid out and ready for a family to adapt and improve over time.
This is a straightforward family home in a quiet, affluent neighbourhood with good outdoor space, garaging and scope to add value through modernisation.
4 bedroom detached house for sale in Cousins Close, Bristol, BS10 — £440,000 • 4 bed • 1 bath • 1101 ft²
4 bedroom detached house for sale in Park Lane, Frampton Cotterell, Bristol, BS36 — £723,000 • 4 bed • 2 bath • 1686 ft²
4 bedroom detached house for sale in Grove Bank, Frenchay, Bristol, BS16 — £850,000 • 4 bed • 3 bath • 2725 ft²
4 bedroom detached house for sale in Norton Farm Road, Bristol, BS10 — £400,000 • 4 bed • 2 bath • 1136 ft²
4 bedroom detached house for sale in Cousins Close, Bristol, BS10 — £575,000 • 4 bed • 2 bath • 1521 ft²
4 bedroom detached house for sale in New Road, BRISTOL, Avon, BS34 — £490,000 • 4 bed • 2 bath • 1248 ft²


























































































































