Spacious family home with proven holiday income potential and private gardens.
Detached extended cottage with four bedrooms and multiple en suites
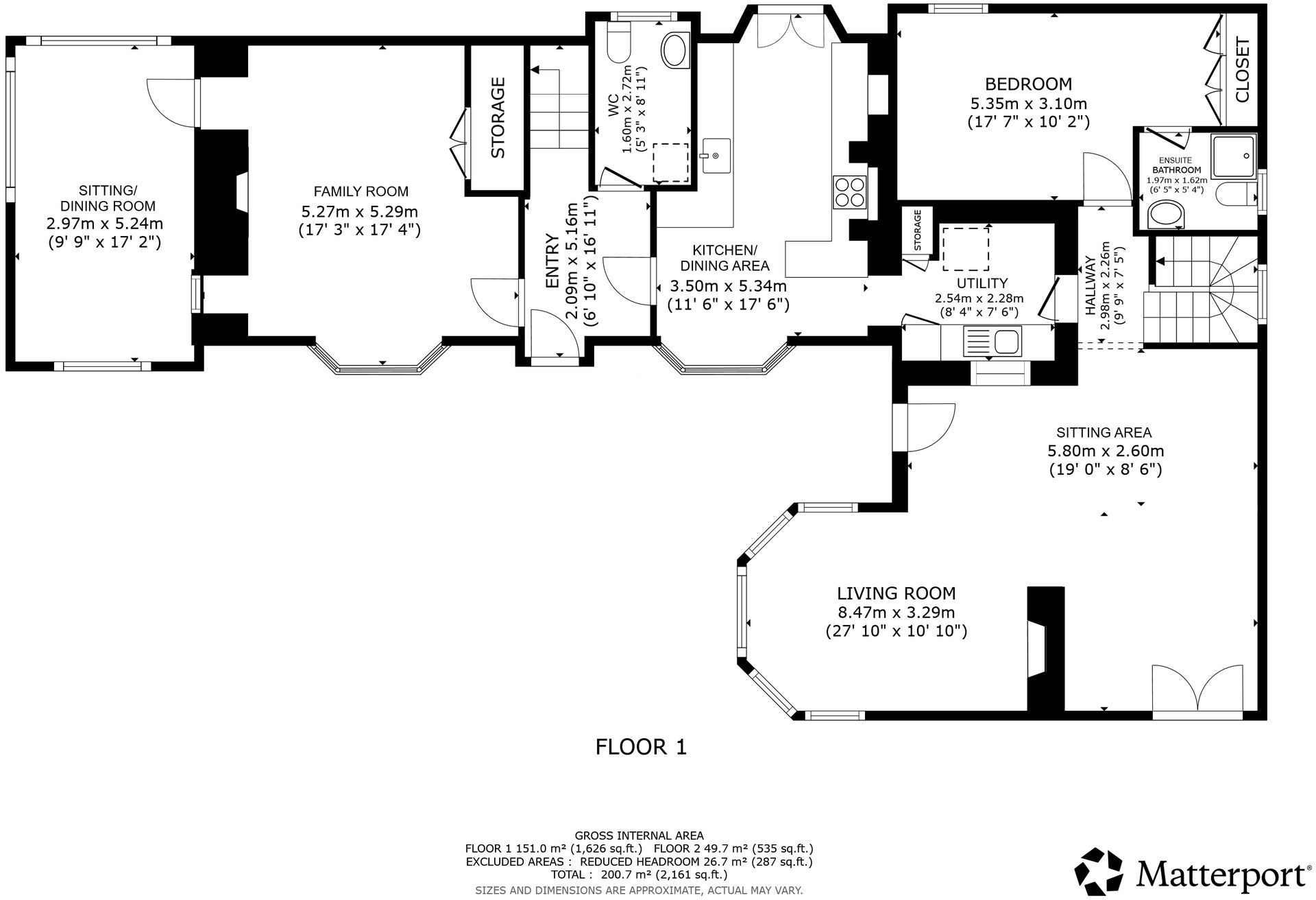
Corshill Cottage is a spacious, extended detached country home set between Blair Drummond and Thornhill, offering flexible family living across two floors. The main house provides four bedrooms, multiple en suites, a sunroom and open-plan living and dining areas ideal for everyday family life and entertaining.
A converted outbuilding contains two self-contained one-bedroom barn apartments (The Smiddy and The Stables), each with private outdoor space. These were previously run successfully as holiday lets and are currently tenant-occupied, giving immediate rental income potential or an easy return to short-term letting.
Extensive, landscaped gardens, generous parking and a single garage sit within sheltered grounds surrounded by farmland and mature trees, delivering privacy and outdoor enjoyment. Practical details include fast broadband, average mobile signal and freehold tenure.
Notable negatives are factual: the apartments are occupied by tenants, council tax is described as quite expensive, and the wider area classification records very high deprivation despite the tranquil rural setting. Buyers should also note the rural location means reduced local services compared with urban centres.
4 bedroom detached house for sale in Dunblane, FK15 — £540,000 • 4 bed • 2 bath • 1690 ft²
3 bedroom semi-detached house for sale in 4 Boquhan Cottage, Boquhan, Stirling, Stirlingshire, FK8 — £290,000 • 3 bed • 1 bath • 1036 ft²
3 bedroom cottage for sale in Keip Road, Strathyre, FK18 — £235,000 • 3 bed • 1 bath • 1001 ft²
5 bedroom detached house for sale in The Barn, Craigton Farm, Stirling, FK9 — £895,000 • 5 bed • 5 bath • 3003 ft²
6 bedroom detached villa for sale in Craigmuir Cottage, Moor Road, Strathblane G63 9EY, G63 — £1,790,000 • 6 bed • 5 bath • 4962 ft²
5 bedroom detached house for sale in Tryst Road, Stenhousemuir, Larbert, Stirlingshire, FK5 — £385,000 • 5 bed • 2 bath • 1402 ft²






































































































































































