Compact modern home with garage, ideal for first-time buyers or investors.
Freehold three-bedroom mid-terrace in Tadpole Garden Village
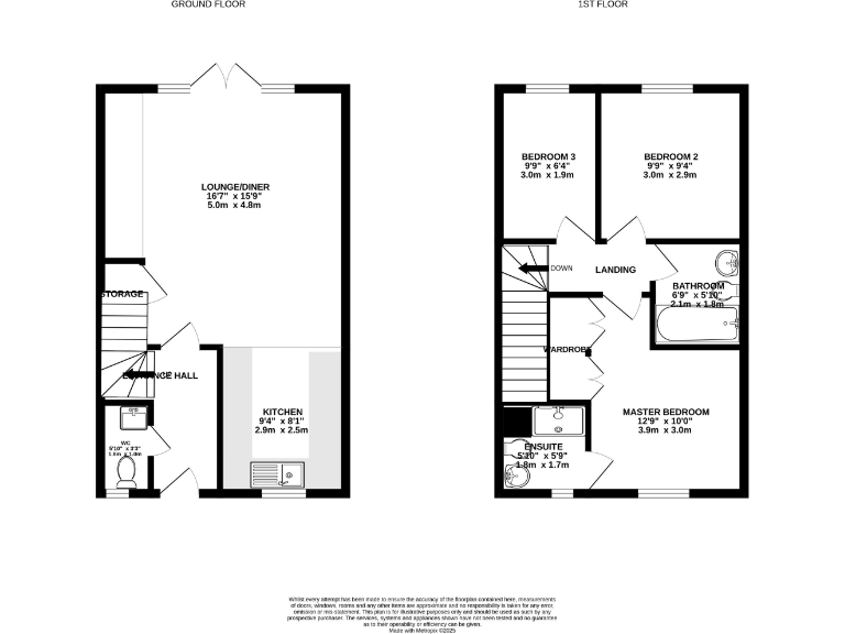
This immaculate three-bedroom mid-terrace in sought-after Tadpole Garden Village offers modern, low-maintenance living ideal for first-time buyers or young families. The ground floor is arranged around a contemporary open-plan reception with a bespoke media wall and large patio doors that flood the space with light and open onto a compact, private garden — a useful entertaining area that requires minimal upkeep.
The kitchen is fitted with high-gloss units and integrated appliances, making it a practical and sociable hub. Upstairs the layout delivers a generous master suite with its own en-suite, two additional bedrooms and a family bathroom, all presented in very good decorative order. The property benefits from an EPC B rating, gas central heating and a freehold tenure, supporting economical running costs.
Practical extras include a single garage and a tandem driveway for secure parking. The location is a strong selling point: low local crime, fast broadband and excellent mobile signal, with parks, wildlife reserves, primary and secondary schools within walking distance — a genuine family-friendly setting.
Buyers should note the house is compact overall with modest room and plot sizes; the footprint suits those seeking efficient, manageable accommodation rather than extensive living space. Street parking and small front/rear gardens limit outdoor scope for large-scale landscaping or expansion. Council tax is band D (moderate).
3 bedroom semi-detached house for sale in John Ruskin Road, Tadpole Garden Village, SN25 — £400,000 • 3 bed • 2 bath • 1320 ft²
3 bedroom semi-detached house for sale in Eastlake, Tadpole Garden Village, SN25 — £375,000 • 3 bed • 2 bath • 1012 ft²
3 bedroom terraced house for sale in Tadpole Garden Village, Swindon, Wiltshire, SN25 — £320,000 • 3 bed • 2 bath • 1041 ft²
3 bedroom semi-detached house for sale in John Ruskin Road, Tadpole Garden Village, Swindon, SN25 — £365,000 • 3 bed • 2 bath • 980 ft²
3 bedroom semi-detached house for sale in Dresser Close, Tadpole Garden Village, Swindon, SN25 — £370,000 • 3 bed • 2 bath • 1055 ft²
4 bedroom detached house for sale in Tadpole Garden Village, Swindon, Wiltshire, SN25 — £485,000 • 4 bed • 2 bath • 1350 ft²










































