Flexible bay licences and substantial yard space near A55 for logistics or manufacturing.
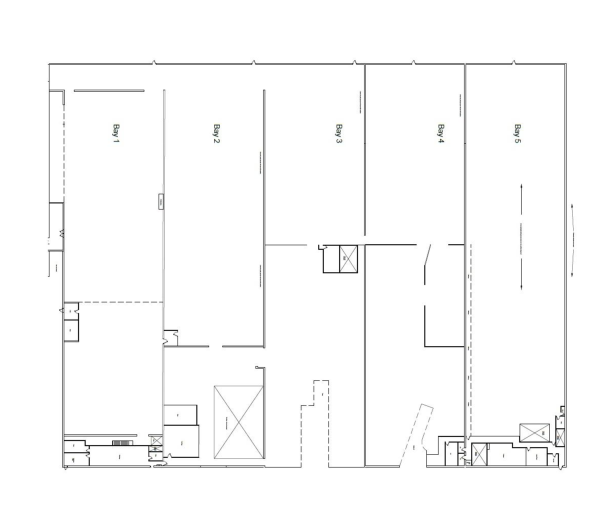
Freehold industrial warehouse split across five separate bays
A large, freehold distribution warehouse arranged over five bays, presented as a significant investment or owner-occupier opportunity. The estate sits on the rural-fringe near Hawarden with direct access to Chester Road and approximately 1.5 miles from the A55, giving quick links onto the M56 corridor. The building has a newly installed Kingspan roof with warranties and ground- plus first-floor offices to the front and rear elevations.
The property is currently undergoing refurbishment and has been recently cleared; substantial external hardstanding and vehicle circulation areas suit logistics, manufacturing or distribution uses. Individual bays can be taken under licence, offering operational flexibility. The site benefits from off-street parking and three loading doors, two at dock level, with an eaves height of 4m.
Be aware of material considerations: the building requires further refurbishment works to complete the fit-out, and the local area records high crime and very high deprivation levels. The property's rateable value is £142,573 (rates payable circa £80,981.46). The quoted rent benchmark is very low at £3.50 psf (stated equivalence £388,000 pa) — confirm terms and pricing for any licence or lease offer.
This is a large-scale industrial estate unit aimed at investors or businesses needing large clear-span space with the potential to customise bays. The combination of a new roof and flexible occupation options supports redevelopment and operational scaling, but factor in refurbishment costs and local socio-economic challenges when assessing income or occupation strategies.
Distribution warehouse for sale in Unit 1 Vista Link Industrial Estate, Manor Lane, Hawarden, CH5 3PJ, CH5 — POA • 1 bed • 1 bath • 904 ft²
Distribution warehouse for sale in Unit 2 Vista Link Industrial Estate, Manor Lane, Hawarden, CH5 3PJ, CH5 — POA • 1 bed • 1 bath • 904 ft²
Distribution warehouse for sale in Vista Link Industrial Estate, Manor Lane, Deeside, CH5 3PJ, CH5 — POA • 1 bed • 1 bath • 904 ft²
Light industrial facility for sale in Vista Link Industrial Estate, Manor Lane, Hawarden, Flintshire, CH5 3PJ, CH5 — POA • 1 bed • 1 bath
Light industrial facility for sale in Unit 3, Vista Link Industrial Estate, Manor Lane, Hawarden, Flintshire, CH5 3PJ, CH5 — POA • 1 bed • 1 bath
Light industrial facility for sale in Unit 2, Vista Link Industrial Estate, Manor Lane, Hawarden, Flintshire, CH5 3PJ, CH5 — POA • 1 bed • 1 bath






























