Bright three-bedroom home with concierge, parking and excellent transport links.
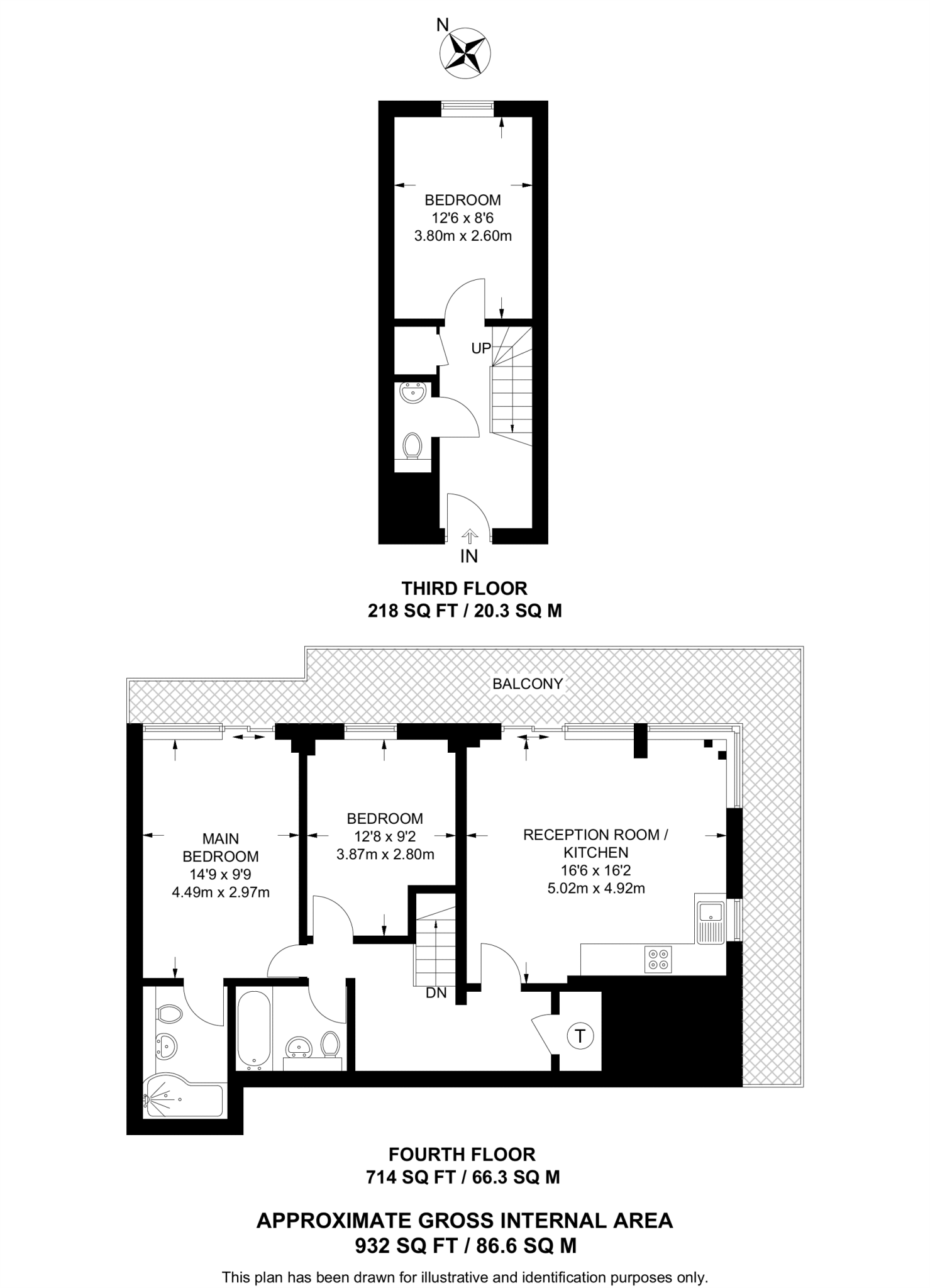
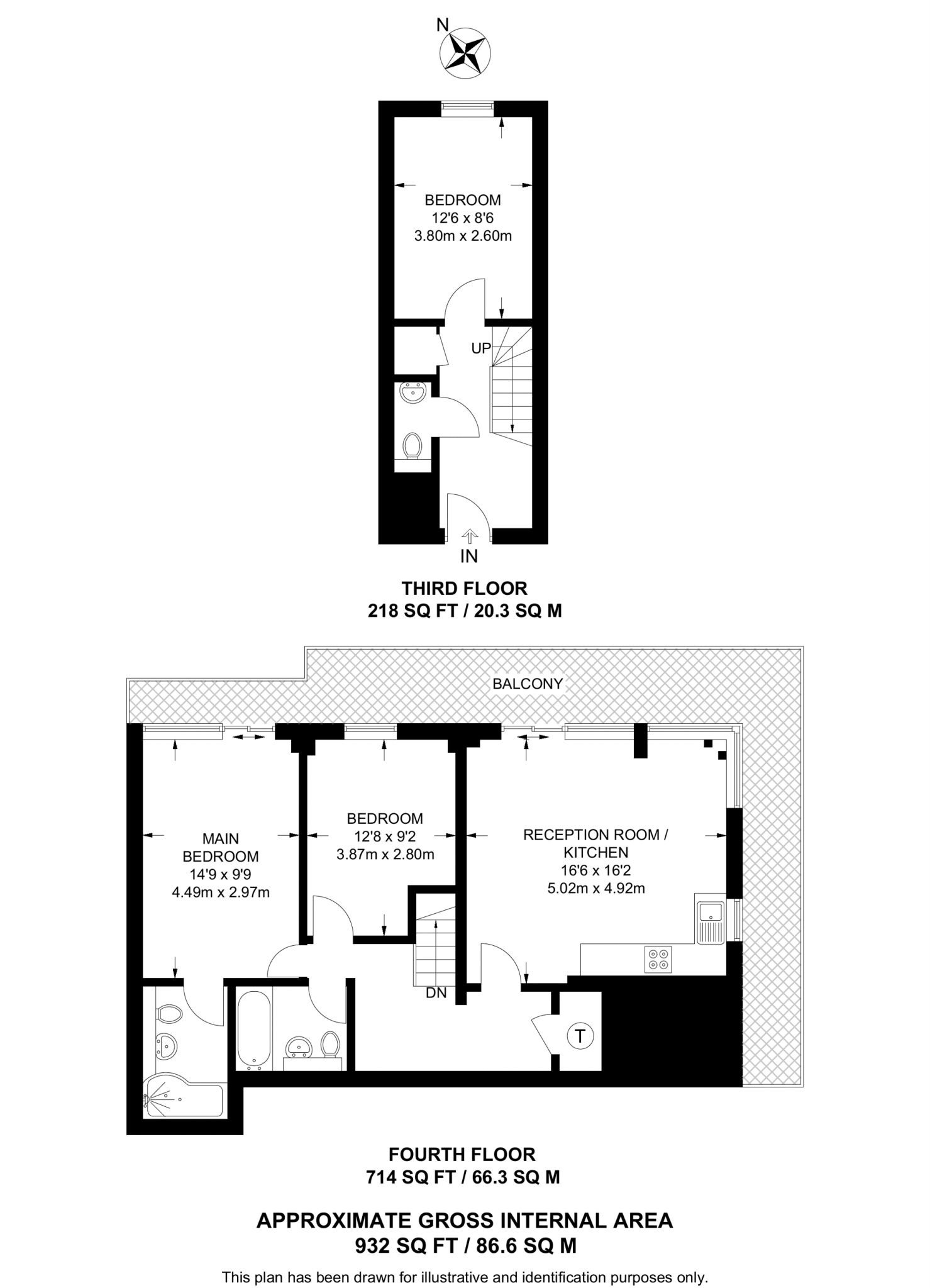
Three-bedroom split-level apartment with wraparound balcony
Light-filled duplex in Royal Arsenal Riverside, arranged over two floors with a generous dual-aspect reception and a wraparound balcony that stretches the living space outdoors. The open-plan kitchen has integrated appliances and flows to the reception, while the main bedroom benefits from an en suite. Two further bedrooms, a family bathroom and a guest cloakroom complete the layout across approximately 932 sqft.
The development offers practical extras for family life: undercover parking, concierge, on-site shops, cafes, GP and nursery, plus excellent transport links including the Elizabeth line and Thames Clipper. Double glazing was installed after 2002 and the property sits in a low-crime, well-served riverside community with fast broadband and strong mobile signal.
Note the flat is leasehold (long lease remaining) and on a community heating scheme; buyers should factor in any communal service charges and heating arrangements into ongoing costs. The building dates from the 1980s/90s and, while well maintained, the apartment is an average-sized three-bedroom for the price bracket — good value for location but not a large family home.
This apartment suits buyers wanting convenient riverside living with excellent transport and local amenities. It will particularly appeal to families seeking nearby outstanding primary schools and easy access to central London, as well as investors seeking a desirable Royal Arsenal Riverside address.
3 bedroom flat for sale in West Carriage House, Woolwich Riverside, London, SE18 — £485,000 • 3 bed • 2 bath • 751 ft²
3 bedroom flat for sale in Hopton Road, Woolwich, London, SE18 — £735,000 • 3 bed • 2 bath • 1394 ft²
2 bedroom flat for sale in Building 22, Woolwich Riverside, London, SE18 — £475,000 • 2 bed • 2 bath • 881 ft²
3 bedroom flat for sale in Warehouse Court, Woolwich, London, SE18 — £700,000 • 3 bed • 2 bath • 955 ft²
2 bedroom flat for sale in West Carriage House, Woolwich Riverside, London, SE18 — £500,000 • 2 bed • 2 bath • 723 ft²
2 bedroom flat for sale in Building 22, Woolwich Riverside, London, SE18 — £425,000 • 2 bed • 2 bath • 671 ft²










































































































































